长沙乐万邦汇珺府售楼处(2024乐万邦汇珺府)-/户型/容积率 /价格/长沙乐万邦汇珺府售楼部电话-最新价格-在售户型-备案价
扫描到手机,新闻随时看
扫一扫,用手机看文章
更加方便分享给朋友
长沙乐万邦汇珺府售楼处电话☎️✆✆看房预约热线 400-159-8559转接8080 【贵宾热线】(专人接听)
🌈长沙乐万邦汇珺府营销中心电话:☎️✆✆看房预约热线 400-159-8559转接8080 【贵宾热线】【营销中心】
🌈温馨提示:✆✆看房预约热线 400-159-8559转接8080 【贵宾热线】
➤➤➤➤VIP贵宾置业〢欢迎来电咨询
免责声明:(本文章所用图片来源于网络,如有侵权请联系本网站删除!)恭迎品鉴◆◆
基本信息
开发商: 湖南泰邦置业有限公司
售楼处地址: 开福开福大道与冯蔡东路交汇处东北角
物业类型: 普通住宅 洋房
建筑形式: 板楼
装修情况: 住宅:毛坯
产权年限: 普通住宅产权为70年
规划面积: 35199.99㎡
建筑面积: 109329.22㎡
规划户数: 654户
车位数: 共641个停车位
容积率: 2.5
绿化率: 40%
物业公司:长沙市润卓物业管理有限公司
物业费: 高层2.4元/㎡/月、洋房2.6元/㎡/月
鹅秀纯新盘——汇珺府,清水样板间将在5月底/6月初开放,预计6月推出5#栋高层住宅,建面约110㎡、133㎡房源!
毛坯首开,预计8字头!
这个项目,我实地看完后,觉得是一个“刚需的价格,改善的品质,主打舒适”的项目。
为啥这么说?
与板块内大多数楼盘不同,项目是片区内为数不多、定位为改善的“高层+洋房”项目:
总建面约10.9万方,由4栋高层住宅、6栋洋房、1栋商业、1栋综合服务中心组成。
高层在外围、洋房居其中,显而易见,6栋洋房的占地面积更广,是以洋房为主打产品的项目!

项目鸟瞰效果图
户型配比上,少量建面约110㎡刚需面积段,以建面约133㎡、143㎡改善房源为主。
这正是项目在洞悉市场变化后,做出的准确选择!
对于改善需求喷发的长沙楼市而言,考虑到小孩成长及长辈同住,尤其二孩时代的到来,四房已然成为标配。
同时兼顾刚需客群,把起步面积段定格在建面约110㎡,兼顾低首付与舒适度。
与同面积段的户型相比,项目的优势在于——得房率更高、朝南开间更多,居住体验更舒适!
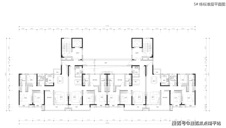
先看高层,2T4户连廊结构,从平面图上看,1梯对应2户。
5#栋标准层平层示意图

中间户为建面约110㎡,三开间朝南,室内各个空间的布局得到了多年市场验证。
难得的是,项目尽可能的将得房率做到顶格:
约5.6米南向双连景观阳台+北向套内花园,只计算一半建筑面积;主卧飘窗不计入建筑面积。
建面约110㎡户型图

边户建面约133㎡的户型,我称之为市场上同类产品的“天花板”!
一方面,“三卧室+客厅”共四开间朝南+南北双阳台,将朝南开间、阳台数量做到了J致。
业主日常主要活动空间,全部朝南,采光面比一般产品大很多,起居舒适度也提升了一大截。
其实随着户型迭代,四开间朝南一般出现在建面约140㎡以上的户型中,建面约130㎡左右能做到,实属少数,同时打造“南北双阳台”的就更少了。
项目能在北侧硬生生挤出一个阳台,不得不佩服开发商的巧思。
另一方面,得房率牛掰Pro版本!南北双阳台、南向主卧+次卧双飘窗、套内花园统统安排上!
区别于其他项目把计算一半面积的套内花园安排在北向不同,汇珺府却是别具一格——朝南!
连Z送的朝向,都让竞品难以超越,大写的服气!
建面约133㎡户型图

洋房全部为1T2户,独享电梯厅,只有建面约143㎡一个面积段:
室内整体布局和建面约133㎡类似,四开间朝南,北向卧室计算一半建筑面积,尺度更宽阔,采光通风更优渥!
比如南向阳台,约6.7米开间,约1.7米宽;餐厅比客厅开间还大,凹陷部分可打造餐边柜,收纳空间更充足;
建面约143㎡户型图
既然主打改善舒适,不仅套内房子的布局要更优,外部空间的舒适性,也相当重要!
毕竟,小区的公共空间,也是“家的延伸”!
而谈到居住的舒适性,其中Z重要的指标,自然就是容积率,数值越低,舒适度越高。
项目整体容积率只有约2.5,比周边项目(约在2.7-3.1)都要低!
代表项目的社区内部有更大的空间来规划园林、运动场和亲子游乐区。
项目园林效果图
项目园林采用新现代主义风格,主入口规划采用艺术拼装,障景墙+灯光+名贵石材立面+水景的组合,从进入小区开始,就彰显居者的非凡气质!
项目园林效果图
住宅楼栋前,规划设置有浓密的植物组团和艺术景墙;
四块阳光大草坪、景观连廊、银杏和香樟等各类景观树群在小区内依次展开,层次感十足的同时视野开阔,也让园内绿树成荫。
天气凉爽时,野餐、露营、放风筝、扔飞盘下楼就能实现;饭后遛娃,有足够的大空间随便撒欢跑!
项目园林效果图
除此之外,项目还规划了休闲活动区、轻氧运动区、老年人专属活动区、儿童娱乐区等四大活动空间以及六大主题花园。
既能提升小区内的居住体验,又保障了小区的功能性,一举两得。
年轻人在小区内可以打打羽毛球、还能练练瑜伽;鹅卵石铺设而成的步道,是老年人活动筋骨的好地方!
不论你家的吞金兽,是0-3岁还是3-5岁,亦或5-8、8-12岁,都可在儿童娱乐区找到对应的活动区域!

长沙乐万邦汇珺府售楼处电话☎️✆✆看房预约热线 400-159-8559转接8080 【贵宾热线】(专人接听)
🌈长沙乐万邦汇珺府营销中心电话:☎️✆✆看房预约热线 400-159-8559转接8080 【贵宾热线】【营销中心】
🌈温馨提示:✆✆看房预约热线 400-159-8559转接8080 【贵宾热线】
特别说明:
1.本文为要约邀请,不作为要约或承诺;相关宣传内容不排除因政府相关规划、规定及出卖人分期规划、未能控制等原因而发生变化;
2.本文部分图片来自于网络,如涉及版权使用,请联系删除;文本部分图片仅作为推广示意使用,非交付标准,最终以实际交付现状为准;
3.本宣传资料对项目周边学校等教育资源的介绍旨在提供相关信息,并不意味着本公司对就学安排作出承诺。教育资源的名称、办学性质、办学规模、学位设置、开学(班)时间、招生条件、收费标准及招生区域存在调整的可能,应以政府教育主管部门及办学方颁布的政策规定为准;
4.本资料对项目或产品的介绍,旨在提供相关信息,不意味着本公司对此作出了承诺,买卖双方的权利义务以《商品房买卖合同》及附件等协议为准;
声明:本文由入驻焦点开放平台的作者撰写,除焦点官方账号外,观点仅代表作者本人,不代表焦点立场。
