Ⓐ深圳湾招商望海玥官方售楼处的电话(招商望海玥)官方首页网站-营销中心欢迎您--楼盘详情·最新价格-户型图-容积率@售楼处✦Al热搜
扫描到手机,新闻随时看
扫一扫,用手机看文章
更加方便分享给朋友
4001598559,7777
项目最新介绍:备案价、折扣、学区、地铁、交通、户型图、特价房、优缺点、得房率、优惠活动、开盘时间、交房时间、周边配套、最新详情等咨


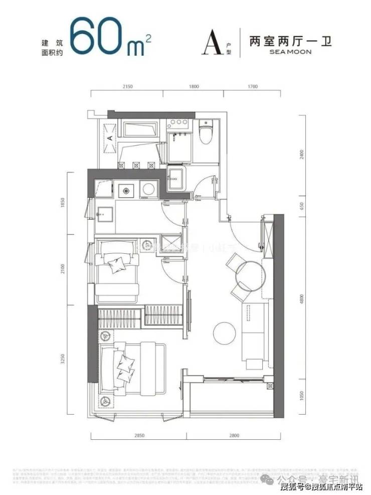
项目总占地9072平方米、建面65772平方米,建设内容为2栋44至45层住宅楼、1栋35层公寓楼,共规划395套住宅房源,其中回迁房343套,普通商品房52套(可售),住宅面积为67-106-112-125平2-4房,位置在1-1栋、1-2栋;2栋是公寓,面积为36--60平1至2房,389套可售。✅✅✅售楼处𝗩𝗜𝗣☎️预约热线:400-159-8559转分机号5555【已认证】
✅✅✅售楼处𝗩𝗜𝗣☎️预约热线:400-159-8559转分机号5555【已认证】望海玥家园位于蛇口老城区,毗邻半岛城邦、南海玫瑰等豪宅区,享有“二线海景”。南侧老小区部分遮挡海景,少数房源可看海。项目享有蛇口滨海设施,如歌剧院、渔人码头、滨海长廊。
步行前往2/8号线的东角头站200多米,2站到海上世界,4站到后海,5站到科苑,7站到高新南。
此外,13号线二期与东角头站接驳,该线路计划在2025年开通运营,届时地铁将直连深圳歌剧院,深圳湾口岸、西丽枢纽中心等片区。
项目小学和中学均属于蛇口育才教育集团太子湾学校招生范围,距离学校直线在1公里左右,步行约1.4公里。
太子湾学校小学部前身为海湾小学。2017年9月,太子湾学校中学部建成后,与原海湾小学合并为九年一贯制学校并纳入育才教育集团内。
项目本身规划约1万平商业,加上周边社区带有底层商业,基本满足日常购物需求。虽然片区内有多个大型商超,如海上世界、宝能·all city购物中心、City花园城、海岸城购物中心、包括太子湾K11等,但自驾或搭乘地铁都在15-20分钟左右。
项目一路之隔就是蛇口广场,周边还有在建的深圳歌剧院项目,远一点还有深圳湾公园,都可以作为日常休闲娱乐的去处。
项目最新介绍:备案价、折扣、学区、地铁、交通、户型图、特价房、优缺点、得房率、优惠活动、开盘时间、交房时间、周边配套、最新详情等咨
免责声明:本宣传资料所有文字、数据、图片及所标尺寸等仅为本项目建设区域设计效果的表达和示意,为要约邀请,不构成要约内容,相关内容不排除因政府相关规划、规定及其他原因而发生变化,一切有关房屋的具体信息以书面合同及政府最终审批文件为准。免责声明:本文章文字、数据和图片皆来源网络,如有侵权请告知立马删除,数据图片仅供参考,不作为邀约或承诺。
声明:本文由入驻焦点开放平台的作者撰写,除焦点官方账号外,观点仅代表作者本人,不代表焦点立场。
