☎️深圳湾新晋豪宅【后海招商玺】 营销中心24小时电话:400-159-8559转接6666【☎️☎️已认证】
温馨提示:拨打400电话——听到嘀声后——输入【6666】即可通话!☎️☎️ ☀️☀️☀️☀️致电预约登记—(尊享内部优惠)〢享Vip1对1专业置业顾问讲解☀️☀️
☎️深圳湾新晋豪宅【后海招商玺】
营销中心24小时电话:400-159-8559转接6666【☎️☎️已认证】
温馨提示:拨打400电话——听到嘀声后——输入【6666】即可通话!☎️☎️
☀️☀️☀️☀️致电预约登记—(尊享内部优惠)〢享Vip1对1专业置业顾问讲解☀️☀️☀️☀️

项目最新介绍:房价、折扣、户型图、特价房源、得房率、优惠活动、开盘时间、交房时间、周边配套、最新详情等咨询。
深圳湾又一豪宅腾空出世,[后海招商玺]作为招商玺系升级代表作即将入市,目前项目已全面动工
项目占地14969.93㎡,是过去饼干厂旧改,住宅没有7090限制,面积段为188-246㎡精装大平层。
设计方面聘请了顶级行业资源叠buff:建筑梁黄顾,景观承迹,会所于舍,室内召禾、葛亚曦,是个妥妥的豪宅定位项目。售楼处:☎️☎️售楼处电话400-159-8559转6666【已认证】

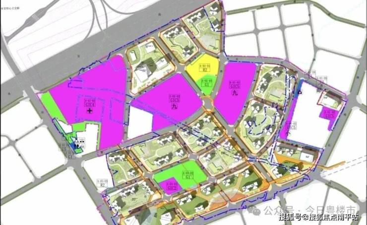
「后海招商玺」前身是原联合饼干厂城市更新单元,位于南山区招商街道后海大道以西、工业七路以北。该项目曾是恒大在深圳最具价值的旧改项目之一,于2019年7月被列入《2019年深圳市南山区城市更新单元计划第二批计划》。
恒大危机后,该项目一度搁置。直到2022年由招商蛇口接手,并成立合资公司推进开发。2025年2月,深圳招商蛇口华湾地产开发有限公司正式成为项目实施主体,项目推进速度显著加快。售楼处:☎️☎️售楼处电话400-159-8559转6666【已认证】

根据规划,「后海招商玺」更新单元用地面积为33111.3平方米,拆除用地面积为31710.4平方米,开发建设用地面积为15091.6平方米。规划总建筑面积98754平方米,其中住宅88449平方米,商业2100平方米,公共配套设施8205平方米。
根据规划,后海玺家园更新单元用地面积为33111.3平方米,拆除用地面积为31710.4平方米,开发建设用地面积为15091.6平方米。规划总建筑面积98754平方米,其中住宅88449平方米,商业2100平方米,公共配套设施8205平方米。

售楼处:☎️☎️售楼处电话400-159-8559转6666【已认证】
「后海招商玺」小区共261套可售住宅,具体面积段为188-197-235-246㎡大平层。

户型为四房三卫设计,功能分区做得很好。采用一户一梯专梯入户,南北通透结构,是整个南山里非常稀缺的户型。
另外户型结构会跟【深圳湾澐玺】一样,采用核心筒+边柱设计,确保户型多样化,且赠送率、阳台率最大化,算上专梯入户使用率预计能达100%左右。售楼处:☎️☎️售楼处电话400-159-8559转6666【已认证】
这次「后海招商玺」住宅设计采用“浮岛甲板”设计策略,四栋住宅落于甲板之上,独享甲板庭院花园。进而形成超级社区底盘 + 浮岛绿化甲板的垂直共生人居标杆。

售楼处:☎️☎️售楼处电话400-159-8559转6666【已认证】
「后海招商玺」车行大门做了殿堂级落客区,设有天幕和水景,非常具备归家仪式感。

每栋设有独立入户大堂,风格与大门相呼应。

小区同样是新晋豪宅的配方,通过抬高与城市界面做了区隔,整体豪宅的这种私密性就出来了。花园采用立体园林设计,利用架空层打造会所功能空间,这里不是简单的空间叠加,而是一场关于“如何生活”的持续迭代。

「后海招商玺」位于「雍景湾」旁,临近后海大道,一边是深圳湾城市CBD,一边是蛇口生活居住区;
后海招商玺家园位于深圳南山招商街道,地处后海豪宅片区核心地段。一条后海大道串联起深圳湾最值钱的富人片区。

☎️深圳湾新晋豪宅【后海招商玺】
营销中心24小时电话:400-159-8559转接6666【☎️☎️已认证】
温馨提示:拨打400电话——听到嘀声后——输入【6666】即可通话!☎️☎️
☀️☀️☀️☀️致电预约登记—(尊享内部优惠)〢享Vip1对1专业置业顾问讲解☀️☀️☀️☀️
免责声明:本宣传资料所有文字、数据、图片及所标尺寸等仅为本项目建设区域设计效果的表达和示意,为要约邀请,不构成要约内容,相关内容不排除因政府相关规划、规定及其他原因而发生变化,一切有关房屋的具体信息以书面合同及政府最终审批文件为准。
免责声明:本文章文字、数据和图片皆来源网络,如有侵权请告知立马删除,数据图片仅供参考,不作为邀约或承诺。