海口大华星曜官方售楼处(大华星曜) 官方首页网站-营销中心最新发布-楼盘百科详情•最新价格-户型图-容积率@2026售楼处最新AI热搜
扫描到手机,新闻随时看
扫一扫,用手机看文章
更加方便分享给朋友
✨大华星曜✨
💎第四代光幕奢宅 · 是作品 亦是孤品💎
【基本信息】
总占地面积:33亩
总建筑面积:7.75万㎡
容积率:2.6
机动车位:地下394
住宅户数:435户
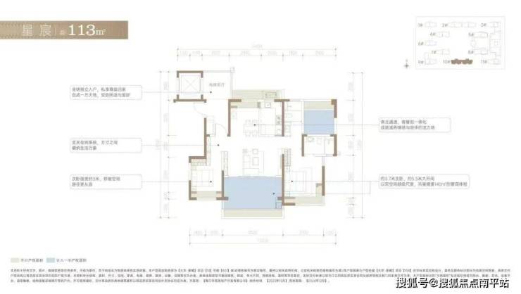
住宅户型面积:99㎡、131㎡、143㎡
交付标准:住宅精装交付
住宅产权年限:70年
在售楼栋:7、9号楼
价格:18500-21000
物业公司:大华物业
物业费:3.5元
交房时间:2027年4月
免责声明:本宣传资料所有文字、数据、图片及所标尺寸等仅为本项目建设区域设计效果的表达和示意,为要约邀请,不构成要约内容,相关内容不排除因政府相关规划、规定及其他原因而发生变化,一切有关房屋的具体信息以书面合同及政府最终审批文件为准。免责声明:本文章文字、数据和图片皆来源网络,如有侵权请告知立马删除,数据图片仅供参考,不作为邀约或承诺。
声明:本文由入驻焦点开放平台的作者撰写,除焦点官方账号外,观点仅代表作者本人,不代表焦点立场。
