最新发布(中海省博西项目)楼盘百科丨济南中海玖昌源邸售楼处电话/售楼处位置丨楼盘主页_在售楼层/户型面积/价格详情

南平楼市发布 2025-10-16 09:35:50
用手机看
扫描到手机,新闻随时看

扫一扫,用手机看文章
更加方便分享给朋友

济南中海玖昌源邸售楼中心电话400-159-8559接通拨4567(本电话只用做售前咨询) ☎️来电请拨分机号!了解在售楼层户型丨最新销售价格! ☎️温馨提醒:若您计划看房,为确保能享受到更优质、贴心的接待服务,请提前拨打此电话进行预约 。 本资料不作为要约

济南中海玖昌源邸售楼中心电话400-159-8559接通拨4567(本电话只用做售前咨询)

☎️来电请拨分机号!了解在售楼层户型丨最新销售价格!

☎️温馨提醒:若您计划看房,为确保能享受到更优质、贴心的接待服务,请提前拨打此电话进行预约 。

本资料不作为要约或承诺,图片、文字、数据等仅供参考,仅用于介绍房地产项目

中海省博西项目,自土拍落锤以后,便成为济南楼市的焦点,更多的可能是期待。

一方面,“地王”的咖位,决定了项目下限,对于项目售价能否达到甚至超过5万,市场上众说纷纭,如果达到/超过5万+,济南楼市新房价格上限又被刷新了,曾经的“54321”理论又得到了验证;如果不达预期,又是一波对于市场、对于四代宅的唱衰,在此也声明一下,济南房悟空不唱涨、不唱衰,能让大家买到合适的房子,是我们的宗旨。

另一方面,在市场低迷之际,能否有一位带头大哥,以捅破天的气势带领市场杀出一条血路,给楼市注入一剂强心剂。毕竟,市场稳定,是很多朋友们的期待。

近日,项目案名发布,定为中海玖昌源邸

再来看一下项目信息:

项目于25年6月25日土拍,中海以32.73亿元、溢价3.27亿摘得,住宅楼面价20232元/㎡。如果算上其他成本,楼面价高达约22542元/㎡,成为济南新地王。

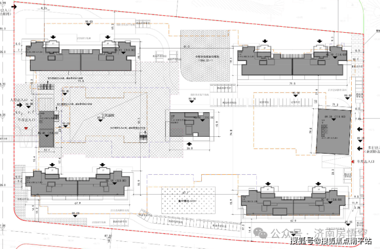
项目容积率2.7,分东、西两个地块,一共规划9栋楼,1栋17+1层小高层,8栋都是20-24层高层产品,规划四代宅产品,388套,套均面积超200㎡。

部分楼栋层高3.3m,户属空中花园面积5998㎡,平均每户空中花园约15㎡。

项目自身素质+拿地价格+四代宅产品,决定了项目的配置将会是市场TOP级别。

济南中海玖昌源邸售楼中心电话400-159-8559接通拨4567(本电话只用做售前咨询)

☎️来电请拨分机号!了解在售楼层户型丨最新销售价格!

☎️温馨提醒:若您计划看房,为确保能享受到更优质、贴心的接待服务,请提前拨打此电话进行预约 。

本资料不作为要约或承诺,图片、文字、数据等仅供参考,仅用于介绍房地产项目

声明:本文由入驻焦点开放平台的作者撰写,除焦点官方账号外,观点仅代表作者本人,不代表焦点立场。