承宁府售楼处—武汉【承宁府】 (2025更新)首页网站-承宁府楼盘详情
扫描到手机,新闻随时看
扫一扫,用手机看文章
更加方便分享给朋友
🅰️🅰️武汉【承宁府】🅰️🅰️
♐售楼处位置400-159-8559转接6666【已认证】◆◆
♐售楼处电话400-159-8559接通后输入6666【24小时热线】◆◆
♐来电预约登记—(领取内部优惠)〢尊享1对1专业置业顾问讲解◆◆
♐郑重承诺:开发商售楼处直销,绝不收取任何费用,中介勿扰!◆◆
♐网上售楼中心〢欢迎来电咨询〢提前预约可享内部优惠〢1v1销售专业讲解!◆◆
国广旁内环芯•四代新中式人文雅宅【承宁府】
国企联袂 双强合璧——建面约115-170㎡ 新中式人文雅宅
项目基础信息
【总建筑面积】:约12万方
【容积率】:约2.5
【规划总户数】:546户
【产品类型】:住宅
【交付标准】:精装
【车位配比】:1:1.09

国企联袂 双强合璧售楼处:☎️☎️售楼处电话400-159-8559转6666【已认证】
·武汉城建集团,不断超越的国之巨匠
武汉城建集团,立足武汉,布局全国20多个省市,连续三年蝉联中国企业500强,资产总额超3900亿元。2020年-2024年稳居武汉房企销售榜全口径榜首。并累计荣获国家级奖项300余项(如鲁班奖、詹天佑奖、广厦奖等)、国际奖项20余项,先后匠心建造了黄鹤楼、东湖绿道、江汉关广场、武汉动物园、琴台文化艺术中心等地标性工程,为武汉贡献了不可或缺的城建力量。

· 硚口更新集团,城市综合服务运营商
硚口城市更新集团是区属重点国有企业,立足"三主三商"战略定位,围绕城市更新总体规划,着力打造集规划、建设、运营于一体的城市综合服务运营商,获得“2025中国城市更新优秀企业 ”、“2025中国住房租赁企业综合实力30强”荣誉。售楼处:☎️☎️售楼处电话400-159-8559转6666【已认证】

· 城市更新者,肩扛社会责任与梦想
硚口城市更新集团统筹推进城市更新项目实施,与武汉城建集团联手,于国广旁内环核芯,打造“首个市区联动的城市更新项目”承宁府,切实履行国有企业政治责任、经济责任、社会责任,实现居民所期待的人居梦想。
立内环 世界潮·10分钟高奢生活圈
🚄枢纽归心,一府点睛武汉
傲居百年经纬的黄金交点,际会风云,所向皆从容。
· 1大十字枢纽丨航空路立交纵横汉口中心
· 2个地铁站点丨约200米至1号线利济北路站、约800米至2号线中山公园站
· 3条干道交汇丨两横:京汉大道/解放大道&一纵:利济北路
售楼处:☎️☎️售楼处电话400-159-8559转6666【已认证】
🛍潮流向心,一府奢藏世界
高净值人群恒藏,成就武汉独树一帜的10分钟高奢生活圈。
· 约100m至武汉K11/约300m至武汉国际广场/约400m至恒隆广场
· 步达鼎奢商圈,实现下楼即入世界橱窗的时尚生活
🏥护佑于心,一府守护健康
见证时光的建筑,不止被珍藏,更被赋予温暖生命力。
· 约400米至同济医院/约1000米至协和医院
· 比邻第一医院/第三人民医院/第四医院,近享华中&武汉三甲医疗
🏫优教育心,一府涵养学识
不可复制的文化精神资产,凝炼汉口百年醇厚学养。
· 3所幼儿园/6所小学/7所初级中学/6所高级中学/1所大学
· 从基础教育到高等学府无缝衔接,铺设精英成长之路
⛲浓荫藏心,一府静取隐逸
占据汉口未被惊扰的静谧,演绎树宅相守的隐贵生活。
· 约600米至中山公园/周边邻近硚口公园
· 体验国广旁“漫步自然式”生态栖居
隐于府 藏安宁
府进制 隐逸园
四进归家,府藏乾坤:
· 恢弘门庭形制: 约90米门庭景墙,酒店式环岛落客区,媲美国宾礼遇
· 国风归家礼序: 礼承东方世家行列式布局,享无界视野,寓意藏风聚气、福泽绵长
· 全维空间雅境: 地面全楼栋连廊覆盖、地下中央车站归家系统,步履所至皆成诗行
· 全明私梯入户: 区域首创全明电梯厅,独梯入户尊享私密,缔造府邸级入户仪式

人文境 聚圈层
独创会所,高知圈层的社交领地
区域首个下沉式会所,内设顶级私宴厅、标准泳池、健身房、瑜伽室,以东方禅意为魂,打造繁华深处的隐世之地,将生活艺术升华至全新境界。


潮奢商街,城市家庭的高阶烟火
社区艺术商业街区、街坊交流外摆空间,为城市精英呈现一处既能满足高端消费需求,又可享受邻里温情的高品质栖居地。


游园韵 藏浓荫
东方禅境,大隐于市:
霓虹深处辟一方静界,曲水连翠微,叠石引清泉,下沉庭院藏纳天地气韵。
雅集共生,人文礼序:
草坪剧场雅聚时光,星空穹幕映光影诗篇,专属宠物天地,礼遇名宠圈层。
高品位 全精装
为你定制,一线大牌的奢装样本
匠心打造全屋臻装体系,甄选国际一线品牌,将新风系统、空调、地暖、智能家居等尖端科技完美融合,重新定义当代奢居典范,进阶生活享受。


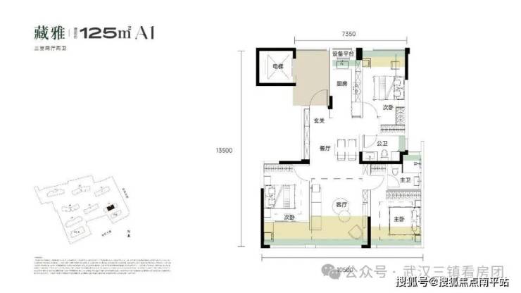
户型鉴赏
🏠高得房率空间 越级奢雅体验
· 全明私梯入户,私梯直达家门,效率隐私双全
· LDKB一体,高利用率空间,周末家庭聚会
· 南向主卧套房,三开间朝南,阳光入室,自由生长
——臻稀小户 全盘仅38套限量发售——
——三开间朝南 优享超高得房率——
🅰️🅰️武汉【承宁府】🅰️🅰️
♐售楼处位置400-159-8559转接6666【已认证】◆◆
♐售楼处电话400-159-8559接通后输入6666【24小时热线】◆◆
♐来电预约登记—(领取内部优惠)〢尊享1对1专业置业顾问讲解◆◆
♐郑重承诺:开发商售楼处直销,绝不收取任何费用,中介勿扰!◆◆
♐网上售楼中心〢欢迎来电咨询〢提前预约可享内部优惠〢1v1销售专业讲解!◆◆
免责声明:本宣传资料所有文字、数据、图片及所标尺寸等仅为本项目建设区域设计效果的表达和示意,为要约邀请,不构成要约内容,相关内容不排除因政府相关规划、规定及其他原因而发生变化,一切有关房屋的具体信息以书面合同及政府最终审批文件为准。
免责声明:本文章文字、数据和图片皆来源网络,如有侵权请告知立马删除,数据图片仅供参考,不作为邀约或承诺。
声明:本文由入驻焦点开放平台的作者撰写,除焦点官方账号外,观点仅代表作者本人,不代表焦点立场。
