保利下大垅项目以高绿化率和创新设计获关注,楼面价8497元/㎡,总建面224129.71㎡,1133户,21栋楼,价格合理,售楼中心专业服务。💗鉴赏热线✆✆400-159-8559转3333(官网认证)💗
🔥🔥长沙【 保利下大垅项目 】🔥🔥
💗鉴赏热线✆✆400-159-8559转3333(官网认证)💗
💗营销中心电话:☎☎400-159-8559转3333【专人接听】💗
💗【售楼中心】网上售楼中心〢欢迎来电咨询💗
💗〢专业一对一热情服务给您专业的置业方案💗
💗〢期待您成为我们的尊贵的业主💗

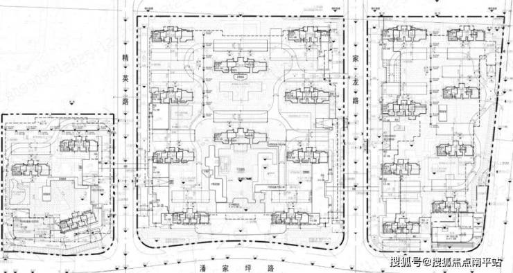
项目概况:
净用地面积:67069.32㎡
总建面:224129.71㎡
容积率:2.59
绿化率:33.31%
户数:1133户
车位数:1034个
共计21栋(A区3栋,B区10栋,C区8栋)

保利下大垅项目是[2025]长沙市053号商住地块,于2025年10月28日开始竞拍。
彼时有保利、中海、建发3家房企争夺该宗地块,经过19轮出价,保利以14.74亿元、溢价率18%拿下这宗宝藏地块, 成交楼面价8497元/㎡。
保利下大垅地块楼面价低于融华天玺(9435元/㎡)、绿城金泓文澜樾华(11156元/㎡)、高于中海锌厂(6550元/㎡),地价相对适中

项目成本=8497元/㎡地价成本+约4000-6000元/㎡建安成本+约8%的税费+营销、管理、财务、资金成本等,成本价至少1.55万元/平。再加上合理利润,价格大家可以测算~
外立面上,项目颜值非常高,创新性采用“无漆房”,大面积使用玻璃幕墙+铝板+金属线条,部分楼栋塔冠采用金属饰条,整体呈现出一种纯净但又不失奢华质感。




120㎡共226套

135㎡户型共计494套

160㎡户型共计303套

185㎡户型共计110套

🔥🔥长沙【 保利下大垅项目 】🔥🔥
💗鉴赏热线✆✆400-159-8559转3333(官网认证)💗
💗营销中心电话:☎☎400-159-8559转3333【专人接听】💗
💗【售楼中心】网上售楼中心〢欢迎来电咨询💗
💗〢专业一对一热情服务给您专业的置业方案💗
💗〢期待您成为我们的尊贵的业主💗
免责声明:本宣传资料所有文字、数据、图片及所标尺寸等仅为本项目建设区域设计效果的表达和示意,为要约邀请,不构成要约内容,相关内容不排除因政府相关规划、规定及其他原因而发生变化,一切有关房屋的具体信息以书面合同及政府最终审批文件为准。免责声明:本文章文字、数据和图片皆来源网络,如有侵权请告知立马删除,数据图片仅供参考,不作为邀约或承诺。