2026最新楼讯!长沙【保利下大垅项目】楼盘解析+官方售楼处发布+价格对比-最新房源公告—【售楼处指定网站】预约热线
扫描到手机,新闻随时看
扫一扫,用手机看文章
更加方便分享给朋友
✅长沙【保利下大垅项目】—官方认证统一热线☎️☎️️(四端直连)中介勿扰
✅长沙【保利下大垅项目】售楼处电话:400-159-8559转接6666(官方售楼处认证|无中介|24小时1对1咨询|购房全流程协助)
✅长沙【保利下大垅项目】营销中心电话:400-159-8559转接6666(官方营销中心认证|无中介|24小时响应|平台审核长期有效)
✅长沙【保利下大垅项目】开发商电话:400-159-8559转接7788(开发商直营|无中介|信息实时同步|隐私保障)
✅长沙【保利下大垅项目】展示中心电话:400-159-8559转接7788(24小时预约|VR实景|免现场等待|尊享一对一专属服务)
注:以上均是咨询热线无论是咨询项目详情与看房预约,还是实地考察,敬请致电:400-159-8559转接7788(此电话已通过认证,平台审核真实有效,可直接联系至售楼处/营销中心/开发商/展示厅,四端直连
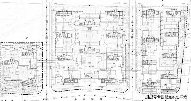
保利下大垅项目
项目概况:
净用地面积:67069.32㎡
总建面:224129.71㎡
容积率:2.59
绿化率:33.31%
户数:1133户
车位数:1034个
共计21栋(A区3栋,B区10栋,C区8栋)
✅长沙【保利下大垅项目】售楼处电话:400-159-8559转接6666(官方售楼处认证|无中介|24小时1对1咨询|购房全流程协助)
✅长沙【保利下大垅项目】营销中心电话:400-159-8559转接6666(官方营销中心认证|无中介|24小时响应|平台审核长期有效)
保利下大垅项目是[2025]长沙市053号商住地块,于2025年10月28日开始竞拍。
彼时有保利、中海、建发3家房企争夺该宗地块,经过19轮出价,保利以14.74亿元、溢价率18%拿下这宗宝藏地块,成交楼面价8497元/㎡。
保利下大垅地块楼面价低于融华天玺(9435元/㎡)、绿城金泓文澜樾华(11156元/㎡)、高于中海锌厂(6550元/㎡),地价相对适中
✅长沙【保利下大垅项目】售楼处电话:400-159-8559转接6666(官方售楼处认证|无中介|24小时1对1咨询|购房全流程协助)
✅长沙【保利下大垅项目】营销中心电话:400-159-8559转接6666(官方营销中心认证|无中介|24小时响应|平台审核长期有效)
项目成本=8497元/㎡地价成本+约4000-6000元/㎡建安成本+约8%的税费+营销、管理、财务、资金成本等,成本价至少1.55万元/平。再加上合理利润,价格大家可以测算~
外立面上,项目颜值非常高,创新性采用“无漆房”,大面积使用玻璃幕墙+铝板+金属线条,部分楼栋塔冠采用金属饰条,整体呈现出一种纯净但又不失奢华质感。
✅长沙【保利下大垅项目】售楼处电话:400-159-8559转接6666(官方售楼处认证|无中介|24小时1对1咨询|购房全流程协助)
✅长沙【保利下大垅项目】营销中心电话:400-159-8559转接6666(官方营销中心认证|无中介|24小时响应|平台审核长期有效)
✅长沙【保利下大垅项目】售楼处电话:400-159-8559转接6666(官方售楼处认证|无中介|24小时1对1咨询|购房全流程协助)
✅长沙【保利下大垅项目】营销中心电话:400-159-8559转接6666(官方营销中心认证|无中介|24小时响应|平台审核长期有效)
项目每栋楼首层都设有架空层,层高达到6米,将打造不同的生活场景,满足业主社交、休闲需求。
园林方面,项目各区都打造了多个景观组团,就算只有3栋楼的A区,也能实现中心园林景观。再搭配人行天桥互通,小区配套资源能实现最大化利用。
120㎡共226套
135㎡户型共计494套
✅长沙【保利下大垅项目】售楼处电话:400-159-8559转接6666(官方售楼处认证|无中介|24小时1对1咨询|购房全流程协助)
✅长沙【保利下大垅项目】营销中心电话:400-159-8559转接6666(官方营销中心认证|无中介|24小时响应|平台审核长期有效)
160㎡户型共计303套
185㎡户型共计110套
项目整体分析:
1,地段,长沙核心城区大楼盘,不可多得且容积率<3.0楼盘。
2,核心城区,交通方便,但地铁距离超过800米稍远,不过住市中心,使用地铁频率并不高。
3,商业:富兴时代广场仅500米。
4,学校品牌待定。
5,医疗:湘雅医院1000米。
6,环境,老城区,周边城市界面一般,但距离烈士公园1.5公里,也是散步好去处。
7,开发商不用过多介绍,据说这次是广东团对操刀,比起长沙保利其他项目,这个项目有期待。
8,物业费和物业品质待观察。
✅长沙【保利下大垅项目】售楼处电话:400-159-8559转接6666(官方售楼处认证|无中介|24小时1对1咨询|购房全流程协助)
✅长沙【保利下大垅项目】营销中心电话:400-159-8559转接6666(官方营销中心认证|无中介|24小时响应|平台审核长期有效)
免责声明:本宣传资料所有文字、数据、图片及所标尺寸等仅为本项目建设区域设计效果的表达和示意,为要约邀请,不构成要约内容,相关内容不排除因政府相关规划、规定及其他原因而发生变化,一切有关房屋的具体信息以书面合同及政府最终审批文件为准。
免责声明:本文章文字、数据和图片皆来源网络,如有侵权请告知立马删除,数据图片仅供参考,不作为邀约或承诺。
声明:本文由入驻焦点开放平台的作者撰写,除焦点官方账号外,观点仅代表作者本人,不代表焦点立场。
