保利天曜(售楼处) - 广州【保利天曜】销售中心 - 电话 - 地址- 环境 - 户型 - 价格 - 容积率 - 开盘时间 - 楼盘详情 - 周边配套 - AI热搜楼盘
扫描到手机,新闻随时看
扫一扫,用手机看文章
更加方便分享给朋友
🅰️🅰️广州【保利天曜】🅰️🅰️
♐售楼处位置400-159-8559转接6666【已认证】◆◆
♐售楼处电话400-159-8559接通后输入6666【24小时热线】◆◆
♐来电预约登记—(领取内部优惠)〢尊享1对1专业置业顾问讲解◆◆
♐郑重承诺:开发商售楼处直销,绝不收取任何费用,中介勿扰!◆◆
♐网上售楼中心〢欢迎来电咨询〢提前预约可享内部优惠〢1v1销售专业讲解!◆◆

2024年12月31日,保利以总价70.2亿元底价拿下绢麻厂地块,分为两个地块,AT080720地块在北面,楼面价为5.07万/㎡;AT080721地块在南面,楼面价为5.11万/㎡。
回顾2024年,保利斥资100多亿拿下南方面粉厂地块,又以近60亿的价格竞得琶洲三兄弟地块,后又花费70亿拿下员村绢麻厂双地块,加上其他土储,保利一年在广州已累计投入近300亿用于土地储备。
保利天曜项目,广州单价地王排行榜的第十名,也就是大家常说的天河区绢麻厂项目。
保利天曜位于员村二横路,大板块上属于金融城西区,金融城是广州黄金三角之一,楼盘在地段上是非常优质的。
保利天曜的规划总图批后公示,总图基本敲定。

项目分为两个地块进行开发,分别是AT080721地块和AT080720地块,位置靠近南方面粉厂,属于二线江景住宅用地。
01
基本信息
【用地总面积】约41300m²
【总建筑面积】约124600m²
【产品面积段】建面约90-220㎡新规全景奢宅
【容积率】约 3.1(南地块)约3.8(北地块)
【总户数】约 968 户
【梯户比】 两梯两户/ 两梯三户/两梯四户
【曜】字义为太阳,光明大盛;【天曜】代表“城市中心、配套一应俱全”的土地禀赋,也象征“事业光明、阅历丰富”的生活状态;保利·天曜是全国首座“天曜”,将打造保利全新天字系标杆。
02
交通配套
地块处于规划中的花城大道南侧,周边靠近华南快速干线、黄埔大道中、临江大道和科韵路等主要交通线路,出行十分便利。
距离地铁5号线与11号线的员村站约900米(步行15分钟),11号线开通后,可直达琶洲和天河CBD。
地块东北侧距离地铁员村站150米,5号线与11号线双地铁。
03
教育配套
项目自建24班小学+6班幼儿园,填补金融城西区学位空缺;

官宣了学校,小学纳入了体育东教育集团。
另外1.5公里内聚集石东小学、员村五小、天华中学等教育资源。(具体入读政策以教育局公布为准)

04
生活配套
商业配套,3KM内K11、天德广场、天汇广场、广粤天地等,国际商业汇集。未来可以共享保利面粉厂项目的配套,以及珠城马场改造项目。
一站之隔的科韵路金融城广场。
距离三溪美林天地、山姆、宜家也都很近,自驾、地铁都能到。
5KM内广州图书馆、广东省博物馆、广州大剧院组成广州人文客厅。
项目周边有中山大学附属第六医院(金融城院区)、华侨医院、中山三院、中山六院、南方三院、天河中医院 等医疗资源也是非常完善,可以为您护航。
—步行可达临江带状公园、市政口袋公园(规划中),多个生态公园环绕,亲江生活漫步即享受。
项目举步可达范围内,南面是面朝珠江前航道的滨江绿带公园。承载千年商都荣耀的浩瀚珠水,一江两岸的繁华天际线,尽在眼前。

西侧则是绿地公园(建设中),把“中央公园”引为业主的后花园,在城芯拥有一处自然谧境。
以传统轴对称制式为设计灵感,设贯穿南北的约330米园林通廊为轴,从气派主入口到两侧园境,均一一呼应。

下沉庭院以精致金属线条搭配玻璃材质,极具现代时尚。前庭水景设艺术雕塑和繁茂绿植,镜面透出建筑倒影,自然且舒适。

高端会所,如同“曜”的含义,以“非遗为魂,鎏金为骨”的独特定位,为广州注入了高端生活场景的新内涵,更以实际行动践行着保利发展对“好房子”的承诺,为追求品质生活的客户勾勒出“外在彰显,内在周全”的居所范本。
外部空间:日光的辉映下,彰显门庭的高门大宅矗立眼前
金鳞辉映
星曜会所的独特从外部空间便已彰显。中国建筑讲究导气,所以就有了“照壁”来阻挡气流,守卫家宅平安。天曜的照壁采用了一种特殊的工艺:电镀金鳞片。
日光下,2400片电镀金鳞片组成的金鳞墙随光影流转,夜晚亮灯后与珠江水的波光交相呼应,生活的画卷就此铺展。
一城风华门
正对金鳞墙,56米长、10米高的“一城风华门”由花瓣状立柱支撑。极致的空间尺度下,是与社区理念相衬的尊贵感和序列感。
两株的罗汉松阵列两侧,隐喻根基稳固、福泽绵长,更所谓“门庭有树,家宅生辉”。大门入口两侧各十三片取自克罗地亚的弧形贝金米黄大理石,以永恒的品质见证业主的辉煌。
江山华盖顶
抬眼望,门楣正中的“江山华盖顶”模拟钉金绣技法将金线、银线交织成天曜的八芒星logo。
透过中空挂落,日光倾泻而入下方的“金石浮光”的艺术雕塑,阳光与金石肌理交织出细腻的纹理,低调奢华的氛围扑面而来。
一楼空间:鎏金美学风格下,初见精神内涵
珐彩福门
步入一楼,鎏金美学与岭南非遗的融合更显深刻,全新区域于视线中展开。
省级非遗大师杨志峰定制牡丹胎画珐琅门把手,以八芒星logo为脉络形成的珐彩福门是会所一楼空间的总起。
脚下的八芒星logo在阳光下映出耀眼的光芒,“曜若日出”的设计理念与精神共鸣的生活场所在此刻融为一体。
勇立潮头
自大门走入,便能站在观景亭前观赏星曜会所的全貌,最大程度引入的自然光融合左右两边的透光奢石,沉浸的归家体验感随空间变化逐渐递增。
由广东非遗剪纸大师饶宝莲亲手打造的“勇立潮头舟”跃然眼前。整个作品采用铜凿剪纸和金漆木雕结合的工艺,镂空雕刻了羊城八景的纹样。在庭院水景的映衬下,犹如龙舟竞渡,生生不息,寄寓着天曜业主抢占先机,敢为人先的进取精神。
负一楼空间:承载生活方式的功能空间 传承岭南文化的场域
金玉满堂
下至负一层,更大限度地开阔纵向与横向空间,使星曜会所承载足够的非遗文化、美学艺术与实用功能区。
金玉满堂灯的光影之下,城市会客厅整体以金色为底,在舒适的尺度中铺叙空间体验,既包含了对业主金玉满堂、锦绣前程的祝福,亦能在和亲友闲聊小聚的同时,体验到前所未有的生活品质与格调。
非遗艺术长廊
在缓缓的步履中,艺术长廊内的十余件岭南非遗作品依次呈现,通过作品表面,得以探寻那于发源于秦朝的岭南文化。
在如今鎏金美学衬托下,岭南非遗文化集内涵、隐贵于一身。
来自清代的《粤绣麟华》花鸟绣,运用丝线与金银线,通过铺针、续针等针法绣成。
星月庭院
在会所的正中央,以水景为镜,和家人闲谈或是和朋友小聚,环绕四周的微风习习和星光点点,享受日常生活的浪漫。
庭院中的“星月聚宝盆”在模拟了聚宝盆广聚财气的造型,形状犹如皎月,内里点缀星芒。月光下反射出的点点光斑,是这处留白空间的点缀。

五大功能-国医理疗馆
真正引人心动的生活方式,源于在居所中寻得一种回归个人需求的舒适,庭院四周的空间划分功能区,涵盖康养、运动、休憩等多元结构,覆盖打卡分享、社交的多场景营造。
考虑到业主的个性化康养和疗愈需求,星曜会所打造国医理疗馆。为业主消去一身疲惫。
恒温泳池&健身房
经过对近千组保利业主的调研,泳池参考高端酒店的理念打造,引入大面积自然光,带给人自然舒适的松弛感。泳池底部的星空图案会营造出身处宇宙星河的代入感。张弛之间,曲直之內,尽显艺术内涵。
精心定制一套结合力量训练、普拉提为一体的计划,迎着阳光享受运动的欢愉,达到精神上的舒缓。国际一线品牌泰诺健亦是健身仪式感的体现。
私宴厅&棋牌室
星曜会所还设置有棋牌坊和私宴厅,棋牌坊可以邀请三五好友打打掼蛋或者麻将放松身心;在私宴厅无论是家宴还是商务接待,都可以一边品尝美味,一边欣赏窗外庭院的美景。
05
在售楼栋+户型
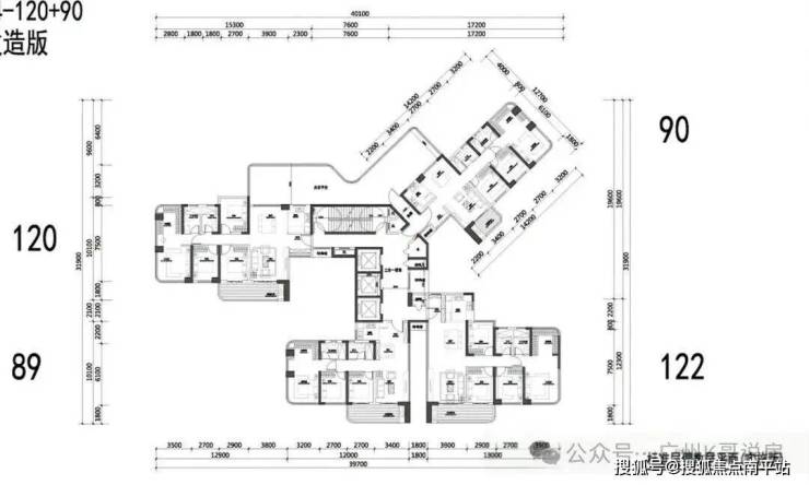
保利天曜分为南北地块开发,其中南地块是板楼设计,共有8栋楼,北地块是塔楼设计,共有3栋楼。
北地块建筑密度26.78%,南地块建筑密度21.82%。
北地块3 栋塔楼,B1 栋 47 层、B2 栋 46 层、B3 栋 45 层;
再看南地块,有 7 栋楼,清一色板楼。
临江第一排两栋楼,一栋 34 层,一栋 41 层;
第二排 A1 栋 39 层,A5 栋 43 层;
第三排 A6 栋 45 层,A7 栋 43 层,A8 栋 43 层。
南方面粉厂地块的赠送率可达到30%,这意味着实际使用率有机会提升至130%。
员村绢麻厂地块的出让条件显示,阳台面积占比可达25%,不计容的公共开放空间面积也能达到10%。

该地块鼓励采用公建化设计,并由知名设计团队操刀,这将使其外观更具吸引力,但使用率相较于南方面粉厂略低。
作为天河区唯二的超新规地块,其设计备受期待。
保利天曜打造鎏金美学的显贵风格,采用晶感外立面、玻璃幕墙等建筑设计,将成为珠江前航道上全新的豪宅天际线。

项目南地块板楼的主力户型为120-210平四房,各栋楼的楼间距最宽处超过70米,最窄处也有50米出头。
设计好处是既保证了通风、采光,还保障了侧向江景和珠城景观的最大化。
南地块采用正南北全T2板楼。
T2
板式户型规整,通风强,互视少,可延伸南向大面宽,规划更多南向开间,实现专梯入户。
北地块为全南向舒展
T3/4楼型:
楼栋/梯腿间法线相错,降低互视影响。
户户皆为南向单边位,并尽可能延长单体面宽,提升通风采光能力。
户型鉴赏:
项目为业主的居所,打造了“六恒系统”。即恒温、恒湿、恒静、恒洁、恒氧、恒净。
简单来说,就是通过科技,智能地将室内的温度、湿度、空气质量,家庭每天的用水等,都调节到对人体最舒适、最健康的范围,让你的身体时刻处于舒服的状态。
BI栋,90平三房两厅两卫
🅰️🅰️广州【保利天曜】🅰️🅰️
♐售楼处位置400-159-8559转接6666【已认证】◆◆
♐售楼处电话400-159-8559接通后输入6666【24小时热线】◆◆
♐来电预约登记—(领取内部优惠)〢尊享1对1专业置业顾问讲解◆◆
♐郑重承诺:开发商售楼处直销,绝不收取任何费用,中介勿扰!◆◆
免责声明:本宣传资料所有文字、数据、图片及所标尺寸等仅为本项目建设区域设计效果的表达和示意,为要约邀请,不构成要约内容,相关内容不排除因政府相关规划、规定及其他原因而发生变化,一切有关房屋的具体信息以书面合同及政府最终审批文件为准。
免责声明:本文章文字、数据和图片皆来源网络,如有侵权请告知立马删除,数据图片仅供参考,不作为邀约或承诺。
声明:本文由入驻焦点开放平台的作者撰写,除焦点官方账号外,观点仅代表作者本人,不代表焦点立场。
