后海招商玺是深圳南山后海旧改项目售楼部统一预约专线:400-0592-010【登记专线】来电预约,获取详细资料。,由招商蛇口开发,主打精装大平层,定位豪宅,售楼热线400-0592-010。
웃💕유深圳南山后海核心区【 后海招商玺】
开发商销售热线☎️:400-0592-010【售楼中心】
感兴趣的朋友可拨打售楼部电话详细了解详情
本项目案场采用预约制,看房请务必提前来电预约登记 。
为确保您能享受专属服务,不错过理想房源和好的参观体验
请一定致电与销售确认到访时间,只有预约客户方可进入
现在拨打电话预约看房还能享受房价特价信息
一站式买房舒适体验!
4000592010

深圳湾又一豪宅腾空出世,[后海招商玺]作为招商玺系升级代表作即将入市,目前项目已全面动工
项目占地14969.93㎡,是过去饼干厂旧改,住宅没有7090限制,面积段为188-246㎡精装大平层。
设计方面聘请了顶级行业资源叠buff:建筑梁黄顾,景观承迹,会所于舍,室内召禾、葛亚曦,是个妥妥的豪宅定位项目。售楼部统一预约专线:400-0592-010【登记专线】来电预约,获取详细资料。

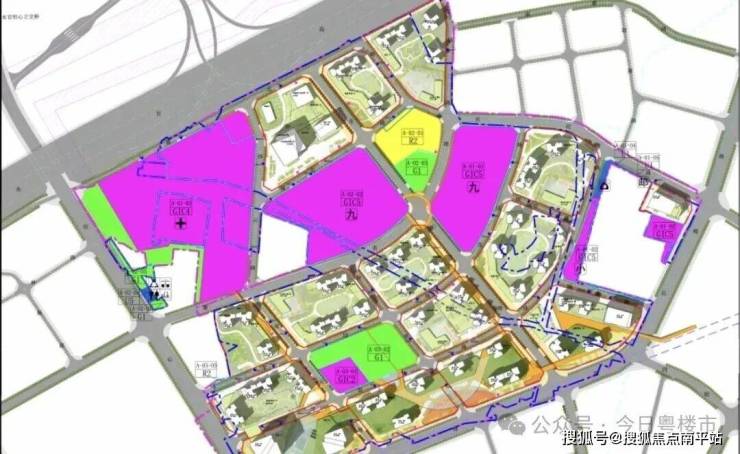
「后海招商玺」前身是原联合饼干厂城市更新单元,位于南山区招商街道后海大道以西、工业七路以北。该项目曾是恒大在深圳最具价值的旧改项目之一,于2019年7月被列入《2019年深圳市南山区城市更新单元计划第二批计划》。
恒大危机后,该项目一度搁置。直到2022年由招商蛇口接手,并成立合资公司推进开发。2025年2月,深圳招商蛇口华湾地产开发有限公司正式成为项目实施主体,项目推进速度显著加快。

根据规划,「后海招商玺」更新单元用地面积为33111.3平方米,拆除用地面积为31710.4平方米,开发建设用地面积为15091.6平方米。规划总建筑面积98754平方米,其中住宅88449平方米,商业2100平方米,公共配套设施8205平方米。
根据规划,后海玺家园更新单元用地面积为33111.3平方米,拆除用地面积为31710.4平方米,开发建设用地面积为15091.6平方米。规划总建筑面积98754平方米,其中住宅88449平方米,商业2100平方米,公共配套设施8205平方米。

「后海招商玺」小区共261套可售住宅,具体面积段为188-197-235-246㎡大平层。

户型为四房三卫设计,功能分区做得很好。采用一户一梯专梯入户,南北通透结构,是整个南山里非常稀缺的户型。
另外户型结构会跟【深圳湾澐玺】一样,采用核心筒+边柱设计,确保户型多样化,且赠送率、阳台率最大化,算上专梯入户使用率预计能达100%左右。
这次「后海招商玺」住宅设计采用“浮岛甲板”设计策略,四栋住宅落于甲板之上,独享甲板庭院花园。进而形成超级社区底盘 + 浮岛绿化甲板的垂直共生人居标杆。

「后海招商玺」车行大门做了殿堂级落客区,设有天幕和水景,非常具备归家仪式感。

每栋设有独立入户大堂,风格与大门相呼应。

小区同样是新晋豪宅的配方,通过抬高与城市界面做了区隔,整体豪宅的这种私密性就出来了。花园采用立体园林设计,利用架空层打造会所功能空间,这里不是简单的空间叠加,而是一场关于“如何生活”的持续迭代。

「后海招商玺」位于「雍景湾」旁,临近后海大道,一边是深圳湾城市CBD,一边是蛇口生活居住区;
后海招商玺家园位于深圳南山招商街道,地处后海豪宅片区核心地段。一条后海大道串联起深圳湾最值钱的富人片区。

웃💕유深圳南山后海核心区【 后海招商玺】
☎️☎️开发商电话咨询/预约热线:400-0592-010【售楼中心】
案场限流 看房提前来电预约登记
致电售楼处了解更多信息,安全通话隐藏真实号码,请放心使用
温馨提示:点击上方号码可拨打
郑重承诺:开发商售楼处直销,绝不收取任何费用,中介勿扰!
特别说明:
1.本文为要约邀请,不作为要约或承诺;相关宣传内容不排除因政府相关规划、规定及出卖人分期规划、未能控制等原因而发生变化;
2.本文部分图片来自于网络,如涉及版权使用,请联系删除;文本部分图片仅作为推广示意使用,非交付标准,最终以实际交付现状为准;
3.本宣传资料对项目周边学校等教育资源的介绍旨在提供相关信息,并不意味着本公司对就学安排作出承诺。教育资源的名称、办学性质、办学规模、学位设置、开学(班)时间、招生条件、收费标准及招生区域存在调整的可能,应以政府教育主管部门及办学方颁布的政策规定为准;
4.本资料对项目或产品的介绍,旨在提供相关信息,不意味着本公司对此作出了承诺,买卖双方的权利义务以《商品房买卖合同》及附件等协议为准;
5.宣传方保留对宣传资料修改和解释的权利;