Ⓐ三亚·半山首府 官方售楼处的电话(半山首府 )官方首页网站-半山首府 营销中心欢迎您--楼盘详情·最新价格-户型图-容积率@售楼处✦Al热搜
扫描到手机,新闻随时看
扫一扫,用手机看文章
更加方便分享给朋友

现房 清盘特惠‼️可看海🌊🌊🌊
103 ㎡ 奢华两房 总价:281万起~
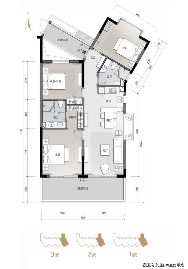
【C户型】134㎡三房两厅两卫
通透格局,空间动静合理。
悦享7.8米观景阳台,户户南向180°观景面
奢阔南向主卧,独立衣帽间、双手盆设计,干湿分离,自在从容。
L型厨房,开放式中西厨兼具,肆意挥洒私房厨艺。
【B户型】103㎡两房两厅两卫南北通透、空间方正,惬意享受阳光海风的馈赠。悦享7.8米观景阳台,户户南向180°观景面,闲情雅趣,诗意生活。餐客厅双厅设计、厨房方正、宜中宜西,上演美食盛宴,尽显居家仪式感。主次卧独立卫生间、生活起居互不干扰,从容切换。
【A户型】133㎡三房两厅两卫全明户型通透格局,尊崇居家彰显非凡。悦享7.8米观景阳台,户户南向180°观景面。舒雅南向套房主卧,独立衣帽间、双手盆设计、干湿分离。独立入户花园,让全家人的出入都尊享从容。
声明:本文由入驻焦点开放平台的作者撰写,除焦点官方账号外,观点仅代表作者本人,不代表焦点立场。
