Ⓐ厦门中海峯汇里【售楼处】首页网站→中海峯汇里营销中心→中海峯汇里欢迎您-楼盘详情-最新价格-户型图-容积率@售楼处
扫描到手机,新闻随时看
扫一扫,用手机看文章
更加方便分享给朋友
楼盘地址:
•厦门市思明区会展路373号,距离地铁2号线软件园二期站3号口步行410米;
2. 土地性质/建成时间:
•土地性质:住宅用地,使用年限70年;
•建成时间:预计2025年12月精装交付;
3. 建筑规模与规划:
•总占地面积:约1.2万平方米;
•总建筑面积:约6.2万平方米;
•总户数:约1145户,规划8栋29-32层高层住宅,车位配比1:1.1,楼间距30-40米、容积率5.15,绿化率30%;
4. 户型设计与布局:
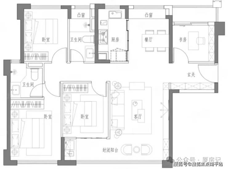
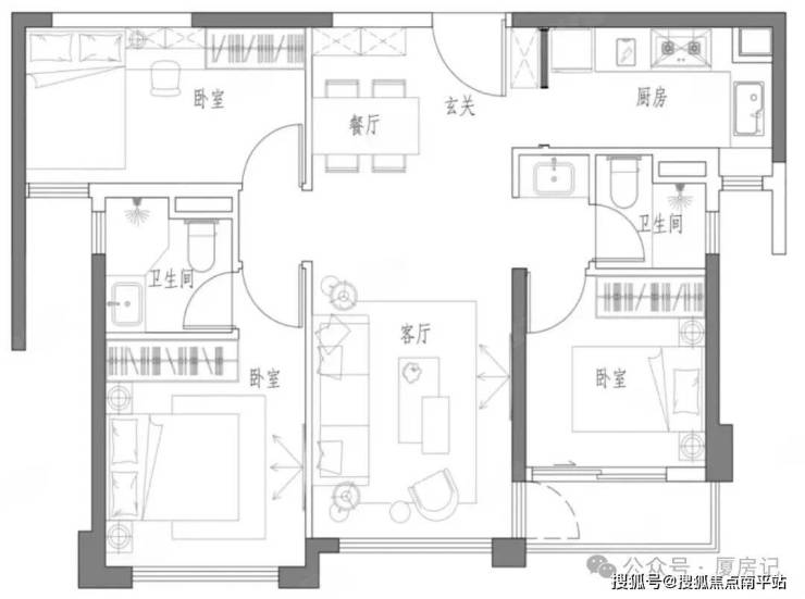
•主力户型为89-121-135-190㎡三至四房;
上图户型89平参考
上图户型121平参考
上图户型135平参考
上图户型190平参考
5. 开发/物业:
•开发商:中海地产;
•物业:中海物业,物业费约4.98元/㎡·月(以实时物价为准);
6. 社区配套
交通配套:
•公交:软件园东二门站(靠软件园东二门站点)覆盖 39路 M13路 47路 M39路 641路 753路 759路 949路 D1路 D3路 D28路 D990路等公交路线;软件园东二门站(靠中海峯汇里西大门侧站点)覆盖;28路 38路 92路 127路 D990路 M39路 641路 753路 759路 949路 D29路 D2路等公交路线;
•地铁:距离地铁2号线软件园二期站仅200米;
•自驾:紧邻环岛干道、仙岳路翔安隧道等主干道;
购物配套:
•周边1公里范围内有JFC品尚中心、宝龙一城、天虹君尚等高端商业体;
教育配套:
•幼儿园:社区北面配建有厦门市禾悦幼儿园;
•小学部:大同小学岭兜校区;
•初中部:第11片区多校划片,覆盖大同中学、双十思明分校、厦门一中思明分校、外国语瑞景分校等名校;
•实际派位学校以教育局公告为准;
医疗配套:
•周边有前埔医院、厦大附属眼科医院、弘爱医院等;
公园(休闲):
•休闲配套涵盖黄厝海滩、香山游艇会等;
声明:本文由入驻焦点开放平台的作者撰写,除焦点官方账号外,观点仅代表作者本人,不代表焦点立场。
