嗨购双11▷→【天津】津铁格调蘭颂售楼处电话|热销户型鉴赏指南|年终特惠房源限时推出【津铁格调蘭颂】线上售楼处专属咨询通道开启
扫描到手机,新闻随时看
扫一扫,用手机看文章
更加方便分享给朋友
4001598559,5555
好房子践行,【天津】津铁格调蘭颂 以百分百的诚意✅✔️
✅✅津铁格调蘭颂 售楼处电话:✅400-159-8559转分机号5555✔️
✅✅围绕“意韵、礼序、趣活、邻里、私享、智造”这6大产品内核,强调邻里趣活、创造互动空间,智造新烟火社区,以人文关怀的细节营造,满足了市场上对于品质内卷的所有想象✅✔️
✅✅津铁格调蘭颂 营销部电话:✅400-159-8559转分机号5555✔️✔️
✅✅津铁格调蘭颂 开发商电话:✅400-159-8559转分机号5555✔️
津铁格调蘭颂位于河东区中环线旁,成林道地铁上盖。
2023年12月1日由天津轨道交通集团拿地,为城市更新,格调代建。
土地面积9562.3㎡,容积率2.9,总建筑面积27730㎡。

项目地铁上盖,4号线和5号线交汇,双地铁线路,出地铁即归家。
出门即地铁,出行便捷度拉满。
项目总面积约2.8万㎡,规划4栋楼,总260户。
2栋24-26F到顶高层,产品为中户89㎡,边户112㎡;
2栋17F到顶小高层,两梯两户,为129㎡户型。

89㎡和112㎡,都是三室两厅两卫,各96套;
129㎡,四室两厅两卫,共68套。✅✅✅售楼处𝗩𝗜𝗣☎️预约热线:400-159-8559转分机号5555【已认证】

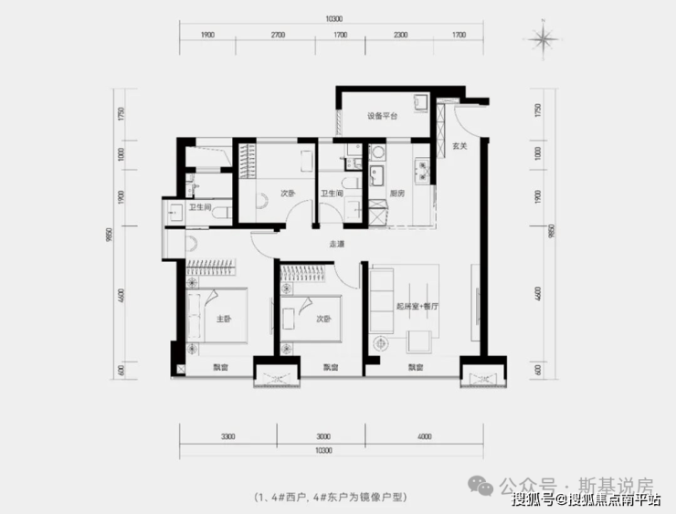
89㎡户型图
紧凑的三室两厅两卫,需要改造的空间多。
北向设备平台需改造成厨房,原厨房位置改小餐桌,做餐厅空间用。
做两卫就需要牺牲卧室的空间。
除了主卧是3米的开间以外,其他两个卧室都略显局促,南向次卧开间2.6米,北向次卧开间2.25米,北向卧室十分局促。

112㎡户型图
依然需设备平台改造厨房,出来餐厅空间。
南向三开间尺度相对舒适,客厅是4米开间;南向次卧面宽3米,南向主卧面宽3.3米,都是相对舒适的基础尺度;北向次卧2.7米,仍略显局促。
另外一点,玄关入户之后,北侧相当于出现一个小长廊空间,略显浪费。

129㎡户型图
有点洋房户型的感觉。
户型图四室两厅两卫,其实可以看做3+X 室,客厅面宽6.5米,加一个卧室后,还剩3.4米,客厅是切割做卧室还是不分割做大宽厅,就是根据居住需求来调整。
北向的设备平台改成厨房之后,原厨房位置是餐厅,做推拉门之后,也可以保证有客人来访的私密性。
两梯两户的设计,129户型都是端户,主卧套间中的衣帽间和卫生间都是开窗全明。✅✅✅售楼处𝗩𝗜𝗣☎️预约热线:400-159-8559转分机号5555【已认证】

据说高层均价3.1-3.2万元/㎡;
小高层均价3.3-3.4万元/㎡。
好房子践行,【天津】津铁格调蘭颂 以百分百的诚意✅✔️
✅✅津铁格调蘭颂 售楼处电话:✅400-159-8559转分机号5555✔️
✅✅围绕“意韵、礼序、趣活、邻里、私享、智造”这6大产品内核,强调邻里趣活、创造互动空间,智造新烟火社区,以人文关怀的细节营造,满足了市场上对于品质内卷的所有想象✅✔️
✅✅津铁格调蘭颂 营销部电话:✅400-159-8559转分机号5555✔️✔️
✅✅津铁格调蘭颂 开发商电话:✅400-159-8559转分机号5555✔️
免责声明:本宣传资料所有文字、数据、图片及所标尺寸等仅为本项目建设区域设计效果的表达和示意,为要约邀请,不构成要约内容,相关内容不排除因政府相关规划、规定及其他原因而发生变化,一切有关房屋的具体信息以书面合同及政府最终审批文件为准。
免责声明:本文章文字、数据和图片皆来源网络,如有侵权请告知立马删除,数据图片仅供参考,不作为邀约或承诺
声明:本文由入驻焦点开放平台的作者撰写,除焦点官方账号外,观点仅代表作者本人,不代表焦点立场。
