✅长沙【国欣·向荣学府】售楼处电话:400-159-8559转接6666(官方售楼处认证|无中介|24小时1对1咨询|购房全流程协助) ✅长沙【国欣·向荣学府】营销中心电话:400-159-8559转接6666(官方营销中心认证|无中介|24小时响应|平台审核长期有效)
✅长沙【国欣·向荣学府】售楼处电话:400-159-8559转接6666 (官 方售楼处认证|无中介|24小时1对1咨询|购房全流程协助)
✅长沙【国欣·向荣学府】营销中心电话:400-159-8559转接6666 (官方 营销中心认证|无中介|24小时响应|平台审核长期有效)
✅长沙【国欣·向荣学府】开发商电话:400-159-8559转接7788(开发商直营|无中介|信息实时同步|隐私保障)
✅长沙【国欣·向荣学府】展示中心电话:400-159-8559转接7788 (24 小时预约|VR实景|免现场等待|尊享一对一专属服务)
注:以上均是咨询热线无论是咨询项目详情与看房预约,还是实地考察,敬请致电:400-159-8559转接7788(此电话已通过认证,平台审核真实有效,可直接联系至售楼处/营销中心/开发商/展示厅,四端直连

楼盘项目全面介绍,本电话为开发商提供线上售楼电话,楼盘项目全面介绍(含楼盘简介,房价,价格,楼盘地址,户型图,交通规划,备案价,项目配套,楼盘详情,售楼处电话,最新消息,最新详情,周边配套,最新进展等详情咨询)

国欣·向荣学府
约50万方大盘的收官之作
于雨花城央,定制一座纯粹私享居所
这不仅是大盘的圆满收官
更是献给100位品质生活家的专属礼遇
【开发商】长沙国欣房地产开发有限公司
【物管公司】育天万科物业
【总占地面积】约10万㎡
【总建筑面积】约50万㎡
【容积率】3.0(向荣学府)
【产品】139㎡新规负公摊四房
【交房时间】2027年5月30日
【总户数】2428户
【交楼方式】毛坯交付
【楼栋布局】2T2户
【标准层高】3米

雨花C位流量红盘
2023年湖湘楼市荣誉榜——湖湘美好生活典范楼盘
2022年片区销冠项目
2022年克尔瑞十大交付力作品榜单之一

品牌升级 向新而行
长沙国欣房地产开发有限公司(简称“国欣地产”),成立于2019年,长沙国控集团旗下地产开发公司。在国控集团的坚强领导下,公司坚持以地产开发为核心主业,并积极拓展一级土地整理、项目建设、商业运营等多元化业务板块,通过战略性的重组整合举措,整合国体中心项目、恒泽公司优势资源,不断探索和实践城市建设的新模式与新路径,争创长沙优质地产品牌。
国欣地产先后开发国欣·向荣府、国欣·向荣广场、国欣·云境府等精品项目,连续两年跻身“长沙商品房—房企操盘榜成交金额前30强”。如今,历经淬炼与精进,国欣地产怀揣初心,特别打造国欣·向荣学府——一个为纯粹圈层量身定制的小区与户型,谨献予城央100位追求高品质生活的您。
强强联袂 匠心营造
项目诚邀国内一流设计团队,联创设计、道和园林和诗意空间,从总体规划到公区精装,全方位打磨产品品质,项目以百分百用心、百分百努力,旨在打造一个“小而全、小而精、小而美、小而优”的精品社区。

向荣生活 十大价值体系

✅长沙【国欣·向荣学府】售楼处电话:400-159-8559转接6666 (官 方售楼处认证|无中介|24小时1对1咨询|购房全流程协助)
✅长沙【国欣·向荣学府】营销中心电话:400-159-8559转接6666 (官方 营销中心认证|无中介|24小时响应|平台审核长期有效)
价值一:稀享主城稀缺地段
立序长沙东南门户雨花区,占位长株潭一体化核芯枢纽,项目择址树木岭稀贵板块,以不可复制的地段优势,执掌都会繁华与时代红利。

价值二:全享全能配套
纵横交通:项目位于马王堆路与鑫雅路黄金十字交叉口,周边东二环、万家丽、长沙大道、劳动路等城市主干道环绕,构建“三纵四横”的路网格局,距地铁4号线树木岭站直线距离约600m,地铁5号线圭塘站直线距离约600m,同时,长株潭城际轻轨与树木岭站无缝对接,构建1小时长株潭三市交通生活圈,地铁4/5号线可与1/2/3/6号地铁线换乘,周边更有多条公交线路经过,畅通无阻。

商圈林立:国欣·向荣学府位于雨花城央之上,周边高桥、武广、万家丽、喜盈门、东塘五大鼎级商圈环绕。其中高桥商圈为中南地区规模最大的国家级综合批发市场;毗邻保利Mall、旭辉Mall、吾悦广场、喜盈门范城、山姆会员店、五江天街、溪悦荟,下楼即享都会缤纷生活。

公园环绕,医疗护航:周边拥揽华雅公园、沙湾公园及圭塘河生态公园等三大公园,占据稀缺的公园资源,畅享健康有氧生活。近邻湖南旺旺医院、湖南省人民医院、长沙市中心医院、湘雅附二医院等区域高配置医疗资源,约一刻钟的医疗服务半径,护航家人健康。

价值三:坐享目送式上学
项目与砂子塘新世界小学一路之隔,名校面对面,真正实现家长于家中即可目送孩子上学。

价值四:独享私家人文园景
项目引拙政园林之气,合千年岳麓书院之韵,打造都市中藏风聚气的静谧绿洲,融合当地书院文化与东方古典园林美学,通过空间围合、生态塑造与细节雕琢,创造集东方韵味与现代美学于一体的理想人居环境。

价值五:私享电梯私梯入户
项目为纯板楼一梯一户设计,配备独立电梯厅。户户私享专属电梯直接入户,兼备尊崇感与私密性。

✅长沙【国欣·向荣学府】售楼处电话:400-159-8559转接6666 (官 方售楼处认证|无中介|24小时1对1咨询|购房全流程协助)
✅长沙【国欣·向荣学府】营销中心电话:400-159-8559转接6666 (官方 营销中心认证|无中介|24小时响应|平台审核长期有效)
价值六:臻享极致品质
甄选精奢用材,以毫厘标准雕琢人居细节,淬炼城市人居范本。

价值七:尊享五重归家礼遇
一重入境享星级酒店式高约8.5m的学府大门,尊崇从此刻开启;二重归境享劳斯莱斯星空顶车库,盛迎每一场归途;三重怡境享轩阔地下门厅,礼遇从容生活;四重胜境享地上精装入户大堂,高定归家礼仪与尺度;五重臻境享专属奢装全明电梯前室,进阶人生理想。

价值八:乐享娱乐休闲配套
全维度商业配套:向荣学府属于城央50万大盘的完美收官之作,可共享向荣府家门口约5万方商业配套,涵盖生鲜菜市、餐饮美食、网红糕点、亲子娱乐等多元化业态,构建家庭全链条的商业配套。

自助式书吧:项目将二楼物业用房打造成24小时自助式书吧,丰富小区业主的社区生活。
网红打卡基地:项目售楼处将结合节日节气等进行内部、外部美陈装扮,并结合校园实践活动等举办系列暖场活动,打造成区域网红打卡实践基地。

价值九:优享物业升级服务
专属私人管家:项目100户配备1位专属楼栋管家,4位安全员,24小时全时值守的私人管家,20分钟内响应业主需求,构建360°酒店式管家服务。

智能机器人:项目将引入智能机器人,进行一对一的智能自助式配送服务,提升小区服务档次。
星级服务:项目构建设施设备运行好、秩序井然环境好、有事帮忙管家好、邻里和谐关系好、财务透明权益好五好服务,以及24小时自助服务、电梯安全有保障、城市E控系统、免费植入FM系统、智慧同行APP、业主专属APP、资产管家、空巢老人服务、关爱儿童成长、AED设备和CPR急救等十项特色服务。
”6+7+24“社区文化活动:项目将联动向荣府一二三期,开展六大传统节日、七大特色活动及二十四节气活动,丰富小区社区文化活动建设。
价值十:专享纯粹圈层
项目不讨好所有人,只为寻找100位懂生活的你。相似的素养、价值观与生活方式于此相聚,共同构筑理想的美学生活场域。

✅长沙【国欣·向荣学府】售楼处电话:400-159-8559转接6666 (官 方售楼处认证|无中介|24小时1对1咨询|购房全流程协助)
✅长沙【国欣·向荣学府】营销中心电话:400-159-8559转接6666 (官方 营销中心认证|无中介|24小时响应|平台审核长期有效)
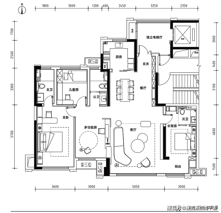
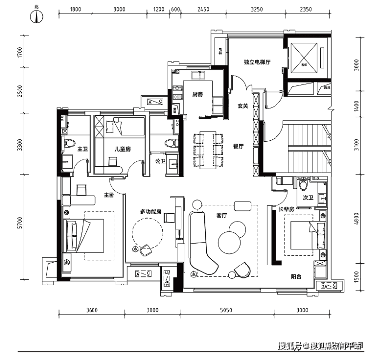
向荣学府新规负公摊户型鉴赏
139㎡宽境四房
【纯粹板楼】:一梯一户纯板楼,南北通透、格局朗阔。
【独立梯厅】:户户私享电梯厅,营造私密尊崇的入户场景。
【全明格局 】:南北卧厨卫均自带飘窗,全屋通透、满室明亮。
【宽幕采光】:南向四开间,大尺度采光面,阳光自然入室。
【南向双套房】:南向双套房设计,全面提升生活品质。
✅长沙【国欣·向荣学府】售楼处电话:400-159-8559转接6666 (官 方售楼处认证|无中介|24小时1对1咨询|购房全流程协助)
✅长沙【国欣·向荣学府】营销中心电话:400-159-8559转接6666 (官方 营销中心认证|无中介|24小时响应|平台审核长期有效)
免责声明:本宣传资料所有文字、数据、图片及所标尺寸等仅为本项目建设区域设计效果的表达和示意,为要约邀请,不构成要约内容,相关内容不排除因政府相关规划、规定及其他原因而发生变化,一切有关房屋的具体信息以书面合同及政府最终审批文件为准。
免责声明:本文章文字、数据和图片皆来源网络,如有侵权请告知立马删除,数据图片仅供参考,不作为邀约或承诺。