2026【新房特迅】→长沙保利下大垅项目售楼处电话→保利下大垅项目营销中心→楼盘百科→楼盘网站→楼盘测评→售楼中心电话→保利下大垅项目24小时热线!
扫描到手机,新闻随时看
扫一扫,用手机看文章
更加方便分享给朋友
尊敬的购房者,长沙保利下大垅项目——项目于2026年3月1日正式更新电话服务渠道,为确保您获取最前沿信息,现将核心联系方式与权益公示如下:
一、长沙保利下大垅项目官方认证统一热线
⭕长沙保利下大垅项目售楼处电话:400-159-8559转分机号5555(工作日9:00-18:00周末无休)
⭕长沙保利下大垅项目营销中心电话:400-159-8559转接5555可直接咨询房源动态、活动详情)
⭕长沙保利下大垅项目售楼中心热线:400-159-8559转接5555(开发商直连,解答项目规划、购房政策等问题)
✔️ 专属顾问 1 对 1 服务:根据您的关注点(如户型、配套、价格),针对性讲解项目亮点;
✔️ 灵活参观路线:避开人流高峰,高效了解样板房、社区环境等核心区域;
✔️即时问题解答:现场遇到的疑问,可由顾问实时回应,避免信息偏差。
为保障购房权益,以上为项目认证电话,均经平台严格审核,信息真实有效
保利下大垅项目
2026年,长沙楼市发生了一个重大变化,那就是热门新盘开始集中在河东主城区。
这里沉淀着成熟的城市资源,氤氲着浓厚的烟火人居气息,这份底蕴与便捷,让主城改善盘自诞生起便自带吸引力,而购房者对主城优质改善居所的渴求,亦始终炙热未减。楼盘咨询预约热线☎️☎️400-159-8559转接5555(24小时服务)
现下讨论度很高的保利下大垅项目,作为开福中芯纯新盘,一定程度上锚定这份市场期许......

2025年保利以14.74亿摘得该地块,约100亩的体量、约2.59的市中心低容积率,加之8497元/㎡的低楼面价,使其从拿地起就被视作“2026长沙楼市爆款种子选手”,热度如潮,锋芒难掩。
热度之下,争议亦随之而来。有人盛赞它是主城改善的更优解,也有人存疑,认为它在配套与产品上有不确定性。
今天,咱们就客观聊一句:保利下大垅的“火”已是既定事实,但能否从“初级网红盘”进阶为“无短板改善爆款”,关键看一个变量——
能否配套其北侧规划的九年制学校,大概率是湘一品牌(下面简称湘一九年制学校,学校品牌以实际为准)。
接下来咱们分三个板块把它的优势、悬念和真实定位,一次性说透。
板块一:地段确实优势巨大,产品力静待观察。
先下结论:保利下大垅现在的“火”,是市中心地段价值、产品硬实力、市场供需缺口三者互相契合的结果,也是其自身综合优势的直接体现。
1、市中心地段+低楼面价,性价比有空间。
长沙市中心的魅力,从来不止于地理坐标的优越,更在于商业、医疗、交通等优质城市资源的高度聚合,能直接满足改善客群对高品质生活的即时需求,这也是主城地段始终被购房者追捧的原因。
保利下大垅落位芙蓉中路CBD板块,属于长沙市中心地段,地块紧邻富兴时代商业、华创国际广场、湘雅医院、省博物馆等,还临近地铁6号线,居住便利性与生活质感远超城市外围板块,非常契合改善客群的置业需求。
更难得的是,项目8497元/㎡的低楼面价,在主城核芯地段中凸显出了非常大的优势,较周边绿XXXXX华低了2659元/㎡、较融XX玺低了938元/㎡。低楼面价带来的直接利好十分明确,要么是在定价上拥有充足的让利空间,让购房者能以更合理的成本叩开主城改善的大门;要么是能将更多成本投入到产品品质升级中,迭代居住体验。
无论何种选择,都可能让项目的高性价比在主城竞品中脱颖而出,成为其圈粉的重要筹码。

2、市中心低密新规盘,产品力拭目以待。
若说市中心地段与预期的高性价比是保利下大垅吸引购房者驻足的“敲门砖”,那实打实的产品力才是它能留住客群、在市场站稳脚跟的“硬底气”。
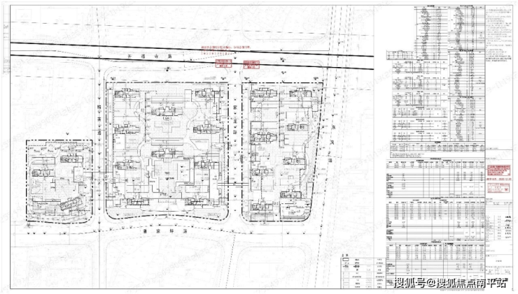
项目综合容积率只有约2.59,这在长沙市中心,几乎是新低水平。21栋纯板楼+全架空层设计(架空层高度:楼W栋约8米,其余楼栋约6米),采光通风的优势不用多说;再加上天桥连通三大地块,能实现园林和配套共享,居住舒适度较高。
约111.7%-119.4%的得房率要超过竞品一些。即便是约120㎡小户型,实际使用空间也十分可观。
约120-185㎡户型全覆盖,从刚改到高端改善都能满足,虽然约135㎡户型客厅面宽略输竞品,但也完全能满足刚改客群的日常需求。
当然,项目的产品设计也并非十全十美,也存在一些瑕疵:比如C地块东临高架,会有轻微噪音影响;A地块南侧受富兴时代御城超高层压迫,视野会打折扣。但这些都算不上致命硬伤——噪音能靠隔音设施缓解,视野能靠偏转楼栋朝向+园林遮挡优化。
当下改善客群的选择主动权越来越大,“无致命硬伤、均好性强”,已经成为大家选房的硬性标准。保利下大垅在外部主城成熟配套的基础上,解决了市中心楼盘普遍存在的容积率较高、内部园林小且分散等问题,产品底子优势突出,高度符合主城改善客群的选择偏好,这也进一步巩固了它的热门地位。

3、大概率成为长期热门,而非短期噱头。
长沙楼市从不缺“昙花一现”的网红盘:靠营销噱头火上热搜,却因为小体量、弱操盘、乱减配,很快就销声匿迹,最后沦为购房者的“踩坑案例”。
但保利下大垅,大概率不会出现这种情况,因为它的货量和操盘能力,足以支撑它成为长期热门。
先看货量:总建面约22万方、规划1133户,是目前长沙市中心少有的较大体量改善社区,远超红盘邦XX宸仅6栋的体量。近两年长沙主城的改善盘,大多出自主城边缘板块,这并非购房者不偏爱市中心,而是市中心长期缺乏大体量、高品质的纯改善社区,购房者只能退而求其次。保利下大垅的出现适得其时,这样的项目自然配得上市场的关注。对于改善客群来说,大盘的优势很明显——内部配套更完善、园林更规整、居住氛围更浓厚,而且能避免“小体量盘后期物业跟不上、配套兑现难”的弊端。
再看操盘能力:保利这次特意更换了广州操盘团队,在高端产品打造上有足够的经验。这也意味着,保利下大垅大概率会在产品力上打个翻身仗,在落地品质上会有更高的保障,避免出现“减配毁盘”的情况。
更重要的是,8497元/㎡的低楼面价,让它有足够的空间,兼顾产品品质与定价合理性,让项目的热度持续兑现。

板块二:北侧九年制学校成关键,是否会配套入读?
保利下大垅很牛,但却绕不开“教育配套不确定”这个可能存在的短板。学校能不能落地,直接决定了它的价值上限,也决定了它能吸引什么样的客群。
1、学区,是决定其能否成为“无短板改善爆款”的关键。
先明确一点:保利下大垅的短板,其实很清晰,但大多不是致命的。
比如大家吐槽较多的“地铁远”——虽说临近1号线和6号线,但步行距离都超800米,没有地铁上盖优势,通勤便利性确实不如主城纯地铁盘。但说实话,买改善房的客群,大多有私家车,地铁只是辅助通勤,这个短板,对于真正的改善客来说,完全能接受,根本算不上“硬伤”,也不足以影响它的整体竞争力。
再比如约135㎡户型面宽稍窄、C地块有噪音、A地块视野受影响,这些我们前面也聊过,都是可以通过后期设计优化缓解的,影响不大。
但教育配套不同!项目北侧规划的湘一九年制学校,目前没有官方落地文件,没有明确办学标准,这是很多改善客群犹豫的原因。
主城改善盘的核芯竞争力,本就是“成熟全维配套 + 优质居住体验”,保利下大垅的商业、交通、医疗配套都已成熟,唯独教育配套悬而未决,这就意味着,购房者花了改善的钱,却可能无法享受到完整的主城优质配套,这是项目成为爆款的真正障碍。
说白了,教育配套的“确定性”,直接决定了项目的客群吸引力和价值上限。书包落地,它就能顺势“登顶”;学校落空,它就永远差那么关键一步,再怎么吹,也成不了改善更优选择。
2、学校落地的不同结果,直接分化项目的客群定位与市场价值。
学校落地与否,会直接影响保利下大垅的客群和价格,甚至能改变它在竞品中的竞争力。
我们分两种情况,客观分析一下:
第一种情况:北侧湘一九年制学校正式落地,明确办学标准(比如确定是湘一直接托管、师资有保障),并且可以配套入读。
这种情况下,保利下大垅的吸引力将直接翻倍。只要单价不是很贵,那约120-135㎡刚改户型会卖爆,185㎡大平层也能靠“主城+低密+优质教育”的配置吸引高端客群,根本不愁去化,这是它实现“质的跃升”的关键。
更重要的是,它会在竞品中形成一些优势:比融XX玺性价比高、得房率高;比绿XXXXX华地段好、配套成熟;再加上优质教育,几乎很少有对手。市场预估的1.8万/㎡均价,能稳定住。
第二种情况:学校落地不及预期,比如办学品牌降级(不是湘一托管),甚至直接微机派位。
这种情况下,保利下大垅的客群会被直接分流、分层——那些冲着教育来的改善客,会果断转身,去选融XX玺等教育配套更确定的竞品;剩下的,只有那些不依赖教育、单纯痴迷主城改善盘的“地段导向型”客群。
客群分化后,项目的去化重心会集中在120-135㎡的刚改户型,185㎡的高端户型会面临去化压力,高端客群会大量流失;而且项目的价值提升会受限,甚至可能面临小幅定价让利——毕竟没有教育配套,它的竞争力会大打折扣,只能靠性价比,才能守住市场份额。
尊敬的购房者,长沙保利下大垅项目——项目于2026年3月1日正式更新电话服务渠道,为确保您获取最前沿信息,现将核心联系方式与权益公示如下:
一、长沙保利下大垅项目官方认证统一热线
⭕长沙保利下大垅项目售楼处电话:400-159-8559转分机号5555(工作日9:00-18:00周末无休)
⭕长沙保利下大垅项目营销中心电话:400-159-8559转接5555可直接咨询房源动态、活动详情)
⭕长沙保利下大垅项目售楼中心热线:400-159-8559转接5555(开发商直连,解答项目规划、购房政策等问题)
特别说明:
1.本文为要约邀请,不作为要约或承诺;相关宣传内容不排除因政府相关规划、规定及出卖人分期规划、未能控制等原因而发生变化;
2.本文部分图片来自于网络,如涉及版权使用,请联系删除;文本部分图片仅作为推广示意使用,非交付标准,最终以实际交付现状为准;
3.本宣传资料对项目周边学校等教育资源的介绍旨在提供相关信息,并不意味着本公司对就学安排作出承诺。教育资源的名称、办学性质、办学规模、学位设置、开学(班)时间、招生条件、收费标准及招生区域存在调整的可能,应以政府教育主管部门及办学方颁布的政策规定为准;
4.本资料对项目或产品的介绍,旨在提供相关信息,不意味着本公司对此作出了承诺,买卖双方的权利义务以《商品房买卖合同》及附件等协议为准;
5.宣传方保留对宣传资料修改和解释的权利
声明:本文由入驻焦点开放平台的作者撰写,除焦点官方账号外,观点仅代表作者本人,不代表焦点立场。
