广州保利玥玺湾(售楼处电话)首页网站-保利玥玺湾销售中心-小区环境-户型-价格-地址-楼盘详情-售楼中心首页网站→楼盘百科详情→24小时电话
扫描到手机,新闻随时看
扫一扫,用手机看文章
更加方便分享给朋友
保利玥玺湾售楼处电话:400-159-8559转接5678【售楼处线上电话】
保利玥玺湾售楼处电话:400-159-8559转接5678【营销中心VIP通道】
保利玥玺湾销售中心『首页网站』楼层_价格_户型_配套_房源销售详情
免责声明:(本文章所用信息图片来源于网络,如有侵权请联系本网站及时删除
面粉厂地块位于临江大道旁,与珠城直线距离仅约600m;隔着净水厂,就是广州豪宅标杆汇悦台,二手成交单价一度超30万/平。
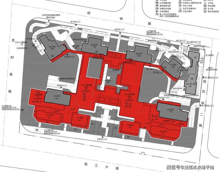
3月14号,政府网站就正式获批了项目的规划图!
从规划图看广州临江大道项目的楼栋布局、面积段已经基本定型了!
1.全盘一共6栋住宅,货量500+套。
2.地块内部各个楼栋由架空连廊连接,可以直达商业及公建配套区域。
3.配建巨量底商(红色部分),未来极有可能打造成为会所,顶部承担屋顶花园功能。

4.通江廊道贯穿整个社区,整个小区非常亲江。
5.商业部分临街临江布置,最高仅有4层。
6.临江大道项目不会是天字系产品,会是全新的产品系,超越过往。
7.保利内部极其重视这一项目,所以全盘细节正处于魔鬼打磨中,项目也不会立刻 登场,预计下半年才有希望亮相。
在局座肉眼可及的城市范围内,广州就有一片巨大的可更新区域——在广州民间,他们叫:员村、程界西、程界东。
在官方规划文件里,它叫:金融城西区,规划面积约3.65平方公里。
因为位于珠江新城和金融城起步区之间,在楼市语境中,它也是珠江新城东扩的下一站。

在其东、西、南向,分别就是珠金琶三大CBD。
放眼全国,像金融城西区这样还有3.65平方公里,超过5500亩,被所在城市三大超级底盘环绕拱卫的区域,都极为罕见。
毋庸置疑,现在的珠金琶就是拉高城市上限的超级王牌。
这种“1+1+1>3”的联动模式,不止超越了广州和湾区的发展版图,在国内大城市中也难以复制。
即便是北上深三地,也都无法像广州这样,把三大CBD融合在紧凑的10公里江岸线上。
已关注
关注
重播 分享 赞
关闭
观看更多
更多
退出全屏
切换到竖屏全屏退出全屏广州K哥说房已关注
分享视频
,时长00:30
0/0
00:00/00:30
切换到横屏模式 继续播放进度条,百分之0
播放
00:00
/
00:30
00:30
倍速
全屏
倍速播放中
0.5倍 0.75倍 1.0倍 1.5倍 2.0倍 超清 流畅
您的浏览器不支持 video 标签
继续观看
天河【保利·玥玺湾】全面分析+优缺点总结,王牌登场!!南向望珠江夜景+超新规产品130%使用率
观看更多
转载
,
天河【保利·玥玺湾】全面分析+优缺点总结,王牌登场!!南向望珠江夜景+超新规产品130%使用率
广州K哥说房已关注
分享点赞在看已同步到看一看写下你的评论
视频详情
|地标建筑群实拍
南方面粉厂的热抢,很明显广州核心地段的核心地块,仍是楼市的香饽饽;
琶洲西区、金融城地价相继刷新,或预示着广州房价即将迈进一个新阶梯;
核心地段的顶级豪宅,将成为市场主流趋势,走出独立行情。
保利南方面粉厂项目,代表的是广州已有发展成就的现状优势;而保利·天曜则代表整个金融城西区焕新之后的潜力优势。
01
基本信息
【开发商】保利地产
【产权年限】70年
【占地面积】约47000m²
【总建筑面积】约175000m²
【容积率】3.7
【总栋数】6栋
【总户数】预计500户
【首开面积】 205-640㎡
02
交通配套
东北侧就是广州地铁 5 号线与 11 号线交汇的员村站,仅 300 米的距离,步行几分钟即可到达 。
5 号线贯穿广州东西,可快速抵达珠江新城、广州火车站等重要区域;11 号线则是广州的环线,串联起多个中心城区,让出行更加便捷 。


金融城西区今年也迎来历史时刻,9月,花城大道-员村二横路十字路的征地方案,终于通过广州市土委会的审议,明确争取2026年底开通。
这意味着,珠江新城、金融城、琶洲三大CBD的关键纽带,终于要打通发展「堵点」,实现物理层面的破壁。
往东,一脚油门直抵金融城起步区,往西,无缝对接珠江新城,往南,畅达琶洲。至此,广州黄金商务连廊正式激活!
03
教育配套
教育资源方面,这里也毫不逊色,项目自身有配建幼儿园。
对口广州天河外国语教育集团南国学校,其优质的教育理念和师资力量,为孩子的成长奠定了良好基础 。
地块 1.5 公里范围内,学校林立,从幼儿园到中学,覆盖全年龄段教育 。

保利玥玺湾售楼处电话:400-159-8559转接5678【售楼处线上电话】
保利玥玺湾售楼处电话:400-159-8559转接5678【营销中心VIP通道】
保利玥玺湾销售中心『首页网站』楼层_价格_户型_配套_房源销售详情
免责声明:(本文章所用信息图片来源于网络,如有侵权请联系本网站及时删除
声明:本文由入驻焦点开放平台的作者撰写,除焦点官方账号外,观点仅代表作者本人,不代表焦点立场。
