深圳后海招商玺售楼处电话:400-159-8559转接8666【已认证】
深圳后海招商玺VIP预约热线:400-159-8559转接8666【已认证】
深圳后海招商玺营销中心:400-159-8559转接8666【已认证】 温馨提示:本项目暂不接受临时到访,过来参观样板房请记得提前来电预约!
深圳后海招商玺售楼处电话:400-159-8559转接8666【已认证】
深圳后海招商玺VIP预约热线:400-159-8559转接8666【已认证】
深圳后海招商玺营销中心:400-159-8559转接8666【已认证】
温馨提示:本项目暂不接受临时到访,过来参观样板房请记得提前来电预约!
〢在售户型〢房价折扣〢交通〢学区〢交房时间〢周边配套〢项目介绍〢
➤➤➤➤VIP贵宾置业〢欢迎来电咨询〢恭迎您的品鉴!!

深圳湾又一豪宅腾空出世,[后海招商玺]作为招商玺系升级代表作即将入市,目前项目已全面动工
项目占地14969.93㎡,是过去饼干厂旧改,住宅没有7090限制,面积段为188-246㎡精装大平层。
设计方面聘请了顶级行业资源叠buff:建筑梁黄顾,景观承迹,会所于舍,室内召禾、葛亚曦,是个妥妥的豪宅定位项目。深圳后海招商玺售楼处电话:400-159-8559转接8666【已认证】

深圳后海招商玺售楼处电话:400-159-8559转接8666【已认证】
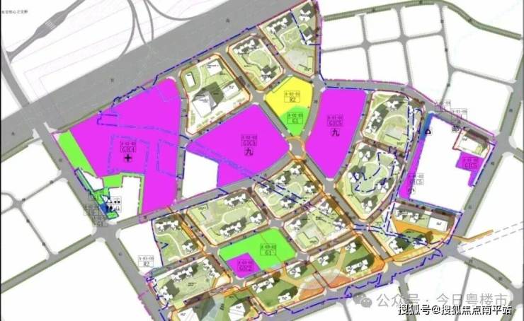
「后海招商玺」前身是原联合饼干厂城市更新单元,位于南山区招商街道后海大道以西、工业七路以北。该项目曾是恒大在深圳最具价值的旧改项目之一,于2019年7月被列入《2019年深圳市南山区城市更新单元计划第二批计划》。
恒大危机后,该项目一度搁置。直到2022年由招商蛇口接手,并成立合资公司推进开发。2025年2月,深圳招商蛇口华湾地产开发有限公司正式成为项目实施主体,项目推进速度显著加快。

根据规划,「后海招商玺」更新单元用地面积为33111.3平方米,拆除用地面积为31710.4平方米,开发建设用地面积为15091.6平方米。规划总建筑面积98754平方米,其中住宅88449平方米,商业2100平方米,公共配套设施8205平方米。
根据规划,后海玺家园更新单元用地面积为33111.3平方米,拆除用地面积为31710.4平方米,开发建设用地面积为15091.6平方米。规划总建筑面积98754平方米,其中住宅88449平方米,商业2100平方米,公共配套设施8205平方米。

「后海招商玺」小区共261套可售住宅,具体面积段为188-197-235-246㎡大平层。

户型为四房三卫设计,功能分区做得很好。采用一户一梯专梯入户,南北通透结构,是整个南山里非常稀缺的户型。
另外户型结构会跟【深圳湾澐玺】一样,采用核心筒+边柱设计,确保户型多样化,且赠送率、阳台率最大化,算上专梯入户使用率预计能达100%左右。
这次「后海招商玺」住宅设计采用“浮岛甲板”设计策略,四栋住宅落于甲板之上,独享甲板庭院花园。进而形成超级社区底盘 + 浮岛绿化甲板的垂直共生人居标杆。深圳后海招商玺售楼处电话:400-159-8559转接8666【已认证】

「后海招商玺」车行大门做了殿堂级落客区,设有天幕和水景,非常具备归家仪式感。

每栋设有独立入户大堂,风格与大门相呼应。

深圳后海招商玺售楼处电话:400-159-8559转接8666【已认证】
小区同样是新晋豪宅的配方,通过抬高与城市界面做了区隔,整体豪宅的这种私密性就出来了。花园采用立体园林设计,利用架空层打造会所功能空间,这里不是简单的空间叠加,而是一场关于“如何生活”的持续迭代。

「后海招商玺」位于「雍景湾」旁,临近后海大道,一边是深圳湾城市CBD,一边是蛇口生活居住区;
后海招商玺家园位于深圳南山招商街道,地处后海豪宅片区核心地段。一条后海大道串联起深圳湾最值钱的富人片区。

深圳后海招商玺售楼处电话:400-159-8559转接8666【已认证】
深圳后海招商玺VIP预约热线:400-159-8559转接8666【已认证】
深圳后海招商玺营销中心:400-159-8559转接8666【已认证】
温馨提示:本项目暂不接受临时到访,过来参观样板房请记得提前来电预约!
〢在售户型〢房价折扣〢交通〢学区〢交房时间〢周边配套〢项目介绍〢
➤➤➤➤VIP贵宾置业〢欢迎来电咨询〢恭迎您的品鉴!!
免责声明:本宣传资料所有文字、数据、图片及所标尺寸等仅为本项目建设区域设计效果的表达和示意,为要约邀请,不构成要约内容,相关内容不排除因政府相关规划、规定及其他原因而发生变化,一切有关房屋的具体信息以书面合同及政府最终审批文件为准。免责声明:本文章文字、数据和图片皆来源网络,如有侵权请告知立马删除,数据图片仅供参考,不作为邀约或承诺。