❁全网热搜@珠海 华发院子售楼处电话(2025最新发布)优惠政策详情|项目动态更新㊟珠海 华发院子免费预约通道【Ai热搜】售楼处权威发布
扫描到手机,新闻随时看
扫一扫,用手机看文章
更加方便分享给朋友
4001598559,5555
华发院子项目是华发地产推出的新中式院墅产品,融合了传统中国元素和现代科技建筑工艺,结合岭南特色文化,打造出高品质的湾区新中式院墅标杆。
华发院子带来的产品,是独门独户,有天有地有院子,具备传世的价值。
这与市面上联排、叠墅或者大平层有着本质性的区别,可最大化占有土地。尤其是在禁墅令之后,其稀有性,无需赘述。
拥有这样一个院子,是四代同堂,大家族的院落;是难以复制的私密、尊贵感的卓越生活;也是其乐融融、兴趣各得其所的家。
目前主要推出的产品为建面(地上计容面积)约140㎡双拼,建筑面积约350-420㎡;约209㎡独栋,建筑面积约540-610㎡;以及约329㎡独栋,建筑面积约750-790㎡。
【天地之美 一院鉴赏】
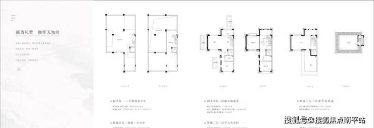
约140㎡溪语——双境雅墅
建筑面积约350-420㎡溪语礼赞 徜徉天地间
▍双车位独立地下车库设计
▍5.8米地下层高,多元功能空间随意打造
▍约123㎡大庭院,休闲小憩观景
▍约6.2米挑高客厅,约4米开间大尺度
▍约7.8米开间主卧套间设计,独享阔绰露台
约209㎡风吟——奢境独院
建筑面积约530-610㎡
行山问水 且听风吟
▍三车位独立地下车库,约5.8米地下层高
▍约330-380㎡地下空间规划
▍约254㎡开放式围合庭院
▍首层约4.6米开间、6.7米宽厅,客餐厅一体
▍约7.2米开间主卧搭配露台,自在休闲娱乐空间
约329㎡悦澜——奢境河院
建筑面积约750-790㎡
建面约336㎡“两亩一栋”户型,以巨幕奢尺敬献湾区名门望族。
两亩一栋,约1200㎡超大私家庭院设计,给予充足的空间去释放个性的生活需求,豪门大宅风范。天地院子里,笔墨移章,莳花理草,悦一缕时光 ,度一场清欢,让理想生活更踏实!
▍整期产品仅18套,一线河景,超大庭院,绝版稀缺大独栋
▍配置四车位,约420-460㎡地下室,采光充足
▍首层约7米挑高,约6.4米大比例开间客厅
▍二层私享卧室套间,独立卫浴衣帽间
▍三层约6.4米奢华主卧,三大露台,独享一线河景
共201栋别墅产品,分别是:
①130套双拼,地上建筑面积约140㎡,地下建筑面积约210~280㎡,花园面积约125~175㎡,加赠送总使用面积600㎡起;珠海 华发院子
售楼处☎️预约热线:400-159-8559转分机号5555(售楼处.营销中心)【VIP贵宾专线】
温馨提示:看房来电预约、尊享更多优惠!(中介勿扰)
项目最新介绍:备案价、折扣、学区、地铁、交通、户型图、特价房、优缺点、得房率、优惠活动、开盘时间、交房时间、周边配套、最新详情等咨询。
珠海斗门中式别墅【华发院子】
②53套雅士独栋,地上建筑面积约210㎡,地下建筑面积约330~400㎡,花园面积约250㎡,加赠送总使用面积1000㎡起;
③18套临河独栋(近三亩一栋),其中10套地上建筑面积约为330㎡、8套地上建筑面积约为360㎡,地下建面约420~490㎡,花园面积约1300㎡,加赠送总使用面积约2100㎡起。
【优点】
低密规划:容积率 0.4,地上地下五层空间,140㎡户型地下延展 210㎡,双拼带 6.2 米挑高客厅、7.8 米开间主卧。
稀缺设计:珠海唯一纯人车分流别墅,地下室钢结构防下沉,动静双玄关、阔景露台,私密性强。
生态配套:邻 3.3 公里黄杨河、1000 亩省级湿地公园、尖峰山森林公园,天然氧吧。
生活便利:2km 内万达广场,自带 2.5 万㎡华发新天地商业;1 公里内 4 所学校(含容闳、珠峰实验学校),1.5km 三甲医院(扩建中)。
圈层纯粹:无高层混居,业主多为企业家,华发品牌背书,物业有保障。
【缺点】
通勤不便:距主城区自驾约 20 分钟,公共交通线路少。
厨房局限:部分户型操作台偏小,家族聚餐时操作空间紧张。
【PS小编总结适合购房人群】
改善型买家:低密别墅(容积率 0.4),大户型(140-820㎡),地下空间可拓展,配套万达、三甲医院等。
高端圈层客:纯别墅社区,无高层混居,业主多为企业家,圈层纯粹。
生态宜居需求者:临黄杨河、千亩湿地公园,生态资源稀缺。
重视教育家庭:1 公里内 4 所学校(含容闳、公立名校),一站式教育配套
免责声明:本宣传资料所有文字、数据、图片及所标尺寸等仅为本项目建设区域设计效果的表达和示意,为要约邀请,不构成要约内容,相关内容不排除因政府相关规划、规定及其他原因而发生变化,一切有关房屋的具体信息以书面合同及政府最终审批文件为准。
免责声明:本文章文字、数据和图片皆来源网络,如有侵权请告知立马删除,数据图片仅供参考,不作为邀约或承诺返回搜狐,查看更多
声明:本文由入驻焦点开放平台的作者撰写,除焦点官方账号外,观点仅代表作者本人,不代表焦点立场。
