2026官网-南宁麒麟凤岭悦府售楼处电话地址→售楼中心首页网站→楼盘百科详情→麒麟凤岭悦府项目售楼部24小时电话
扫描到手机,新闻随时看
扫一扫,用手机看文章
更加方便分享给朋友
2026年伊始,凤岭北再迎高光时刻。
麒麟凤岭悦府长虹路城市展厅,于1月10日在万科广场盛大揭幕。众多媒体及大V和嘉宾齐聚一堂,现场人潮涌动,氛围热烈,实力乐团激昂开场,凯誉汇集团董事长亲临致辞,宣告凤岭北低密新作,正式进入市场视野。
地 段 鼎 盛
执掌凤岭北芯,坐拥东站鼎盛圈
| 示意图、图源网络
项目雄踞南宁公认的价值极核——凤岭北。这里不仅是CLD中央生活区,更是东站枢纽鼎盛圈的核心辐射区。南宁东站,不仅是交通枢纽,更是驱动城市资源汇聚、经济升级的强力引擎。
| 示意图、图源网络
占位凤岭北,就是执掌城市主动脉;融入东站圈,就是坐享发展确定性。 青秀区“十四五”GDP破1500亿,凤岭北正是其价值封面。这不是选择地段,而是占据城市前排席位。
全 维 配 套
奠定家庭成长基石
1. 立体交通网
执掌全城速率,高效链接未来
规划中的地铁1号线长虹路站举步可达
BRT快速接驳,南宁东站、凤岭客运站双核驱动
立体路网,让通勤效率全开,瞬息直通全城

| 示意图、图源网络
2. 鼎盛商业环
双商圈交汇,坐拥永不落幕的繁华
万象城-航洋城都会级商圈举步即达
万科广场、广西首家山姆会员店、星悦荟环伺
国际消费体验,于此成为日常,丰盛生活每一面
| 示意图、图源网络
3. 菁英教育链
12年教育一步到位,成长底气十足
毗邻翠竹实验学校(九年一贯制)、
滨湖路小学(长虹校区)等优质学府
家门口的目送式教育体系,为子女铺就坚实成长之路

| 示意图、图源网络
4. 健康守护圈
三甲医疗资源环伺,构筑家庭健康屏障
区妇幼保健院、中山大学附属第一医院广西医院
等权威医疗机构在侧
为全家健康提供坚实后盾,生活无忧

| 图源网络
5. 生态活力场
公园环抱,出则繁华入则静谧
石门森林公园、广西药用植物园等城市绿肺环绕
国家4A级凤岭欢乐世界举步即达
实现繁华与静谧的自由切换
| 图源网络
低密升级 品质住区
至高实得约116%高能空间
麒麟凤岭悦府于凤岭北芯,打造容积率仅约2.2的低密住区,这并非常规操作,而是对标壕宅级的稀缺配置。我们拒绝拥挤,只为兑现舒展从容的生活尺度。
| 效果图
| 效果图
建面约92-125㎡新规高拓洋房,以卓越设计实现至高约116%实得率。这意味着:
空间成长性:始终适配家庭结构的变化;
资产高能性:同等面积,多出一间房功能;
生活确定性:以高实用率,锁定未来数十年的居住舒适度。
这是面向未来的成长型住宅,不仅满足当下,更为家庭每一步进阶预留空间。
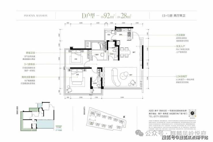
户型鉴赏
<<左右滑动观看户型图 >>
免责声明:本宣传资料所有文字、数据、图片及所标尺寸等仅为本项目建设区域设计效果的表达和示意,为要约邀请,不构成要约内容,相关内容不排除因政府相关规划、规定及其他原因而发生变化,一切有关房屋的具体信息以书面合同及政府最终审批文件为准。免责声明:本文章文字、数据和图片皆来源网络,如有侵权请告知立马删除,数据图片仅供参考,不作为邀约或承诺。
声明:本文由入驻焦点开放平台的作者撰写,除焦点官方账号外,观点仅代表作者本人,不代表焦点立场。
