深圳后海招商玺二期打造高端大平层,融合活力与宁静,提供261户纯板楼,特色在于“上静下繁华”,配备优质会所与商业,主打188-247㎡大平层,居住体验卓越。💗鉴赏热线✆✆400-159-8559转5158(官网认证)💗
🔥🔥深圳【 后海招商玺二期 】🔥🔥
💗鉴赏热线✆✆400-159-8559转5158(官网认证)💗
💗营销中心电话:☎☎400-159-8559转5158【专人接听】💗
💗【售楼中心】网上售楼中心〢欢迎来电咨询💗
💗〢专业一对一热情服务给您专业的置业方案💗
💗〢期待您成为我们的尊贵的业主💗
项目占地约1.5万㎡,总建面约15万㎡,由4栋住宅及1所幼儿园组成。商品房总计仅261户,户均面积约218㎡,主打约188-247㎡纯粹大平层社区。
计容建面98754㎡ ,其中:住宅88449㎡,商业、办公及旅馆业建筑2100㎡,公共配套面积8205㎡。

对居住体验而言,抬板规划带来的是“上下两重世界”的极致体验:
甲板之下,是链接城市的活力枢纽 : 规划约 1300㎡共享活力带 与 2100㎡主题商业街 ,融合运动、休闲、商业等多元场景;
甲板之上,是悬浮空中的宁静绿洲 : 约 3000㎡浮岛花园 与约 2500㎡主题会所 融为一体,形成远离尘嚣的空中社交场。
这种“上静下繁华”的规划,让小地块实现了“大社区”的生活质感,更解决了深圳豪宅普遍存在的会所及泛会所空间不足的问题,带来真正国际化豪宅体验。


建筑风格:以“海风百褶”为设计理念,双反弧形的立面元素在各处形成丰富变化的海浪状立面肌理,呼应滨海风情。


户型设计
项目以2梯2户专梯入户的纯板楼,打造楼高仅90m的21层稀缺小高层,叠加尊贵私密的私享电梯厅优势,项目户型高拓使用率高达93-95%,在拔高空间尺度的同时,更注重居住体验感和实用性。
项目还采用框架结构设计,重构承重关系,不仅带来“全景舱”无界景观视野,让空间也更灵活多变,全屋更少承重墙,满足全生命周期的使用需求,打造一步到位的“第一居所”。


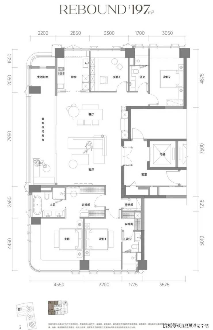
建面约197㎡户型
4房2厅3卫的正四房设计,全屋通透明厨明卫,豪气阔绰的客餐厅超大通厅,带来云端墅居的空间感。
该户型还高配约8m长的极目宽景阳台,空间面积达到约22㎡,相同面积下比其它几大顶豪的阳台尺度还要奢阔,将无界瑰丽景观定格为家的唯美色彩。
全屋卧室配备新规800mm宽尺飘窗,次卧套打造3.2mx4.5m的22㎡奢阔空间,为每一个家庭成员带来专属的尊贵生活尺度。
主卧套房采用豪华套房+步入式衣帽间的设计,开间约4.6m,进深达4.5m,搭配270°环幕飘窗,带来面积达38㎡的星级奢华空间。

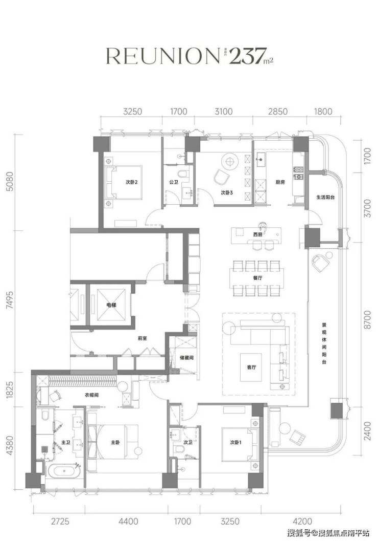
建面约237m²户型
最大的亮点是其面积高达60m²、接近标准羽毛球场大小的LDKB全景家庭厅,以及一个长约18.9米、面积约31m²的L型270°拐角瞰景阳台。

🔥🔥深圳【 后海招商玺二期 】🔥🔥
💗鉴赏热线✆✆400-159-8559转5158(官网认证)💗
💗营销中心电话:☎☎400-159-8559转5158【专人接听】💗
💗【售楼中心】网上售楼中心〢欢迎来电咨询💗
💗〢专业一对一热情服务给您专业的置业方案💗
💗〢期待您成为我们的尊贵的业主💗
免责声明:本宣传资料所有文字、数据、图片及所标尺寸等仅为本项目建设区域设计效果的表达和示意,为要约邀请,不构成要约内容,相关内容不排除因政府相关规划、规定及其他原因而发生变化,一切有关房屋的具体信息以书面合同及政府最终审批文件为准。免责声明:本文章文字、数据和图片皆来源网络,如有侵权请告知立马删除,数据图片仅供参考,不作为邀约或承诺。