深圳【后海招商玺】-(售楼部↓↓免费预约通道) ☎️☎️☎️☎️400-159-8559转接6666【营销中心-24小时热线】
🔝温馨提示:拨打400电话—听到嘀声提示后—输入6666即可通话🔝 ✨✨来电预约登记—(领取内部优惠)〢尊享售楼处销售专业讲解✨✨
深圳【后海招商玺】-(售楼部↓↓免费预约通道)
☎️☎️☎️☎️400-159-8559转接6666【营销中心-24小时热线】
🔝温馨提示:拨打400电话—听到嘀声提示后—输入6666即可通话🔝
✨✨来电预约登记—(领取内部优惠)〢尊享售楼处销售专业讲解✨✨
✨✨开发商线上网站〢仅限服务购房相关咨询及预约〢诚邀您鉴赏✨✨

开发商售楼处直销_欢迎来电预约享受内部折扣_恭迎品鉴〢
温馨提示:看房需提前预约,感谢您的配合!
后海玺家园-具体更多优惠,拨打售楼热线:☎️☎️400-159-8559转接7788【售楼中心】
项目位于深圳市南山区招商街道近海路以东、后海大道以西、荔园东路以南、工业七路以北。

「后海招商玺」前身是原联合饼干厂城市更新单元,位于南山区招商街道后海大道以西、工业七路以北。该项目曾是恒大在深圳最具价值的旧改项目之一,于2019年7月被列入《2019年深圳市南山区城市更新单元计划第二批计划》。
恒大危机后,该项目一度搁置。直到2022年由招商蛇口接手,并成立合资公司推进开发。2025年2月,深圳招商蛇口华湾地产开发有限公司正式成为项目实施主体,项目推进速度显著加快。

根据规划,「后海招商玺」更新单元用地面积为33111.3平方米,拆除用地面积为31710.4平方米,开发建设用地面积为15091.6平方米。规划总建筑面积98754平方米,其中住宅88449平方米,商业2100平方米,公共配套设施8205平方米。
根据规划,后海玺家园更新单元用地面积为33111.3平方米,拆除用地面积为31710.4平方米,开发建设用地面积为15091.6平方米。规划总建筑面积98754平方米,其中住宅88449平方米,商业2100平方米,公共配套设施8205平方米。

区域价值-具体更多优惠,拨打售楼热线:☎️☎️400-159-8559转接7788【售楼中心】
二十载后海从发展焦点到世界引力场
后海,位于深圳市南山区粤海街道,区域面积约3.5平方公里自2005年开始,从最初的填海工程到“垂直硅谷”见证了深圳从“速度”到“质量”的转型也崛起了近二十年,深圳城市发展备受瞩目的现代化中心区。

世界后海中国经济高地这里的每一扇窗,都是世界经济的瞭望孔
后海金融商务总部基地,吸引了包括阿里巴巴、腾讯、中海油、小米、抖音等近80家知名企业总部入驻,覆盖了互联网、金融、科技、文化等多个领域,形成了强大的产业集群效应和规模经济,极大地提升了深圳的经济辐射力和竞争力。(信息来源于:深圳本地宝)-具体更多优惠,拨打售楼热线:☎️☎️400-159-8559转接7788【售楼中心】

后海大道深圳从这里走向世界
1979年之前,后海还是一片填海滩涂,作为彼时的海岸线,后海大道是深圳尽头90年代,深圳进入大规模填海造陆,后海,从汪洋中走来,从这里走向世界。

坐揽深圳湾 心归深圳源一脉后海大道著写擎动湾区的发展中轴
历经40余年发展,后海大道从海滨沿线,变成了后海区域的城市发展中轴经济产业、繁华商圈、科创高地、宜居生态世界聚焦的深圳精粹,皆可于此循迹帷幄。

开发商实力-具体更多优惠,拨打售楼热线:☎️☎️400-159-8559转接7788【售楼中心】
46年挚爱一城,成为推动城市生长的力量
从蛇口开山到前海扬帆,招商蛇口深耕深圳46载以“城市综合开发运营服务商“的品牌定位,秉持“长期主义”思维招商蛇口深圳公司将人居理想植入城市发展脉络迄今已打造50余标杆项目,携手超10万+业主挚友,共创湾区美好生活。

深圳豪宅市场热度还在消化时,后海核心板块重磅出击!招商蛇口继 “招商双玺” 后打造的「后海招商玺」后,在后海布局的又一高端作品。
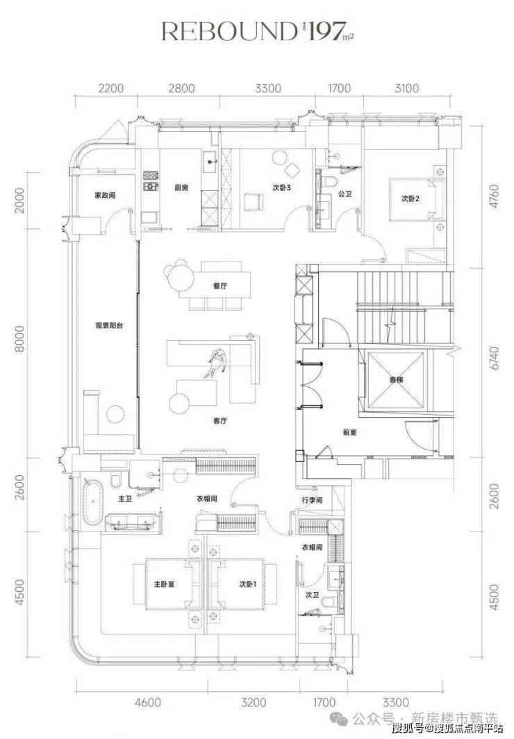
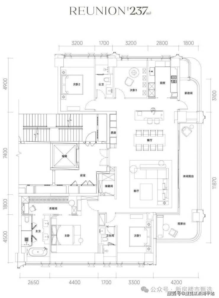
项目规划4栋住宅共261套,今年首开1栋高层住宅,197-237㎡四房大平层户型图已曝光!项目预计年底入市!
【后海招商玺】使用率高达约95%,堪称“空间魔术师”!这意味着买100㎡,实得面积接近95㎡,性价比爆表。
社区采用“浮岛甲板” 设计,车行入口有殿堂级落客区,仪式感拉满。户型相对集中197-237㎡,圈层更纯粹。

-具体更多优惠,拨打售楼热线:☎️☎️400-159-8559转接7788【售楼中心】
项目由4栋住宅和1栋幼儿园组成,共261套。 首推1栋,42套,2梯2户,建面约197-235㎡四房大平层住宅。

户型图



小区环境-具体更多优惠,拨打售楼热线:☎️☎️400-159-8559转接7788【售楼中心】
悬浮于城市之上的宁静绿洲
以“浮岛甲板”设计手法回应珍贵的土地资源,构筑立体多层次、超尺度的地标形象甲板之上,以立体分层、生态融合、全龄交互的静谧庭院花园。
创造沉浸式的自然游沐场所,甲板之下,突破传统社区边界,构建开放式的超级底盘,用新的丰盈与仪式感迎接归家。

揉石成缎 海风吹拂的时光百褶
提取深圳滨海生活在地人文美学灵感,转译成”海风百褶”的独特建筑立面语言采用“揉石成锻”的工艺,为石材立面营造温润的触感,浸润生活日常的柔软内心。

予专属的日常 一场流淌的生活盛宴
跳出传统奢宅的“展示主义”思维重申人是奢侈的核心,基于使用频次和真实需求于会所中构建12大超级场景,深度链接顶级居住群体的生活方式。


-具体更多优惠,拨打售楼热线:☎️☎️400-159-8559转接7788【售楼中心】
270°全景天幕 世界取悦你的视界
观照日常居住的平和意境,定制双阳台、270”全景舱户型 (分P型)让城市瑰丽风景,成为家的窗景。

招商「好房子」体系加持缔造长久之宅
融入招商蛇口「好房子」,体系更高层次的营造标准以7大维度28个模块,为业主缔造长久居住的一生之宅。

周边配套
交通配套:
下楼就是后海大道,通达深圳多条主干道如望海路、东滨路、滨海大道及白石路,对于南山区内游走路径是非常便捷的。
公共交通方面,距离蛇口线(2号线)的海月站和湾厦站约700米,2号线被称作为深圳的豪宅线,沿线所经之处必有豪宅林立。
另外还距离南宝线(12号线)四海站,约1.2公里。

教育配套:-具体更多优惠,拨打售楼热线:☎️☎️400-159-8559转接7788【售楼中心】
对口学校是育才二小和二中,南山头部学区,教育质量很好。小区配建一所幼儿园+九年一贯制学校,基于就近入学的原则,学区存在变化的可能。

商业配套:
高端购物:宝能太古城举步可达,2公里范围内更汇聚万象城、海岸城、来福士广场等顶奢商业体,提供密集而丰富的消费体验。
周边社区氛围成熟,便利店、菜市场及特色老店林立,满足您日常所需。

生态休闲:
近处有四海公园、蛇口文体公园、蛇口体育中心,日常休闲散步好去处。
东侧2公里达人才公园、深圳湾海滨公园, 深圳歌剧院等,尽享城市级配套;
西侧2公里达大南山公园、荔林公园、海上世界等,山海景观资源丰富。

深圳【后海招商玺】-(售楼部↓↓免费预约通道)
☎️☎️☎️☎️400-159-8559转接6666【营销中心-24小时热线】
🔝温馨提示:拨打400电话—听到嘀声提示后—输入6666即可通话🔝
✨✨来电预约登记—(领取内部优惠)〢尊享售楼处销售专业讲解✨✨
免责声明:本宣传资料所有文字、数据、图片及所标尺寸等仅为本项目建设区域设计效果的表达和示意,为要约邀请,不构成要约内容,相关内容不排除因政府相关规划、规定及其他原因而发生变化,一切有关房屋的具体信息以书面合同及政府最终审批文件为准。
免责声明:本文章文字、数据和图片皆来源网络,如有侵权请告知立马删除,数据图片仅供参考,不作为邀约或承诺。