➢➢三亚保利棠隐——2025热门楼盘 ➢ ➢售楼处电话:400-159-8559转8666【已认证】售楼中心 ➢ ➢温馨提示——拨打400电话,听到嘀声后——输入分机号8666即可通话
➢➢三亚保利棠隐——2025热门楼盘
➢ ➢售楼处电话:400-159-8559转8666【已认证】售楼中心
➢ ➢温馨提示——拨打400电话,听到嘀声后——输入分机号8666即可通话

保利·棠隐,预售面积1612.65㎡,预售套数共10套。
项目全案也就49套,单价则是约17万/㎡,按预售面积换算,10套房能卖出约2.7亿。

———— 项目信息 —————
【占地面积】4.34万m²
【计容面积】1.52万m²
【容 积 率】0.35
【绿 地 率】30%
【土地性质】40年
【项目规划】高端商业、隐奢酒店、业主会所
【可售商业】49套
【户型面积】建面约 135-175m²
【交付标准】毛坯交付
三亚保利棠隐售楼处电话:400-159-8559 接通后输入8666(24小时电话)

➢➢三亚保利棠隐——2025热门楼盘
➢ ➢售楼处电话:400-159-8559转8666【已认证】售楼中心
➢ ➢温馨提示——拨打400电话,听到嘀声后——输入分机号8666即可通话
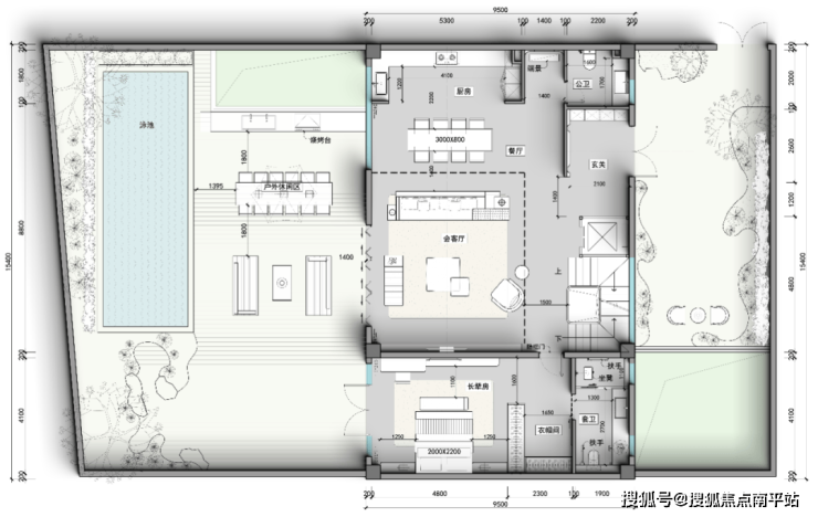
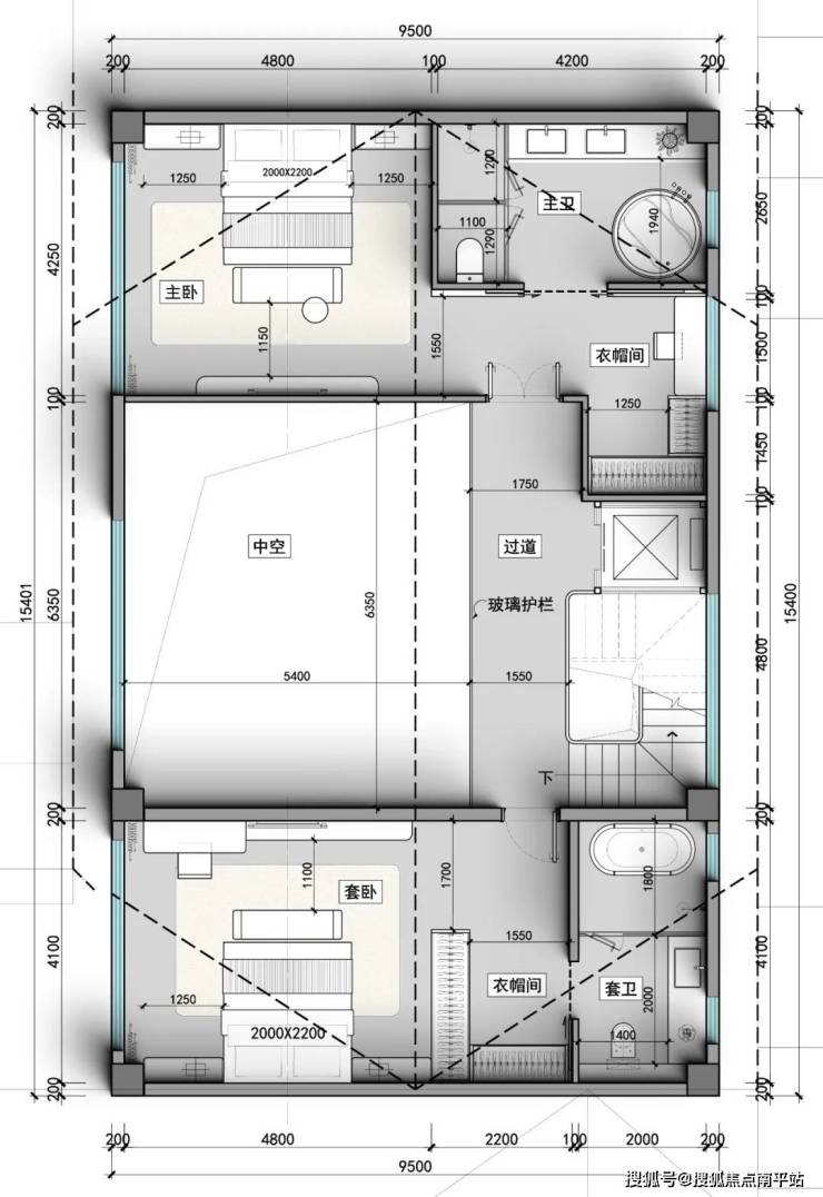
A户型(一字型)
建筑面积:约143㎡,4房4厅6卫+2保姆房+2车位+1庭院泳池,使用面积670m²-980m²

(地上一层)

(地上二层)

(负一层)

(负二层)
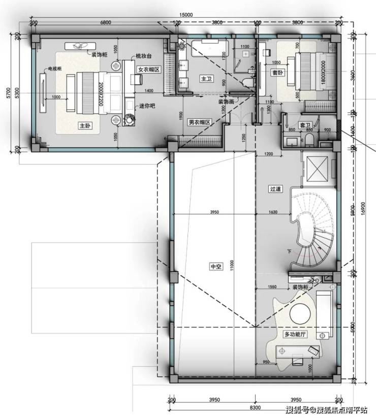
B户型(L字型)
建筑面积:约173㎡,5房4厅7卫+2保姆房+2车位+1庭院泳池,使用面积920m²-1410m²

(地上一层)

(地上二层)

(负一层)

(负二层)
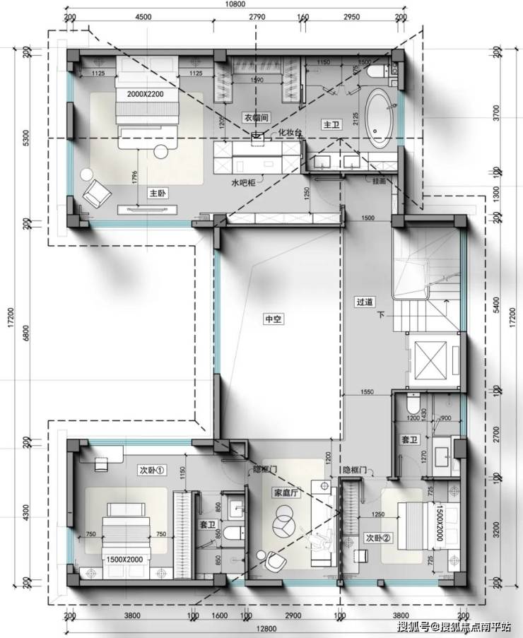
C户型(U字型)
建筑面积:约173㎡,5房4厅7卫+2保姆房+2车位+1庭院泳池,使用面积940m²-1280m²

(地上一层)

(地上二层)

(负一层)

(负二层)
园林效果




装修效果





➢➢三亚保利棠隐——2025热门楼盘
➢ ➢售楼处电话:400-159-8559转8666【已认证】售楼中心
➢ ➢温馨提示——拨打400电话,听到嘀声后——输入分机号8666即可通话
免责声明:本宣传资料所有文字、数据、图片及所标尺寸等仅为本项目建设区域设计效果的表达和示意,为要约邀请,不构成要约内容,相关内容不排除因政府相关规划、规定及其他原因而发生变化,一切有关房屋的具体信息以书面合同及政府最终审批文件为准。免责声明:本文章文字、数据和图片皆来源网络,如有侵权请告知立马删除,数据图片仅供参考,不作为邀约或承诺。