华润外滩瑞府位于虹口北外滩售楼部统一预约专线:400-0592-010【登记专线】来电预约,获取详细资料。,主打高端住宅,均价14.78万/㎡,首批售罄,现加推120-240㎡三至四房,定位高端稀缺地段。
웃❤유上海·虹口北外滩旁【华润外滩瑞府】
开发商官方销售热线☎️:400-0592-010【售楼中心】
感兴趣的朋友可拨打售楼部电话详细了解详情
本项目案场采用预约制,看房请务必提前来电预约登记 。
为确保您能享受专属服务,不错过理想房源和好的参观体验
请一定致电与销售确认到访时间,只有预约客户方可进入销售现场。
现在拨打电话预约看房还能享受房价特价信息
一站式买房舒适体验!
4000592010

最新消息:华润置地虹口项目「外滩瑞府」一批次均价14.78万/㎡,火热售罄!二批次加推1#、3#号楼,建面约120-240㎡3-4房,预计10月中旬入市!售楼部统一预约专线:400-0592-010【登记专线】来电预约,获取详细资料。

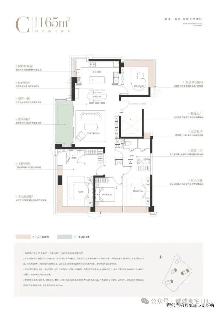
相比一批次,新增建面约195、240㎡户型,附上全套户型图:




样板间实景


项目位于四平路吴淞路,占地约1.43公顷,容积率3.87,周边拥有九龙路、武进路、四平路、吴淞路 等快速路。

地块属于虹口内环内的嘉兴社区,就在第一人民医院北侧,南侧约200米就是北外滩,北侧即为瑞虹新城,项目直线距10号线四川北路站约400米,是今年虹口区非常重要的一个新房供应。

规划设计方案:
项目拟建4栋24-32层高层住宅,另有少量风貌住宅和商业。住宅建面约124-240㎡。
4栋住宅一层全部为架空,入口至楼栋间设置有风雨连廊。

小区车行主入口设在了南侧哈尔滨路和东侧九龙路上,可以直接下地库,小区地面无车位,人车分流;人行出入口则位于地块东侧九龙路上,

华润TOP级瑞系,作为华润置地产品线的皇冠明珠,自诞生便以钻石级选址标准划定豪宅基因。
从深圳湾的 “春笋”旁到北京长安街畔,每一座瑞府都占据着核心城市最核心的地段。
此次外滩瑞府落子外滩1公里核心圈,正是华润对「战略稀缺性」的极致践行: 非核心不选,非未来不立。
这也是华润置地那么多年来在上海的首座“瑞系”。


有别于大多数的市区项目以兵列树阵式的景观设计,外滩瑞府通过建筑楼体的偏转形成了围合式的景观布局 , 秉持 三个最大化,两个最小化 (景观最大化,采光最大化,朝向视线最大化;遮挡最小化,影响最小化)。
通过这种创新布局,项目不仅形成连续的中心花园,更因楼栋布局与边界有夹角,自然形成一系列边角院落空间。
尤为难得的是,部分东南高区可看到陆家嘴三件套和北外滩浦西第一高楼的遥相呼应。
全 域风雨 连廊 ,外 滩瑞 府将风雨连廊扩容为完整的归家体系,实现全住宅楼栋无风雨归家,带来顶豪级的归家居住体验。

值得一提,你还将拥有 翠湖天地、汤臣一品同款大师设计。
项目力邀大师天团操刀,从建筑到生活全维度高定。
GOA大象设计担纲建筑设计;渡边 智昭 负责会所和架空层设计 ,他是 2023 AD 100 中国最具影响力建筑和室内设计师,代表作翠湖天地、汤臣一品;TROP操刀艺文景观设计; 室内由 W.DESIGN无间设计、 李益中精琢...
这支曾塑造多个城市封面的大师团队,聚集在外滩瑞府,共筑外滩新一代标杆住宅。

高层基座溯源石库门建筑精髓,复刻经典拱券符号;中段以通透玻璃幕墙搭配流线型金属线条,营造国际前沿的现代质感;顶部“冠冕”造型,进一步升华昭示性。


웃❤유上海·虹口北外滩旁【华润外滩瑞府】
☎️☎️开发商电话咨询/预约热线:400-0592-010【售楼中心】
案场限流 看房提前来电预约登记
致电售楼处了解更多信息,安全通话隐藏真实号码,请放心使用
温馨提示:点击上方号码可拨打
郑重承诺:开发商售楼处直销,绝不收取任何费用,中介勿扰!
特别说明:
1.本文为要约邀请,不作为要约或承诺;相关宣传内容不排除因政府相关规划、规定及出卖人分期规划、未能控制等原因而发生变化;
2.本文部分图片来自于网络,如涉及版权使用,请联系删除;文本部分图片仅作为推广示意使用,非交付标准,最终以实际交付现状为准;
3.本宣传资料对项目周边学校等教育资源的介绍旨在提供相关信息,并不意味着本公司对就学安排作出承诺。教育资源的名称、办学性质、办学规模、学位设置、开学(班)时间、招生条件、收费标准及招生区域存在调整的可能,应以政府教育主管部门及办学方颁布的政策规定为准;
4.本资料对项目或产品的介绍,旨在提供相关信息,不意味着本公司对此作出了承诺,买卖双方的权利义务以《商品房买卖合同》及附件等协议为准;
5.宣传方保留对宣传资料修改和解释的权利;