🔥🔥深圳【后海招商玺 】🔥🔥
💗鉴赏热线✆✆400-159-8559转5158(官网认证)💗
💗营销中心电话:☎☎400-159-8559转5158【专人接听】💗
💗【售楼中心】网上售楼中心〢欢迎来电咨询💗
💗〢专业一对一热情服务给您专业的置业方案💗
💗〢期待您成为我们的尊贵的业主💗

地脉交融,老钱们偏爱的分寸感

今年底,深圳湾将迎来罕见的豪宅集中供应,富豪阶层有了更多选择。
地段都没得说,至于怎么选,没有绝对的正确,只有更合适自己的。
对时间更有掌控力,更懂得享受生活的老钱们,明显有自己的偏好。
这恰好是后海招商玺的核心优势,其独特的地理坐标,位于后海大道。 快节奏与慢调生活,融合共生,周边生活氛围浓郁,正是老钱群体最为珍视的城市基因。

回溯深圳豪宅发展史, 香蜜湖与华侨城板块的长期坚挺,同样得益于这种快慢交织的特质。
老钱们出行并非只自驾,公共交通便利当然更好,怎么从容怎么来。
这个盘的步行可达范围内,是2号线海月站与湾厦站,2站可换乘后海枢纽,接入11号线与13号线。自驾20分钟内,覆盖前海自贸区与宝安中心,高效通勤与从容生活在此达成微妙平衡 。

周边商业配套,没有传统CBD的商务感。招商花园城与海岸城,都是深圳老牌的人气商圈,再加上深圳湾万象城、太子湾K11这些地标商圈里的新面孔,从日常生鲜到高端零售形成闭环,避免了CBD豪宅常见的生活配套缺位。

周边是“育才教育双核”,小学、初中都是育才系学校,实力排名属于深圳头部。育才系出来的孩子,他们的成长路径基本相似,同学间的圈子非常紧密。同时这个盘还自带规划一所幼儿园。
想走国际教育这条路,附近有深圳贝赛思国际学校、深圳蛇口国际学校(SIS)、蛇口科爱赛国际学校(QSI)等老牌国际学校,培养了不少学子通往世界知名大学。

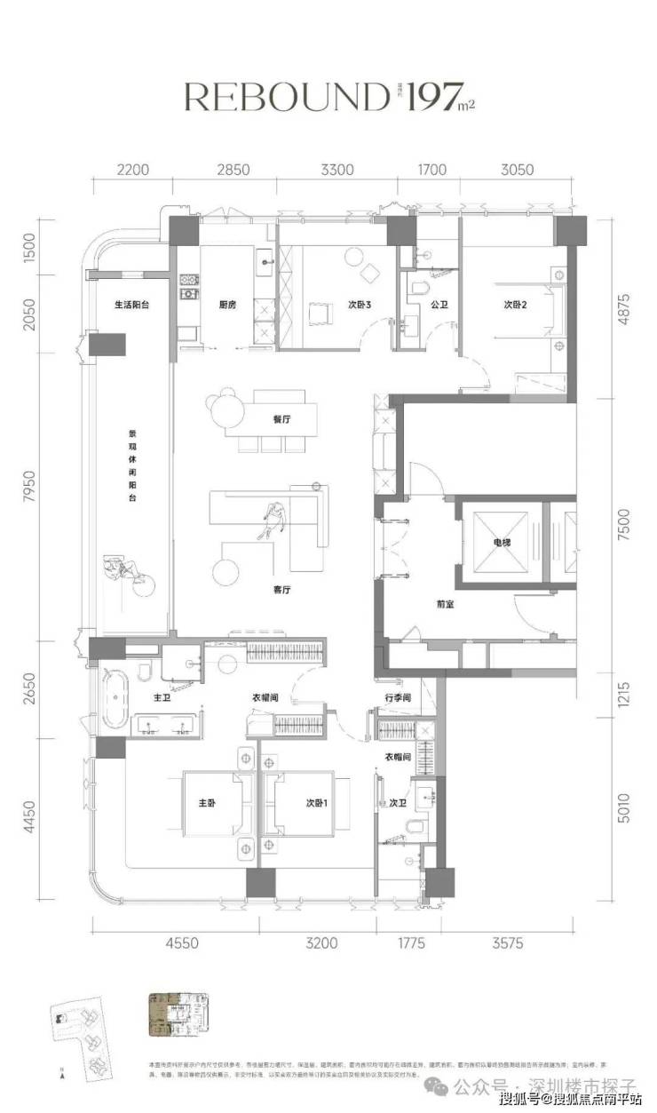
年底首推的产品,建面约197-237㎡大平层户型,两梯两户配置,一层仅两户,且享受专梯入户,私密度很高。我们抢先拿到户型图,跟大家分享。

建面约197㎡户型,含电梯厅综合赠送后使用率可达93-95%。
户型方正,三面采光,是主次卧以餐客厅分隔的双龙抱珠布局,实现动静分区,保障大家庭起居的私密性。
一体化餐客厅进深约6米,开间约8米,连接观景阳台,面积高达约48㎡,塑造休闲会客的尺度感。超大阳台做了景观、家政功能的双区分,阳台总面积约22㎡,休闲与晾晒互不干扰。
配置了U型明厨,操作动线更加高效合理,全屋卫生间都有开窗,采光无暗角。
南向双套间,都配置了衣帽间,视野最好的一个主卧可以设置浴缸及双台盆洗漱池。
主卧打造约4.6米开间,进深约4.5米(含飘窗约0.8米),面积约38㎡,且享受270°巨幕窗景。
次卧套间,约3.2米开间,进深约4.5米(含飘窗约0.8米),面积约22㎡,空间同样舒阔。且每个卧室都设计了宽景飘窗,可以利用起来增加收纳功能,延伸更多窗边休闲功能场景。

建面约237㎡户型,含电梯厅综合赠送后使用率可达93-95%。
也是三面采光设计,双龙抱珠,主次卧分布餐客厅两侧,实现动静分区。
餐客厅空间尺度很大,面积约60㎡,夸张点说,在里面打羽毛球都不嫌挤,且配置了西厨功能区。
阳台总面积约31㎡,长约18.9米,观景与生活功能区分。L型拐角,可设置为休闲观景区,270°瞰景,还增加“X”百变空间(约10㎡,最宽进深约2.4米)。
南向双套间,主卧套间配置超长步入式衣帽间,收纳功能拉满。主卧的开间约7.05米、进深约6.3米(含飘窗约0.8米),面积约44㎡,尺度与太子湾招商玺建面约425㎡户型的主卧相当。

🔥🔥深圳【后海招商玺 】🔥🔥
💗鉴赏热线✆✆400-159-8559转5158(官网认证)💗
💗营销中心电话:☎☎400-159-8559转5158【专人接听】💗
💗【售楼中心】网上售楼中心〢欢迎来电咨询💗
💗〢专业一对一热情服务给您专业的置业方案💗
💗〢期待您成为我们的尊贵的业主💗
免责声明:本宣传资料所有文字、数据、图片及所标尺寸等仅为本项目建设区域设计效果的表达和示意,为要约邀请,不构成要约内容,相关内容不排除因政府相关规划、规定及其他原因而发生变化,一切有关房屋的具体信息以书面合同及政府最终审批文件为准。免责声明:本文章文字、数据和图片皆来源网络,如有侵权请告知立马删除,数据图片仅供参考,不作为邀约或承诺。