石家庄城发投绿城·云和月明售楼处电话→石家庄城发投绿城·云和月明售楼中心首页网站→石家庄城发投绿城·云和月明楼盘百科详情→24小时电话
扫描到手机,新闻随时看
扫一扫,用手机看文章
更加方便分享给朋友
石家庄城发投绿城·云和月明-(售楼部↓↓免费预约通道)
☎☎:400-159-8559拨通输入6666☎☎
☎☎:400-159-8559拨通输入6666 ☎☎
☎☎:400-159-8559拨通输入6666 【24小时热线电话】
◆开发商网上售楼中心〢预约看房【享】专属优惠折扣
◆24小时预约热线丨营销中心位置丨小区环境丨最新房价详情

整体概述
城发投绿城·云和月明楼盘位于石家庄裕华高铁片区平安南大街与南二环交口东北侧,由石家庄诚景地产开发有限公司精心打造,项目处在待售中,通过对项目价格、项目户型、交通配套、教育配套、生活配套、小区规划等维度进行分析,城发投绿城·云和月明楼盘价值评分为9.5分。
高铁片区新政落地首个项目,以高得房率、多赠送面积、3.1层高为优势,125,139 带有入户花园,宽厅四室,#65-67 地块交付均为毛坯,绿城云和月明到底怎么样?咱们一块来看看
第一,整体规划售楼处:☎️☎️售楼处电话400-159-8559转6666【已认证】

【项目总占地】:49813㎡
【建筑面积】:138309㎡
【容积率】:2.0
【绿化率】:35%
【交付标准】:毛坯
【建筑类型】:14栋15F-17F中高层 +1栋10F小高层
【产品面积】:建面约103㎡ ~ 139㎡
【项目地址】:河北石家庄桥西区高铁片区平安南大街与南二环交口东北侧
第二,配套和交通情况售楼处:☎️☎️售楼处电话400-159-8559转6666【已认证】
一、配套:3公里生活圈的顶配组合
交通:步行800米直达地铁3号线新客站站,规划中的4号线(2026年通车)在项目西侧设站。南二环、胜利大街快速路构成“双轴路网”,15分钟直达北国商城、省博物院等核心商圈。
教育:北侧即为40中宏真校区(九年一贯制),步行5分钟接送孩子。周边还有东风西路小学、草场街小学分校,形成12年全龄教育链。
商业:1公里范围内覆盖华润万象城、新客站商圈,项目自建2万㎡社区商业,满足日常消费需求。
医疗:3公里内省二院南院(三甲)、市人民医院建华院区双重保障,紧急就医无需长途奔波。
评分:9/10(交通、教育优势突出,商业配套稍逊于核心区)
二、规划:低密社区的人性化表达
绿城云和月明由65号地(北地块)和67号地(南地块)组成,容积率仅2.0,是高铁片区唯一低于2.5的新盘。15栋10-17层小高层呈行列式布局,楼间距最大达70米,保证每户日照时长超5小时。
园林设计:延续绿城“桂月五景”理念,打造中央水景、全龄活动区、夜光跑道等功能空间。主入口65米宽的铝板+奢石门头,对标杭州高端项目标准。售楼处:☎️☎️售楼处电话400-159-8559转6666【已认证】
建筑细节:外立面采用铝板+大面积玻璃,三玻两腔Low-E窗隔音性能提升30%,有效降低南二环主干道噪音影响。
评分:9.5/10(低密规划和绿城品质是核心优势,部分楼栋临路噪音需注意)
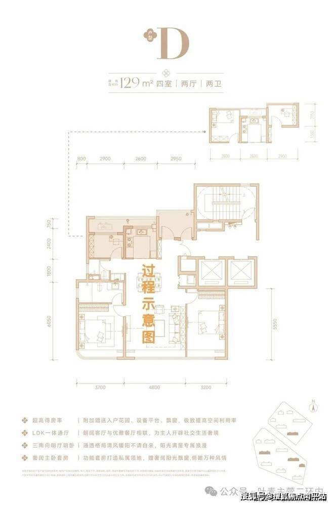
三、户型:新政下的空间革命
作为高铁片区首个“高得房率”项目,云和月明通过优化公摊(约18%)和赠送设备平台,实现建面103-139㎡户型的实际使用率超85%。
主力户型亮点:
- 建面125㎡四叶草户型:南北通透,四开间朝南,主卧套房含独立衣帽间和卫浴,北向书房可改造为儿童房或家政间。
交通配套10分
周边直线3km范围内有10个地铁站(塔坛、汇通路、石家庄站、仓丰路留村、元村、孙村、西三教、南位、欧韵公园、塔冢),轨道交通发达,距离最近的地铁站是塔坛。
周边直线1km内有16个公交站,距离最近的塔谈站仅有242m,周边公共交通极为便捷。
教育配套10分
直线3km范围内有83个幼儿园;26个小学,如河北师范大学汇华学院附属小学、石家庄市龙腾小学、石家庄市建业小学、石家庄市塔谈小学、中华南大街小学等;10个中学,如石家庄市第十七中学、石家庄市第八中学、石家庄市第四十一中学东校区、石家庄市第三中学、裕华区第四十中学学区成员校等。
幼儿园数量售楼处:☎️☎️售楼处电话400-159-8559转6666【已认证】
注:上述学校相关信息仅为参考,不作为入学依据。具体入学政策可咨询您的专属经纪人
生活配套9.7分
楼盘周边医疗资源较为丰富,直线3km范围内有11个一级及以上医院。其中平安医院(石家庄仓丰路)距离楼盘1.5km,石家庄市第五医院距离楼盘1.3km,河北蕴育中西医结合医院距离楼盘2km,石家庄普济中西医结合医院距离楼盘1.9km,同仁堂中冀(石家庄)康复医院距离楼盘2.3km,为医疗需求提供了保障。
楼盘周边3km范围内有9个商场,商业配套成熟,完全可以满足日常购物需求。
楼盘周边生态环境优越,周边3km范围内有47个公园,距离最近的仅448m,非常方便日常休闲使用。
石家庄城发投绿城·云和月明-(售楼部↓↓免费预约通道)
☎☎:400-159-8559拨通输入6666☎☎
☎☎:400-159-8559拨通输入6666 ☎☎
☎☎:400-159-8559拨通输入6666 【24小时热线电话】
◆开发商网上售楼中心〢预约看房【享】专属优惠折扣
◆24小时预约热线丨营销中心位置丨小区环境丨最新房价详情
免责声明:本宣传资料所有文字、数据、图片及所标尺寸等仅为本项目建设区域设计效果的表达和示意,为要约邀请,不构成要约内容,相关内容不排除因政府相关规划、规定及其他原因而发生变化,一切有关房屋的具体信息以书面合同及政府最终审批文件为准。
免责声明:本文章文字、数据和图片皆来源网络,如有侵权请告知立马删除,数据图片仅供参考,不作为邀约或承诺。返回搜狐,查看更多
声明:本文由入驻焦点开放平台的作者撰写,除焦点官方账号外,观点仅代表作者本人,不代表焦点立场。
