官方热推✦珠海华发香山湖畔售楼处电话【VIP预约专线】珠海华发香山湖畔官网首页+环境+地址+价格+户型+容积率+配套详情24小时咨询 楼盘最新动态
扫描到手机,新闻随时看
扫一扫,用手机看文章
更加方便分享给朋友
1、区位
项目位于珠海南北中轴——迎宾北路与东西主轴——梅华路交汇处,地处珠海政经文教中心,区域内集中了珠海超80%的市政单位、金融总部、文化教育等机构,北临凤凰山南麓,南瞰迎宾路板障山脉,地势北高南低,位于新老香洲板块的中心与景观中轴,是珠海政治、经济、文教、体育的中心。

2、价值
香山湖畔作为华发在市区精心打造的首个“华发+新一代好房子”系列高端产品,囊括了“交通+文教+生态+商业+医疗+政务”六大配套,共同构成了香山湖畔综合生活圈。

3、规划
项目规划强调与城市整体风貌自然融合,项目自南向北,从文化宫方志馆、南塔、北塔、到凤凰山脉依次升高,打造极具美感的天际线,同时采用板式建筑和全面宽玻璃设计,结合独有的看山资源,实现景观及朝向资源最大化。

03
塔楼立面采用竖向线条主边框,营造秩序感与挺拔感,横向线条的飘板, 创造出了独特的水平延伸感,勾勒同频国际的时代审美。采用无山墙设计,以景观资源最大化为导向,所有外墙面能开尽开,实现高窗墙比。塔冠呈现极富生命力的曲线,赋予建筑张力,打造金色塔冠美学。


04
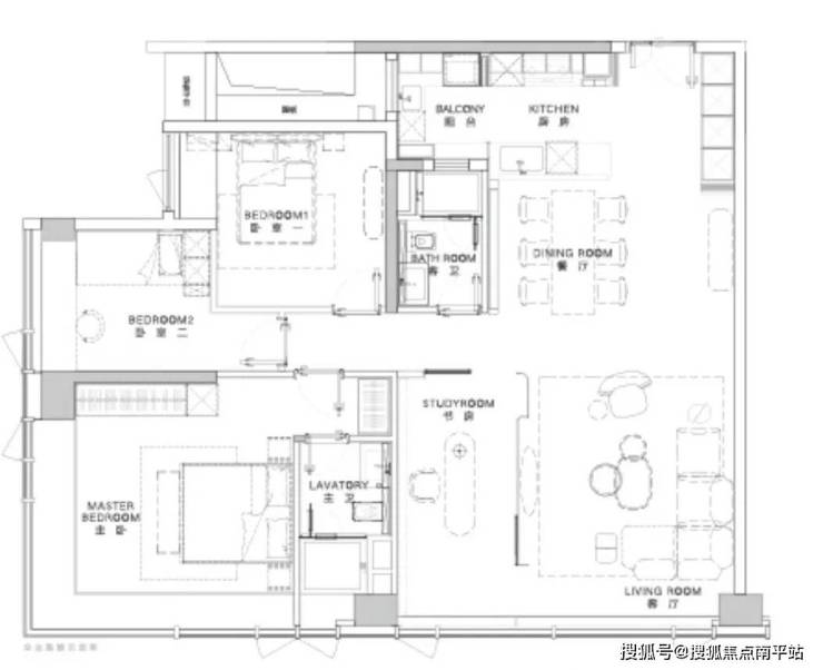
项目涵盖建面约108-200㎡面积段户型,户型方正,LDKB厅餐客一体化设计,多面宽南向采光,360°采光楼型,栋栋视野无遮挡,转角主卧270°景观视野。灵活开合拓宽空间。
免责声明:本宣传资料所有文字、数据、图片及所标尺寸等仅为本项目建设区域设计效果的表达和示意,为要约邀请,不构成要约内容,相关内容不排除因政府相关规划、规定及其他原因而发生变化,一切有关房屋的具体信息以书面合同及政府最终审批文件为准。免责声明:本文章文字、数据和图片皆来源网络,如有侵权请告知立马删除,数据图片仅供参考,不作为邀约或承诺。
声明:本文由入驻焦点开放平台的作者撰写,除焦点官方账号外,观点仅代表作者本人,不代表焦点立场。
