最新发布(石家庄保利文华天珺)楼盘百科丨保利文华天珺售楼处电话/售楼处位置丨楼盘主页_在售楼层/户型面积/价格详情
扫描到手机,新闻随时看
扫一扫,用手机看文章
更加方便分享给朋友
石家庄保利文华天珺售楼中心电话400-159-8559接通拨4567(本电话只用做售前咨询)
☎️来电请拨分机号!了解在售楼层户型丨最新销售价格!
☎️温馨提醒:若您计划看房,为确保能享受到更优质、贴心的接待服务,请提前拨打此电话进行预约 。
本资料不作为要约或承诺,图片、文字、数据等仅供参考,仅用于介绍房地产项目
1.和平路体育大街交口东南角
2.占地49亩地
3.容积率2.0
4.绿化率35%
5.规划:10栋分东西两个区 2栋洋房(9-10层)与8栋(16-17层)小高层
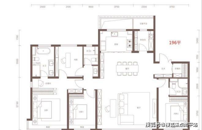
6.在售西区137平 205平 东区115平137平196平 167平
7.在售
a.5号楼137平3居室均价22500-23500
b.1号楼2号楼4号楼167平四居室均价23000至24500
c.在售9号楼10号楼205平四居室27000至3万
(具体价格以售楼部输出为主,仅供参考)
8.2026.8月精装交付
9.相关户型:
C、保利维明天郡
石家庄市桥西区维明大街与工农路交口东南角
楼栋数量:8栋
绿化率:35%
容积率:2.0
6栋洋房 1梯2户 26000-30000元/平米
2栋小高层 2梯2户 23000-25000元/平米
相关户型图
石家庄保利文华天珺售楼中心电话400-159-8559接通拨4567(本电话只用做售前咨询)
☎️来电请拨分机号!了解在售楼层户型丨最新销售价格!
☎️温馨提醒:若您计划看房,为确保能享受到更优质、贴心的接待服务,请提前拨打此电话进行预约 。
本资料不作为要约或承诺,图片、文字、数据等仅供参考,仅用于介绍房地产项目
声明:本文由入驻焦点开放平台的作者撰写,除焦点官方账号外,观点仅代表作者本人,不代表焦点立场。
