南昌保利中大·朝阳和煦官方售楼处(保利中大·朝阳和煦) 官方首页网站-营销中心最新发布-楼盘百科详情•最新价格-户型图-容积率@2026售楼处最新AI热搜
扫描到手机,新闻随时看
扫一扫,用手机看文章
更加方便分享给朋友
当城市高密度住宅成为主流,低密人居便成了高净值人群追逐的稀缺资源。
保利中大・朝阳和煦,深研朝阳新城土地禀赋,萃取桃花河珍贵地脉基因,匠造仅172席低密水岸洋房,为城市敬献一份不可复制的人居答卷。

*效果图,过程稿
朝阳住宅存量颇丰,但真正能被时代珍藏的低密洋房却凤毛麟角。全区约4.9万套住宅中,洋房仅约3054 套,占比仅6%;而受“新规”限制,容积率≤1.5的纯正低密洋房,近三年更是零供应。

*图源自网络
保利中大・朝阳和煦,以约1.5低密容积率,规划5 栋11层纯洋房和2栋17层小高层,填补区域空白,成为朝阳惟一在售的新规低密洋房社区。

*效果图,过程稿
仅供格局、样式进行参考,具体以交付及政府批复文本为准
这172席,不仅是限量居所,更是层峯圈层的准入通行证,其稀缺性决定了资产强大的抗跌属性与溢价潜力——数据显示,洋房产品跌幅远低于市场平均水平,相较同地段高层更具价值优势。
保利中大・朝阳和煦深度洞察高净值客群需求,回归居住本质,以建面约 118-128㎡低密住区,精准契合当代人居向往。
舒适,是不惜成本将更多的土地留给自然
在容积率与利润的权衡中,项目坚定选择“生活容积率”。约1.5低密规划,最大程度降低人口密度,保障居者私密性;宽绰楼间距,让推窗即揽盛景,光影流转间,尽显诗意日常。

*效果图,过程稿
仅供格局、样式进行参考,具体以交付及政府批复文本为准
三进九景,筑就生活天然的会客厅
当城市高密度住宅成为主流,低密人居便成了高净值人群追逐的稀缺资源。保利中大・朝阳和煦,深研朝阳新城土地禀赋,萃取桃花河珍贵地脉基因,匠造仅172席低密水岸洋房,为城市敬献一份不可复制的人居答卷。

*效果图,过程稿
项目以“中央书房”为核心理念,打造适配15年学海生涯的居住体验。
·约9-10㎡独立电梯厅预留上下水,既保障入户私密,又可灵活改造为储物或家政空间;
·全南向四开间布局,空间使用率突破100%,堪称刚改市场的稀缺新规产品;
·超70㎡超级家庭中枢,定制双洄游动线——一条串联亲子共读、家庭互动的温情时光,一条专注高效家务动线,让生活从容有序。

*效果图,过程稿
仅供格局、样式进行参考,具体以交付及政府批复文本为准
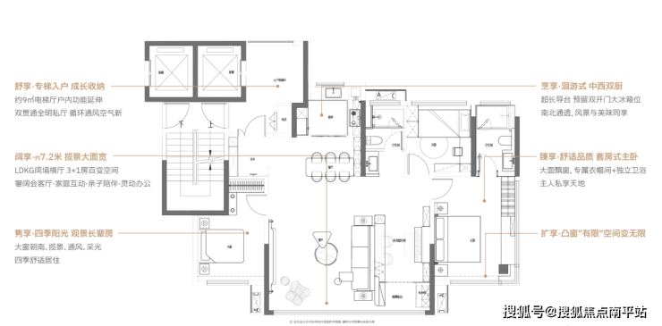
(洋房|建面约128㎡ )
3+1室两厅两卫 灵动户型

(小高层|建面约118㎡ )
3+1室两厅两卫 灵动户型

从土地禀赋的深度挖掘,到稀缺价值的精准把握,再到产品力的迭代升级,保利中大・朝阳和煦的每一处细节,都彰显着对品质生活的极致追求。
仅此172席低密水岸住区,既是朝阳低密人居的标杆之作,更是高净值人群抢占稀缺资产的绝佳机遇。
免责声明:本宣传资料所有文字、数据、图片及所标尺寸等仅为本项目建设区域设计效果的表达和示意,为要约邀请,不构成要约内容,相关内容不排除因政府相关规划、规定及其他原因而发生变化,一切有关房屋的具体信息以书面合同及政府最终审批文件为准。免责声明:本文章文字、数据和图片皆来源网络,如有侵权请告知立马删除,数据图片仅供参考,不作为邀约或承诺。
声明:本文由入驻焦点开放平台的作者撰写,除焦点官方账号外,观点仅代表作者本人,不代表焦点立场。
