2025最新楼盘资讯长沙万象春樾和景售楼中心首页网站→长沙万象春樾和景楼盘百科详情→24小时电话售楼中心电话→楼盘百科→首页网站→24小时热线电话
扫描到手机,新闻随时看
扫一扫,用手机看文章
更加方便分享给朋友
长沙万象春樾和景售楼处电话☎️400-159-8559转接8888(专人接听)
🌈长沙万象春樾和景营销中心电话:☎️400-159-8559转接8888【营销中心】
🌈温馨提示:拨打400电话,听到嘀声后,输入分机号8888即可!
➤➤➤➤VIP贵宾置业〢欢迎来电咨询
免责声明:(本文章所用图片来源于网络,如有侵权请联系本网站删除!)恭迎品鉴◆◆

(图源:克尔瑞湖南)
去年5月17日,万象地产拿下了隆平片区的015号地块。此地块面积不大,只有39亩,算中小地块;容积率2.5,楼面价3700。此宗地块北侧是去年1月由湖南建投拿下的096地块,规划条件基本一致,但面积大了几圈,有接近240亩,6倍于此地块,不过后者开发时序估计还很长。

这个项目核心卖点我认为就是六号线地铁口,它本身是属于次级板块的边缘位置,但因为有了六号线,所以很多不利点就解决掉了。对于这种区位,我一直以来的定位就是边缘片区。买核心片区固然好,但价格高攀不起的情况下,到底选位置更好的老破小还是更偏的新房?如果是改善就不用纠结了,但如果是刚需则没有标准答案,在新盘有高品质、地铁加持的情况下,我可能个人会更为倾向一点新盘一点。当然,东南西北四个边缘方向,你只适合选跟你工作生活圈相对更近的那个。
4001598559,8888
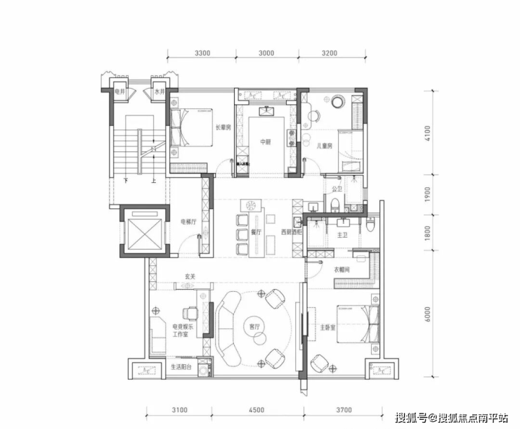
整个项目只有一个地块,不到40亩的面积,地块形状面宽较窄进深较长,虽然我们经常说面宽大更好,但这在南侧是主干道的情况下,面宽不大并不是坏事——受噪音影响的楼栋更少。
住宅共计464户,户均137平,典型的刚改小区。
可以看到,楼栋呈兵营式排布,总共10栋楼,其中3栋纯正洋房、3栋小高洋房(10-11F)、4栋80米高层,容积率2.5,密度不算高。 虽然项目是一整个地块,但开发商将它分成了两期,南侧六栋洋房和小高洋房组成一期,北侧四栋高层为2期。

一期的洋房都是纯板楼形态,共有4个户型,有比较少见的小户型127平洋房,然后就是143平、168平和225平四个户型,户型分布可以看上面的图
经济技术指标上,商业比例2.1%,仅在1#楼下有一定底商,对于低楼层的住户比较友好;绿地率达到40.2%、建筑密度21.9%,比容积率类似的项目密度更低、绿地率更高,算一个比较不错的水平。
我们知道,纯正洋房最大的优势是无消防登高面,所以绿化能够更集中,更连片,不过这个地块的形态限制导致这个优势不好发挥,外加部分洋房是其实10-11#的小高层,所以还是留有登高面。具体可以看下图。当然,虽然在洋房中谈不上出众,但相对于普通高层的优势还是非常明显的。所以视野方面,外部景观不多,5#外面有个城市绿地,是开发商来负责建设。

一期洋房的楼间距普遍在32-35米,由于对面楼最高也就是33米,这个楼间距已经达到了1:1(一般高层小区,基本上只能到1:2甚至1:3),哪怕是对于1楼的住户也是充足的,所以不用担忧日照的问题。哪怕严格来看,整个小区唯一楼间距稍微差点的只有二期的高层8和10栋,所以一期不用担心。

这次一期洋房全部没有架空层,高层是部分架空,不利因素上,公共厕所、垃圾站都在8栋附近,和一期洋房距离较远,也没有什么影响。
这个项目适用了建筑新规,所以得房率比以前的房子要高一些。根据户型图,一期洋房的户型得房率普遍在110-114%之间(算上了独立电梯厅赠送,此项目是小高层,公摊低,得房率会比新规的高层更高),如果按照老规来做,大概率是90-95%左右,相当于多了接近20%的空间。当然,我们要知道去年起新开的新房,得房率很多都是这样了,未来也是(指的是维持目前的得房率,未来不会大规模再增加得房率了,甚至有可能控制赠送上限),所以比新房这谈不上优势,但和二手房比,那优势确实巨大了,虽然新房相对二手房也确实有溢价,但这个溢价是没有到20%这么大的,我在《不再被忽悠!细究公摊、得房率之谜》一文中分析过这个溢价的逻辑。对于刚需来说,得房率提升就是实打实的降房价。
这个项目洋房据说层高最高有3.3米,这个数字比起目前改善的3.1米还高了,考虑到楼板不会有超高层那么厚,实际表现会非常好。

整个项目为公建化外立面设计,开发统一封窗。阳台部分直接包入客厅计半面积,所以整体外立面是平整的,外立面虽然以漆为主,但还是会比不封窗的项目好看很多。
在顶层的处理上也统一采用玻璃进行封闭,所以整体立面的窗墙比相对高。在现场可以看到,封窗玻璃算是比较大的,开发商用的LOW-E镀膜玻璃,整体呈蓝色效果属于片区独一档。
129户型

129户型,这个户型相当于老规的170左右。整体中规中矩。亮点是一个非常大独立电梯厅,接近于私梯入户,面积达到了8平,而且空间规整,可以做满墙鞋柜;户内设备平台多,可以分体装空调,不像有些项目强制上中央空调;客餐厅、主卧、厨房尺度都比较大,次卧也不小。

但劣势也有,户型是典型的四叶草设计,动静不分区;面宽偏窄,只有11米3;其次是无北阳台;至于没第三个卫生间,我倒觉得在这个面积段可以接受。

142平这个户型相当于老规的185平左右。这次不知道为何没有控制在140平以内,这样要多交一些契税。
这个户型是同样是典型的四叶草结构,所以缺点也和128类似,动静不分区,面宽少了点仅12.5米。不过优点也类似,独立电梯厅;客餐厅LDK设计空间大,主卧,次卧尺度也很大;带多个设备平台,总的来说,类似129的放大版,但走进去的话,空间尺度明显还是比129大不少,可以实地体验看下。

168户型

168平洋房这个户型相当于老规的220平左右。设计和小户型完全不一致了,一是大面宽设计,有15.6米;二是端厅设计,客厅270度采光而且立柱非常少,跨度大;三是非四叶草结构,动静分区。具体看房间,客餐厅面积约60平,面宽达到了6.1米;主卧为大套房设计,达到了近40平,除了独立大衣帽间,双台盆+浴缸外,甚至可以布置玄关;带独立生活阳台。

225户型

225平洋房,这个户型相当于老规260左右的产品了。类似167的端厅设计,差异是该单元为一梯仅一户,独立电梯,其他的也没有太多问题了
所以,整体来看,和所有新规产品一样,不管户型做成啥样,因为高得房率,产品都是吊打老规的。但从新规产品的设计来看,小户型设计较为普通,大户型则有一定的亮点。
周边配套
交通:项目最关键的配套是门口的6号线,韶光站地铁口就在项目南侧,已经通车,6号线算是比较好用的地铁,路线直,换乘多,东去机场,西可抵河西。道路交通方面,南侧是主干道人民东路,往东去机场已经快速化,西侧未来进城也会快速化至东二环,相较于很多次级板块的新房,整体交通是最方便的一档。现在地铁建设已经大幅减速,8号线以后的规划已经远落后于预期,所以新房的地铁最好还是不要吃规划的大饼了,除非已经在建。
学校:这个项目学校并不强势,不是学位房。学校为小学划片+中学派位。小学大概率是大同三小,中规中矩,但优势是步行距离近,不到500米(上图泉坝路还没修,得绕行)。

中学派位除了参考这几年大同三小派位外(确实都是芙蓉区中规中矩的学校),未来还有多所新建的中学,其中包括桃李九章配套的那所湘郡培粹隆平校区,建成后应该会是派位指标较多。这个学校目前来看会是隆平片最好的初中,未来还会有几个项目可以配套入学。
商业:距离项目最近的大型商业是芙蓉龙湖天街,这是目前浏阳河东最大,最热闹的商业综合体,项目从6号线往西两站就是。沿着6号线或者人民东路往东20分钟是机场奥特莱斯,整体来看还凑合。
公园:项目南侧的公共绿地,由开发商建设,对公众开放,目前已经建成,森系主题搭配大面积水景,整体的舒适感不错,弥补了项目集中绿地不足的缺点;临近有一个还在建设的东湖公园,与项目有西侧一个地铁站的距离,步行12分钟左右。
长沙万象春樾和景售楼处电话☎️400-159-8559转接8888(专人接听)
🌈长沙万象春樾和景营销中心电话:☎️400-159-8559转接8888【营销中心】
🌈温馨提示:拨打400电话,听到嘀声后,输入分机号8888即可!
特别说明:
1.本文为要约邀请,不作为要约或承诺;相关宣传内容不排除因政府相关规划、规定及出卖人分期规划、未能控制等原因而发生变化;
2.本文部分图片来自于网络,如涉及版权使用,请联系删除;文本部分图片仅作为推广示意使用,非交付标准,最终以实际交付现状为准;
3.本宣传资料对项目周边学校等教育资源的介绍旨在提供相关信息,并不意味着本公司对就学安排作出承诺。教育资源的名称、办学性质、办学规模、学位设置、开学(班)时间、招生条件、收费标准及招生区域存在调整的可能,应以政府教育主管部门及办学方颁布的政策规定为准;
4.本资料对项目或产品的介绍,旨在提供相关信息,不意味着本公司对此作出了承诺,买卖双方的权利义务以《商品房买卖合同》及附件等协议为准;
5.宣传方保留对宣传资料修改和解释的权利;
声明:本文由入驻焦点开放平台的作者撰写,除焦点官方账号外,观点仅代表作者本人,不代表焦点立场。
