外滩1公里!「华润外滩瑞府售楼处电话」首开告罄,二批次将加推建面约120-240㎡3-4房,预计10月中旬入市,样板间开放中,预约可看!

南平楼市发布 2025-10-18 19:07:29
用手机看
扫描到手机,新闻随时看

扫一扫,用手机看文章
更加方便分享给朋友

华润外滩瑞府售楼中心电话400-159-8559接通拨4567(本电话只用做售前咨询) ☎️来电请拨分机号!了解在售楼层户型丨最新销售价格! ☎️温馨提醒:若您计划看房,为确保能享受到更优质、贴心的接待服务,请提前拨打此电话进行预约 。

华润外滩瑞府售楼中心电话400-159-8559接通拨4567(本电话只用做售前咨询)

☎️来电请拨分机号!了解在售楼层户型丨最新销售价格!

☎️温馨提醒:若您计划看房,为确保能享受到更优质、贴心的接待服务,请提前拨打此电话进行预约 。

本资料不作为要约或承诺,图片、文字、数据等仅供参考,仅用于介绍房地产项目

虹口北外滩旁

10号线四川北路站约400米

华润置地「外滩瑞府」

首开告罄 二批次即将加推

建面约120-240㎡3-4房

目前“样板间”已开放

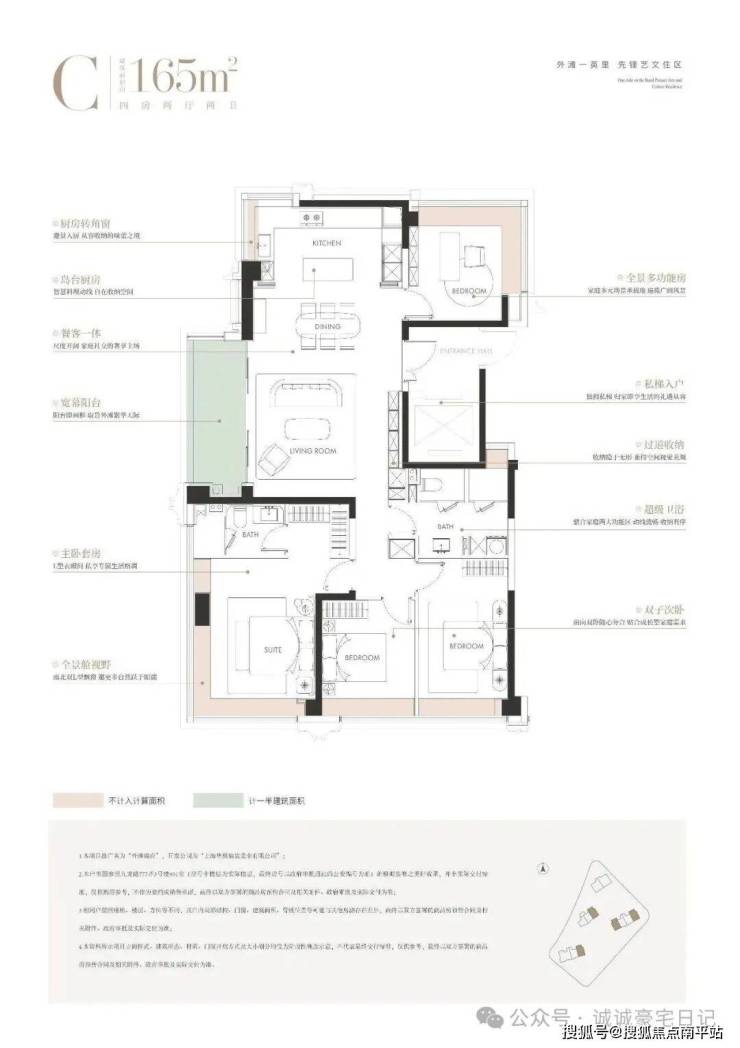
最新消息:华润置地虹口项目「外滩瑞府」一批次均价14.78万/㎡,火热售罄!二批次加推1#、3#号楼,建面约120-240㎡3-4房,预计10月中旬入市!

相比一批次,新增建面约195、240㎡户型,附上全套户型图:

样板间实景

项目实景图如下

项目位于四平路吴淞路,占地约1.43公顷,容积率3.87,周边拥有九龙路、武进路、四平路、吴淞路 等快速路。

地块属于虹口内环内的嘉兴社区,就在第一人民医院北侧,南侧约200米就是北外滩,北侧即为瑞虹新城,项目直线距10号线四川北路站约400米,是今年虹口区非常重要的一个新房供应。

规划设计方案:

项目拟建4栋24-32层高层住宅,另有少量风貌住宅和商业。住宅建面约124-240㎡。

4栋住宅一层全部为架空,入口至楼栋间设置有风雨连廊。

小区车行主入口设在了南侧哈尔滨路和东侧九龙路上,可以直接下地库,小区地面无车位,人车分流;人行出入口则位于地块东侧九龙路上,

华润TOP级瑞系,作为华润置地产品线的皇冠明珠,自诞生便以钻石级选址标准划定豪宅基因。

从深圳湾的 “春笋”旁到北京长安街畔,每一座瑞府都占据着核心城市最核心的地段

此次外滩瑞府落子外滩1公里核心圈,正是华润对「战略稀缺性」的极致践行: 非核心不选,非未来不立

这也是华润置地那么多年来在上海的首座“瑞系”

有别于大多数的市区项目以兵列树阵式的景观设计,外滩瑞府通过建筑楼体的偏转形成了围合式的景观布局 , 秉持 三个最大化,两个最小化 (景观最大化,采光最大化,朝向视线最大化;遮挡最小化,影响最小化)。

通过这种创新布局,项目不仅形成连续的中心花园,更因楼栋布局与边界有夹角,自然形成一系列边角院落空间。

尤为难得的是,部分东南高区可看到陆家嘴三件套和北外滩浦西第一高楼的遥相呼应。

域风雨 连廊 ,外 滩瑞 府将风雨连廊扩容为完整的归家体系,实现全住宅楼栋无风雨归家,带来顶豪级的归家居住体验。

华润外滩瑞府售楼中心电话400-159-8559接通拨4567(本电话只用做售前咨询)

☎️来电请拨分机号!了解在售楼层户型丨最新销售价格!

☎️温馨提醒:若您计划看房,为确保能享受到更优质、贴心的接待服务,请提前拨打此电话进行预约 。

本资料不作为要约或承诺,图片、文字、数据等仅供参考,仅用于介绍房地产项目

声明:本文由入驻焦点开放平台的作者撰写,除焦点官方账号外,观点仅代表作者本人,不代表焦点立场。