深圳后海招商玺(售楼处) 首页 - 销售中心 - 环境 - 户型 - 价格 - 地址 - 楼盘详情 - 配套 - 电话 - 交房时间 - 配套 - 电话 - 后海招商玺交房时间
扫描到手机,新闻随时看
扫一扫,用手机看文章
更加方便分享给朋友
后海招商玺售楼处电话:400-159-8559转接5678【售楼处线上电话】
后海招商玺售楼处电话:400-159-8559转接5678【营销中心VTP通道】
后海招商玺销售中心『首页网站』楼层_价格_户型_配套_房源销售详情
免责声明:(本文章所用信息图片来源于网络,如有侵权请联系本网站及时删除

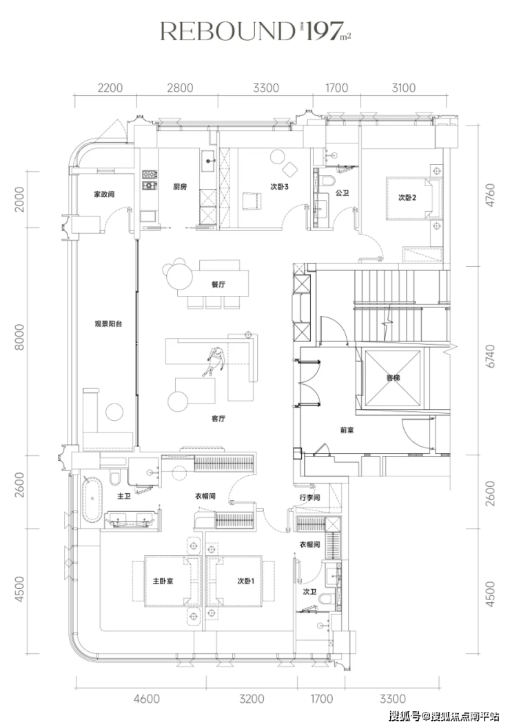
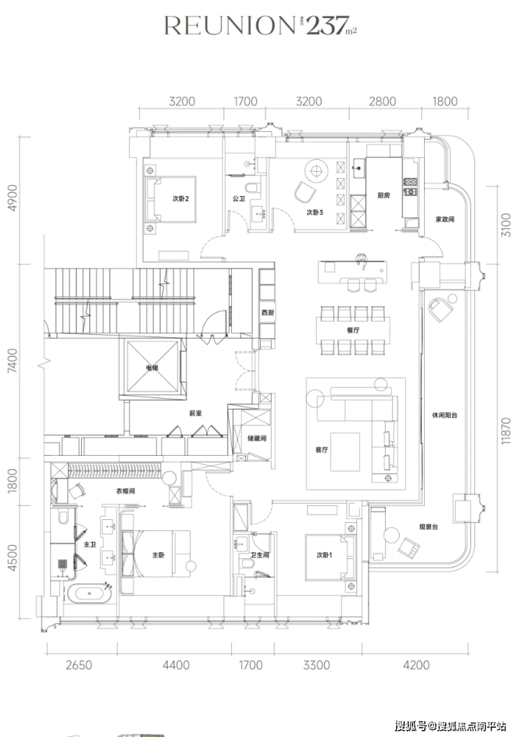
项目由4栋住宅和1栋幼儿园组成,共261套。首推1栋,42套,2梯2户,建面约197-235㎡四房大平层住宅。

02
户型选择
①平面图
首期推出的1栋产品主打建面约197-235㎡四房大平层,全部为精装交付,纯粹的大平层社区定位明确,没有7090政策限制,确保了客群圈层的纯粹性和社区的高端质感。

②户型图
项目主力户型为197-235㎡四房大平层。
据了解项目采用新规设计,采用通过“核心简+边柱技术”以确保每个户型都能获得最优的采光和通风条件。并且通过创新设计实现赠送率和阳台率最大化,加上专梯入户的布局,整体使用率预计可达100%左右。




后海招商玺售楼处电话:400-159-8559转接5678【售楼处线上电话】
后海招商玺售楼处电话:400-159-8559转接5678【营销中心VTP通道】
后海招商玺销售中心『首页网站』楼层_价格_户型_配套_房源销售详情
免责声明:(本文章所用信息图片来源于网络,如有侵权请联系本网站及时删除
声明:本文由入驻焦点开放平台的作者撰写,除焦点官方账号外,观点仅代表作者本人,不代表焦点立场。
