金盛·三亚序为海南地王,主打118-249㎡三至五房,含双园林、会所、大玻璃幕墙,12月底开放售楼,配套齐全,品质高端。💗鉴赏热线✆✆400-159-8559转2222(官网认证)💗
🔥🔥三亚【 金盛·三亚序】🔥🔥
💗鉴赏热线✆✆400-159-8559转2222(官网认证)💗
💗营销中心电话:☎☎400-159-8559转2222【专人接听】💗
💗【售楼中心】网上售楼中心〢欢迎来电咨询💗
💗〢专业一对一热情服务给您专业的置业方案💗
💗〢期待您成为我们的尊贵的业主💗
118-249㎡三到五房,海南地王盘要来了!
近日,备受关注的 金盛·三亚序,户型图、效果图、社区配套等信息流出

该盘地块是亿和金盛在去年12月,以楼面价21191元/㎡竞得,至今仍是海南地王。
据了解,项目占地面积约54亩,容积率2.5,规划了 9栋16-17层住宅,住宅共542套。

产品主打建面约 118-249㎡三至五房,全是纯板楼,一梯一户, 层高3.1-3.3米,预 计12月底开放临时售楼部和样板房。

从现场施工进度来看,项目已有5栋楼建到十几层高,1栋建到10层左右,其它也有几层高,会所框架也基本做好了。


小区配套不错,亮点是内外双园林+全能会所。
社区内,打造 热带雨林主题园林,涵盖礁石花园、海岛花园、丛林秘境、漂浮绿屿、无边际泳池五大主题,外部还享 金岸公园。

项目还打造 约2300㎡会所,包含艺术长廊/雪茄室/棋牌室/私宴厅/健身房/SPA室等功能空间,满足业主日常生活。
外立面打造上,采用 大玻璃幕墙+ 金属格栅,搭配 层叠金属飞檐冠冕,妥妥的豪宅标配。上效果图,大家细品:

就连 地下车库也是精装修的,地下入户大堂从效果图来看,非常高大上。

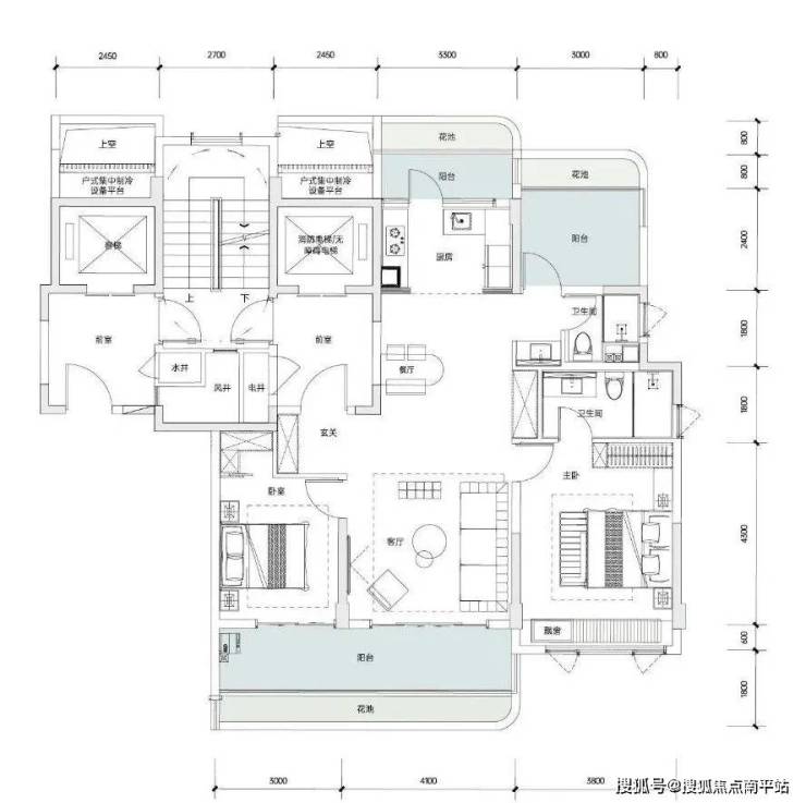
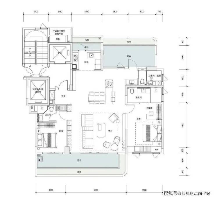
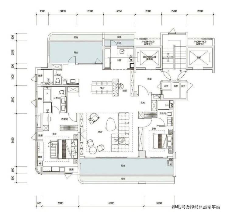
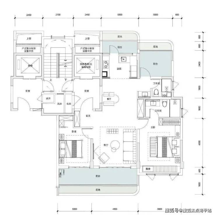
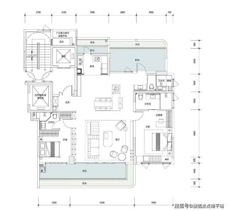
项目推出了六大户型,都带大尺度阳台设计,每个户型都带多个阳台+花池,使用率很高。
118㎡三房,独立前室和入户玄关,进来是LDKB一体化大厅,U型厨房带生活阳台,景观阳台连通次卧,长约7.1米,深约2米,很是宽敞。一间次卧位于玄关处,主卧和阳改房位于里侧。

160㎡南向双套房,玄关一侧套房连接约9.7米阳台,主卧套房带独立衣帽间+主卫,北向阳改房可作为书房、茶室等多功能空间,也可以打造成双儿童房。

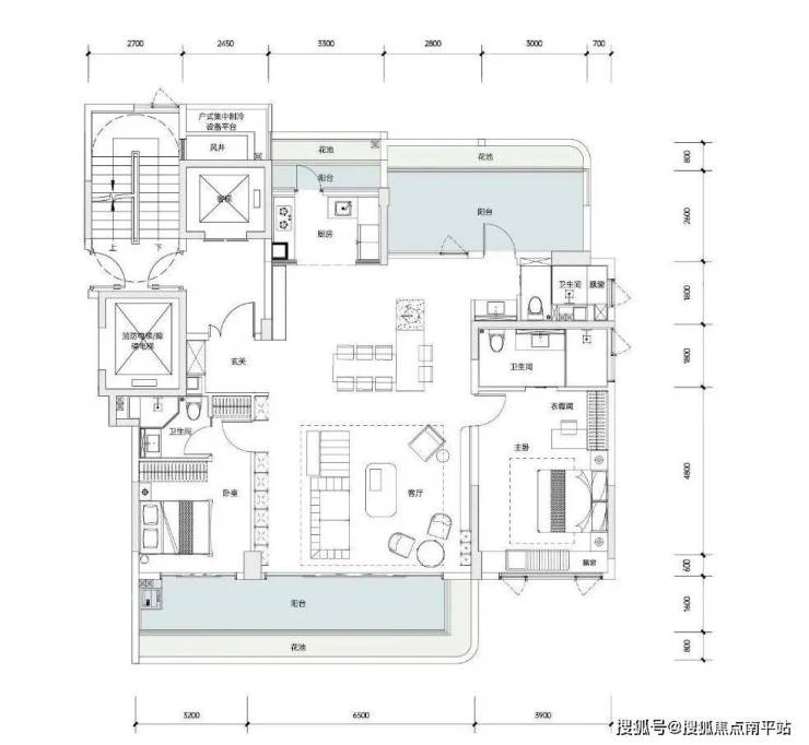
185㎡E户型,该户型是160㎡的加大版,尺度空间感更加奢阔,LDKB一体化大厅,客厅开间约6.9米,配10.1米长阳台,尺度感明显提升。

185㎡F户型,独立入户玄关,中西双厨设计,设置了保姆间,最大的看点是约18.6m超长L型阳台连通端厅,采光绝了;主卧约48米,套房设计,带衣帽间,卫生间四分离设计,配双台盆+浴缸。

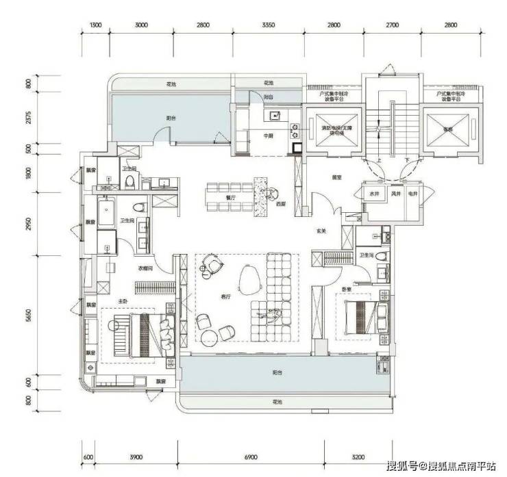
198㎡南向双套房设计,层高3.2米,入门就是LDKB一体化巨厅,阳台长约11.9m,该户型所在楼栋位于项目最南侧,可直面金岸公园与河景,高层具备海景视野。

249㎡大平层,占据项目最佳位置,南北园林三面景观+南向金岸公园景观,客餐厅开间约6.9m,配13.1m 超大阳台,三卧朝南,双主卧套房均配双台盆,主卧带独立步入式衣帽间。

🔥🔥三亚【 金盛·三亚序】🔥🔥
💗鉴赏热线✆✆400-159-8559转2222(官网认证)💗
💗营销中心电话:☎☎400-159-8559转2222【专人接听】💗
💗【售楼中心】网上售楼中心〢欢迎来电咨询💗
💗〢专业一对一热情服务给您专业的置业方案💗
💗〢期待您成为我们的尊贵的业主💗
免责声明:本宣传资料所有文字、数据、图片及所标尺寸等仅为本项目建设区域设计效果的表达和示意,为要约邀请,不构成要约内容,相关内容不排除因政府相关规划、规定及其他原因而发生变化,一切有关房屋的具体信息以书面合同及政府最终审批文件为准。免责声明:本文章文字、数据和图片皆来源网络,如有侵权请告知立马删除,数据图片仅供参考,不作为邀约或承诺。