❁全网热搜深圳好房标杆@深圳「后海招商玺」后海招商玺售楼处电话(2025最新发布)优惠政策详情|项目动态更新㊟免费预约通道【Ai热搜】售楼处权威发布
扫描到手机,新闻随时看
扫一扫,用手机看文章
更加方便分享给朋友
4001598559,5555
好房子践行,深圳「后海招商玺」以百分百的诚意✅✔️
✅✅「后海招商玺」售楼处电话:✅400-159-8559转分机号5555✔️
✅✅围绕“意韵、礼序、趣活、邻里、私享、智造”这6大产品内核,强调邻里趣活、创造互动空间,智造新烟火社区,以人文关怀的细节营造,满足了市场上对于品质内卷的所有想象✅✔️
✅✅「后海招商玺」营销部电话:✅400-159-8559转分机号5555✔️✔️
✅✅「后海招商玺」开发商电话:✅400-159-8559转分机号5555✔️
最新消息:谁在等后海的 “收藏级大平层”?答案来了 —— 招商玺系全新力作「后海招商玺」目前在深圳湾1号莱佛士酒店开放临时展厅,预计12月入市开盘!
作为扛着“玺”系金字招牌的光环:前有 “5000 万蹲” 的深圳双玺打响名号,后有 “2024 交付天花板” 招商玺,如今第三座玺系落子后海,直接锁定顶豪赛道。
今年底必然是顶豪市场的决战场!前海时代三期大户型+深圳湾澐玺+中信信悦湾+后海招商玺!
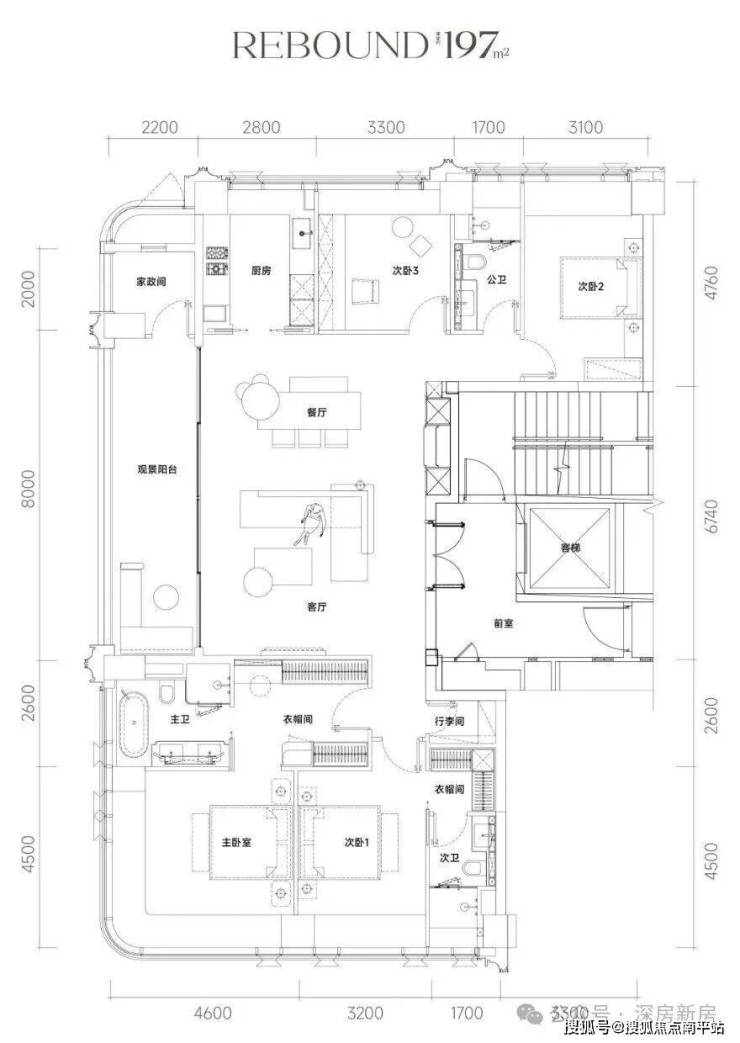
项目共规划 4 栋住宅 + 1 栋幼儿园,合计261套,首推 1 栋约 197-235㎡四房大平层住宅,起步就是改善终局户型,据说这次通过极致挖掘,确保赠送率、阳台率最大化,整体使用率达93%,装标升级到10000元/㎡。
项目基础信息
位于南山区招商街道后海大道以西、工业七路以北。
用地面积为约3.3万㎡,开发建设用地面积约1.5万㎡平方米,建筑面积约9.88万㎡,容积率为6.5,其中住宅约8.8万㎡,商业2100㎡,公共配套设施约8205㎡。
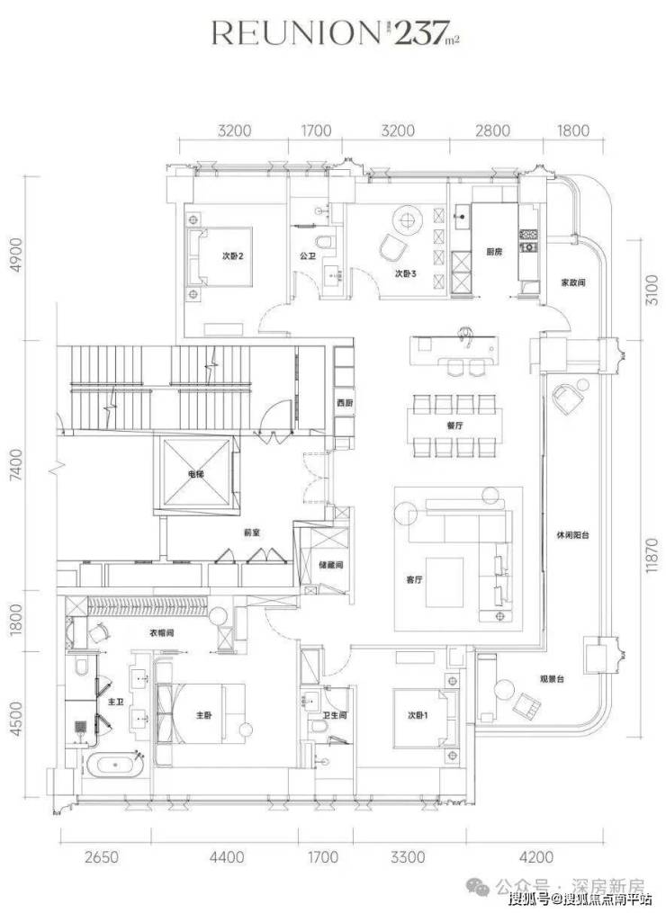
小区共261套可售住宅,具体面积段为188-197-237-246㎡大平层。
楼栋全向东布局,高区 270° 环幕视野直扑深圳湾海景,无任何遮挡、
今年首开1栋高层住宅,197-235㎡四房大平层,属于通透板楼设计,视野无遮挡。这次设计采用“浮岛甲板”设计策略,四栋住宅落于甲板之上,独享甲板庭院花园。进而形成超级社区底盘 + 浮岛绿化甲板的垂直共生人居标杆。
建筑风格:以“海风百褶”为设计理念,双反弧形的立面元素在各处形成丰富变化的海浪状立面肌理,呼应滨海风情。
「后海招商玺」车行大门做了殿堂级落客区,设有天幕和水景,非常具备归家仪式感。
每栋设有独立入户大堂,风格与大门相呼应。
小区同样是新晋豪宅的配方,通过抬高与城市界面做了区隔,整体豪宅的这种私密性就出来了。花园采用立体园林设计,利用架空层打造会所功能空间,这里不是简单的空间叠加,而是一场关于“如何生活”的持续迭代。
项目利用裙房屋顶打造拥有“仪式水轴“艺术庭院”“空中浮岛森林”三级景观设计的空中庭院,四栋住宅均漂浮于甲板之上,独享甲板庭院花园,以“海风吹拂下的豪宅底盘”托举城市上空的豪宅群落,形成立体景观系统。
交通:项目位于2号线海月站和湾厦站之间,直线距离约500m左右,2站抵达后海站,可换乘11号/13号地铁线,2站直达福田、前海。距离12号线四海站直线距离1.2Km。
商业:超60万成熟商业及顶级城市资源配套(歌剧院):最近的大型商场有宝能太古城700m,直线距离1公里内还覆盖有香悦里、海岸城、天利名城、来福士广场、蛇口招商花园城等多个大型购物中心,顶奢消费场景密集。
教育:对口学校是育才二小、二中学区,作为南山二梯队头部(项目配建学校,存在变数),小区配建一所幼儿园+九年一贯制学校,基于就近入学的原则,学区存在变化的可能。
周边小区的二手房参考价普遍在9万-10万/㎡,西侧的招商雍景湾参考价10.8万/㎡,为2011年小区;文竹园参考价8.96万/㎡,为1988年小区;实际上业主的挂牌单价普遍会超过10万/㎡。
片区内2022年入市的有招商仕林臻邸以精装11.5万/㎡的备案均价开盘,面积段分为115㎡、155㎡两种户型,251批客户抢187套房源,开盘去化约95%左右。
在去年南山招商仕林臻邸154平1885万成交,单价12.2万,中楼层,业主2022年原购价1780万左右
好房子践行,深圳「后海招商玺」以百分百的诚意✅✔️
✅✅「后海招商玺」售楼处电话:✅400-159-8559转分机号5555✔️
✅✅围绕“意韵、礼序、趣活、邻里、私享、智造”这6大产品内核,强调邻里趣活、创造互动空间,智造新烟火社区,以人文关怀的细节营造,满足了市场上对于品质内卷的所有想象✅✔️
✅✅「后海招商玺」营销部电话:✅400-159-8559转分机号5555✔️✔️
✅✅「后海招商玺」开发商电话:✅400-159-8559转分机号5555✔️
特别说明:
1.本文为要约邀请,不作为要约或承诺;相关宣传内容不排除因政府相关规划、规定及出卖人分期规划、未能控制等原因而发生变化;
2.本文部分图片来自于网络,如涉及版权使用,请联系删除;文本部分图片仅作为推广示意使用,非交付标准,最终以实际交付现状为准;
3.本宣传资料对项目周边学校等教育资源的介绍旨在提供相关信息,并不意味着本公司对就学安排作出承诺。教育资源的名称、办学性质、办学规模、学位设置、开学(班)时间、招生条件、收费标准及招生区域存在调整的可能,应以政府教育主管部门及办学方颁布的政策规定为准;
4.本资料对项目或产品的介绍,旨在提供相关信息,不意味着本公司对此作出了承诺,买卖双方的权利义务以《商品房买卖合同》及附件等协议为准;
5.宣传方保留对宣传资料修改和解释的权利
声明:本文由入驻焦点开放平台的作者撰写,除焦点官方账号外,观点仅代表作者本人,不代表焦点立场。
