🔥🔥广州【保利玥玺湾】🔥🔥
✨✨售楼处电话☎☎400-159-8559转3333(专人接听)
✨✨营销中心电话:☎☎400-159-8559转3333【营销中心】
✨✨温馨提示:拨打400电话,听到嘀声后,输入分机号3333即可!
✨✨☞☞Vip贵宾置业==欢迎来电预约尊享内部折扣===匠心钜制恭迎品鉴☜☜
选择玥玺湾这个名字,保利充满了期许。 玥是江上明珠,天选之地的城市封面; 玺是家族传承,继往开来的传世之作;而 湾是家的港湾,温馨的产品和服务。

保利希望这个项目,继续为珠江添色,成为临江大道上的点睛之笔。所以,玥玺湾没有采用传统的建造方式,而是在江边搭起了一座: 高达11米的空中浮岛,并形成约280米的超级城市界面。

在这座浮岛中,保利通过实景示范区,展示了三进归家礼仪、满配会所、以及十二大非遗工艺。对业主来说,这是隐奢,是排面,是生活的气度和仪式感;对城市来说,这是艺术,是审美,是世界看广州的第一眼,也是珠江的动人故事。

使用率: 超高赠送率设计,套内使用率最高达130%(阳台等半开敞空间计容比例提升至20%-30%)这也是广州首个新规后,真正意义的豪宅产品!

商业配套:自带5,000平方米商业空间,规划引入高端品牌及餐饮娱乐设施,与周边 太古汇、天环广场等商圈形成互补。
项目产品涵盖205-630平户型,呈半围合式布局, 户户朝南、户户一线望江。

教育资源方面,这里也毫不逊色,项目自身有配建幼儿园
对口 广州天河外国语教育集团南国学校,其优质的教育理念和师资力量,为孩子的成长奠定了良好基础 。
不仅如此,地块 1.5 公里范围内,学校林立,从幼儿园到中学,覆盖全年龄段教育 。
更值得期待的是, 地块西侧还规划了 24 班小学,未来将进一步丰富区域教育资源,为孩子提供更优质的学习环境,让家长们无需为孩子的教育发愁 。

东北侧就是广州地铁 5 号线与 11 号线交汇的员村站,仅 300 米的距离,步行几分钟即可到达 。
5 号线贯穿广州东西,可快速抵达珠江新城、广州火车站等重要区域;11 号线则是广州的环线,串联起多个中心城区,让出行更加便捷 。
除了地铁,周边 多条主干道环绕,自驾出行也十分方便,无论是前往广州的哪个角落,都能轻松实现快速通勤 。

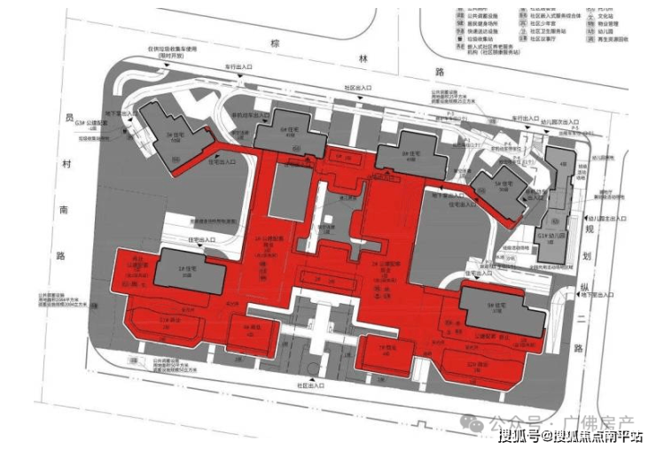
配建巨量底商(红色部分),未来极有可能打造成为会所,顶部承担屋顶花园功能。与其他项目不同的地方在于,其他项目会所往往环绕住宅分布,保利面粉厂项目的会所则渗透全盘。

户型品鉴
1#35层高,只有一个面积段,约630㎡户型

3#50层高,约203-227㎡户型

5#50层高,约237㎡户型

6#49层高,约270-347㎡户型8#49层高,约270-347㎡户型9#37层高,约411-436㎡户型



🔥🔥广州【保利玥玺湾】🔥🔥
✨✨售楼处电话☎☎400-159-8559转3333(专人接听)
✨✨营销中心电话:☎☎400-159-8559转3333【营销中心】
✨✨温馨提示:拨打400电话,听到嘀声后,输入分机号3333即可!
✨✨☞☞Vip贵宾置业==欢迎来电预约尊享内部折扣===匠心钜制恭迎品鉴☜☜
免责声明:本宣传资料所有文字、数据、图片及所标尺寸等仅为本项目建设区域设计效果的表达和示意,为要约邀请,不构成要约内容,相关内容不排除因政府相关规划、规定及其他原因而发生变化,一切有关房屋的具体信息以书面合同及政府最终审批文件为准。免责声明:本文章文字、数据和图片皆来源网络,如有侵权请告知立马删除,数据图片仅供参考,不作为邀约或承诺。