武汉城建江南岸售楼处电话,展厅已开放,6月底开放售楼部,7月底首次开盘,双全景舱!113%得房率!武昌一线观江四代户型解析!
扫描到手机,新闻随时看
扫一扫,用手机看文章
更加方便分享给朋友
武汉城建江南岸销售中心电话(售楼处咨询热线)
☎ 400-159-8559接通拨4567
☎ 在售户型面积丨最新销售公告!
☎ 置业专属VIP:400-159-8559接通后输入分机号4567
☎ 在此温馨提醒:若您计划看房,为确保能享受到更优质、贴心的接待服务,请提前致电售楼部进行预约 。而且,还有免费看房车接送服务哦,若您有此需求,致电售楼处即可预约!
本资料不作为要约或承诺,图片、文字、数据等仅供参考,仅用于介绍房地产项目
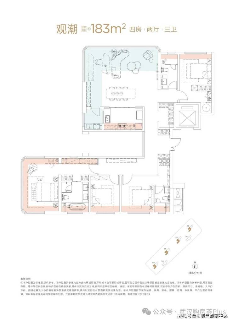
最新动态:武汉城建江南岸,展厅已开放,预计6月底开售楼部,7月底首次开盘,推出建面约143、183㎡户型。

183㎡户型采用创新“双全景舱”概念设计,实现约45㎡超大IMAX环幕厅,一线江景尽收眼底,搭配约2.5米高落地玻璃;主卧采用270°U型玻璃幕设计,实现观江视野最大化。可改三套间的设计满足高端客群的私密生活享受,入口处设计创新X空间。
建面约183㎡户型设计三面落地窗的全景舱主卧,将长江及铁路公园景观尽收眼底。


2、6栋住宅,几乎户户观江,全部为封阳台交付。
项目规划6栋住宅,户均建面约157平。

规划的6栋楼沿着长江一字排开,一路之隔就是武昌江滩,所有楼栋全部一线看江,而且临江面完全没有任何遮挡,光这一点在武昌都非常稀缺。
与大多数围合式布局的小区相比,采光更好,且保障了每栋楼都有较好的瞰江视野,几乎每一户都能一线看江。相比武昌滨江二线高区看江项目还是有很大优势的。

六栋楼都是西北向观江,1、3、4、6号楼一线观江,完全无遮挡。2、5号楼距离长江相对远一点,视野略有遮挡。
从报规图来看,小区规划有架空层、下沉庭院,所有楼栋都连接有风雨连廊,真正实现无风雨归家。

3、全风雨连廊,社区配置美学生活馆、首创垂直滨水主题双会所、270°瞰江全景舱创新四代空间。


双层立体会所,约2500㎡地上地下复合空间,涵盖恒温泳池、私宴厅、SPA秘境、瑜伽健身房等多功能复合会所空间,搭配下沉庭院空间。


武汉城建江南岸销售中心电话(售楼处咨询热线)
☎ 400-159-8559接通拨4567
☎ 在售户型面积丨最新销售公告!
☎ 置业专属VIP:400-159-8559接通后输入分机号4567
☎ 在此温馨提醒:若您计划看房,为确保能享受到更优质、贴心的接待服务,请提前致电售楼部进行预约 。而且,还有免费看房车接送服务哦,若您有此需求,致电售楼处即可预约!
本资料不作为要约或承诺,图片、文字、数据等仅供参考,仅用于介绍房地产项目
声明:本文由入驻焦点开放平台的作者撰写,除焦点官方账号外,观点仅代表作者本人,不代表焦点立场。
