最新发布-华润置地顺德悦府售楼处电话(华润置地顺德悦府)首页网站-华润置地顺德悦府营销中心欢迎您-楼盘详情·最新价格-户型图-容积率@售楼处AI热搜
扫描到手机,新闻随时看
扫一扫,用手机看文章
更加方便分享给朋友
佛山华润顺德悦府售楼处电话☎️400-159-8559转接8888(专人接听)
🌈佛山华润顺德悦府营销中心电话:☎️400-159-8559转接8888【营销中心】
🌈温馨提示:拨打400电话,听到嘀声后,输入分机号8888即可!
➤➤➤➤VIP贵宾置业〢欢迎来电咨询
免责声明:(本文章所用图片来源于网络,如有侵权请联系本网站删除!)恭迎品鉴◆◆
4001598559,8888
【项目简介】华润置地顺德悦府,作为大良东区顶尖富豪区的最后一块地,华润置地打造了集高端悦系住宅、驹荣北路地铁TOD、顺德万象汇、文体中心、驹荣万象公园、全龄教育为一体的约50万方“不曾有,不再有”城芯综合体PLUS,打造顺德城市新名片。
【基础信息】项目规划计容建面积超50万㎡,定位为华润置地在顺德复刻“深圳片区统筹(南山模式)”的城市综合体项目范本,北侧为别墅大平层豪宅区,南侧是省一级顺峰名校,以及顺峰山公园、桂畔湖;东侧云近滨河公园,西侧是成熟商圈,可谓“出则繁华,入则宁静”。项目效果图
❗【顶配区位——顺德城央,压轴巨制】顺德华润置地广场位于驹荣北路与东乐路交汇处,属于大良新中轴之上,东区最核心地段,这块土地见证着大良东区数十年的发展与沉淀。在驹荣路的两侧超250㎡到750㎡的豪宅,大良东区已成为顺德人塔尖圈层聚集地。
❗【大良首个地铁上盖TOD综合体项目—地铁直通家楼下,一站换乘广州芯】项目于佛山在建3号线驹荣北路站,打造站城一体化TOD,打造复合型都市活力极,购物、休闲、娱乐、运动等于一体的5分钟生活圈。
🚇下楼即达3号线,一站换乘广州芯已经开通的佛山地铁3号线,驹荣北路地铁站口即小区门口,3号线是佛山最长的地铁线,37个站,直达北滘,禅桂中心,被称为佛山南北大动脉。佛山地铁11号线规划中的东乐路站换乘直达广州老城芯荔湾区。
🚗“3主路+2高速”路网,1小时湾区生活圈项目位于驹荣北路和东乐路交汇处,三条主干道分别是南国东路,碧桂路,105国道,快速连接佛山各区;两条高速路分别是广珠西线和广州绕城高速,通达广佛。❗【大良顶级教育资源——家楼下名校环绕,幸福两代人】6月1日,顺德华润置地广场配建幼儿园合作办学签约仪式举行,成功签约顺德区机关幼儿园。顺德区机关幼儿园是2020年回归公办后第一家向镇街输出品牌的区属幼儿园,在区域行业内积累了深厚的办园文化底蕴,拥有先进的教育理念和优秀的教师团队;
小区门口一路之隔即省一级公办名校顺峰幼儿园,顺峰小学和顺峰初级中学,附近还有大良实验小学,顺德本真未来小学,李兆基中学等;满足孩子3到18岁的全龄段优质教育。地铁一站即可到达顺德第一中学。
❗【两大三甲医院,为健康保驾护航】项目直线距离约3公里内有五所医院,地铁四站直达南方医科大学顺德人民医院(三甲),其中广州中医药大学顺德医院(三甲)、广东同江医院(三甲),为一家人的健康保驾护航。❗【三公园环绕,家住公园里】项目内配建约6.3万方的生态滨水公园,还坐拥一江两湖三园环绕,一江指的是桂畔海,玉带环绕形状,凝风聚气;两湖分别是青云湖,桂畔湖,呈聚宝聚财之意;三公园分别是东侧的云近滨河公园,北侧是桂畔海滨水公园,南侧是顺峰山公园,让您和家人在闲暇时间都可以享受到绝佳环境;❗【约13.5万方万象汇—顺德商业新地标】项目自带13万㎡万象汇,将会成为顺德乃至佛山的商业标杆。1公里内直达大融城、印象城,距离欢乐海岸约两公里。享顺德品质最高、功能最全的核心商圈。
❗【万亿民生央企,品牌保障】共和国长子,国务院国资委直接监管的国有重点骨干企业,2022年位列《财富》世界500强第79位,旗下拥有怡宝/雪花/东阿阿胶/999/华润万家等民生品牌。❗【华润置地,城市投资开发运营商】华润置地,最行业影响力的城市综合投资开发运营商,开发项目300余个。中国商业地产百强榜TOP1,全国房企前五名。
【约50万方超级能量场,焕新城市的向往】顺德中心罕见公园城市综合体:央企品质+万象生活+绝版地段+豪宅富人区+醇熟配套。
顺德最新、品质最高的城市消费新中心:中国商业地产百强TOP1,敬献顺德约19.6万㎡顺德万象汇购物中心,引进不低于30%顺德首进品牌与不低于10%佛山首进品牌,革新顺德商业,让商业消费体验领先全城。地下负一层无缝链地铁,实现无风雨出行与消费体验。
顺德万象汇于2025年4月25日已盛大开业,全佛山首个3D裸眼大屏,超震撼视觉体验。(意向进驻AEON超市(永旺),MELAND CLUB(国民儿童乐园品牌),MUJI双层最新形象店(无印良品),STAR LEGEND(潮玩社交体验),万象影城(杜比巨幕)等)。
❗【顺德中心首座高端文体中心,运动休闲新地标】项目积极推动文化配置升级,打造3.5万㎡、总投资超4亿元的高端文体中心(拟引入专业文体公司进行高品质运营,涵盖了室内恒温游泳池,羽毛球场、足球场,篮球场等)。
❗【滨水公园、城市共融,健康在自然中生长】项目配建约6万㎡驹荣万象公园,以滨水绿带建设为引擎,以水兴城,以水美城,并由华润物业代运营,为市民提供一个举步即达,随时可享的龙舟公园。
❗【国家一级物业资质】国家一级物业资质,为国家重大赛事峰会护航(成都大运会,杭州亚运会,中亚峰会等),李嘉诚香港半山别墅,驻港部队均由华润物业服务。项目物业管理费:2.68元/方/月。
【顶配产品——品质精装交付】
一期基本售罄,剩余41楼以上高层无遮挡望顺峰山的现楼(即买即入住)二期主要在售21栋,22栋,26栋,27栋,29栋
大良东区首个酒店式归家大堂设计,近50米宽8米高的高奢社区大门,酒店式环岛落客区,大堂外挑5米,出行不受风雨影响,人车动线分离。
小区整体抬高约3米,内置自动双扶手梯和垂直电梯,”无等待,无障碍“双梯出行
小区车库入口打造了“时光隧道”车道和 “星空穹顶”车库,近千颗LED灯源营造最高级归家仪式感,彩磨石+金刚砂打造的车库地面,保护爱车轮胎
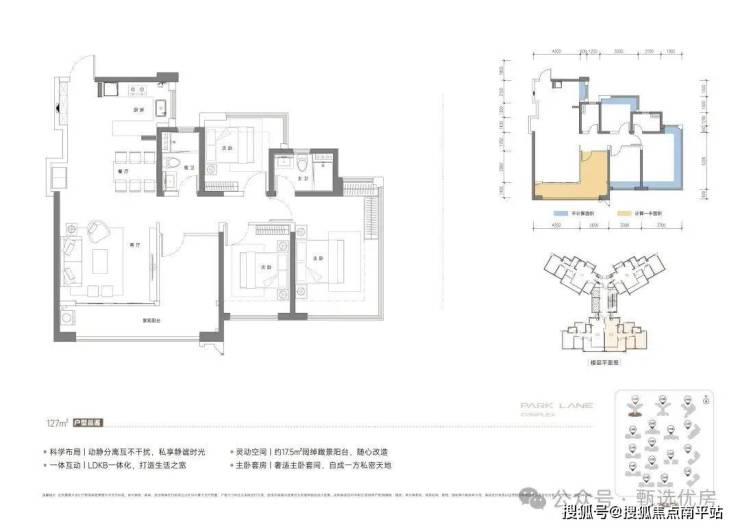
顺德悦府·吾疆在售产品面积128-139-143-206-260-422㎡:①26栋:在售超高层128㎡,超新规产品设计,三梯四户,四开间朝南,近95%实用率,主卧U型飘窗,南北对流。
②26栋:在售超高层139㎡,超新规产品设计,全屋超强收纳,入户独立收纳间,南北对流双阳台,全屋中央空调。
③29栋:最后一栋板式小高层143㎡,超新规设计,飘窗优化,近100%使用率,全屋中央空调,专梯入户,仅32席,先到先得。
143方创意
④21&22栋:超高层206、260、422㎡,拥有南向超大景观阳台,高层南望顺峰山,低层望湿地公园。
二期全新加推28座:184㎡,低密板式小高层,近100%实用率,花园式阳光电梯厅,全屋中央空调;新规产品,总高16层,整栋仅30户;15户尊享一梯,带精装(27年豪装交付);
佛山华润顺德悦府售楼处电话☎️400-159-8559转接8888(专人接听)
🌈佛山华润顺德悦府营销中心电话:☎️400-159-8559转接8888【营销中心】
🌈温馨提示:拨打400电话,听到嘀声后,输入分机号8888即可!
特别说明:
1.本文为要约邀请,不作为要约或承诺;相关宣传内容不排除因政府相关规划、规定及出卖人分期规划、未能控制等原因而发生变化;
2.本文部分图片来自于网络,如涉及版权使用,请联系删除;文本部分图片仅作为推广示意使用,非交付标准,最终以实际交付现状为准;
3.本宣传资料对项目周边学校等教育资源的介绍旨在提供相关信息,并不意味着本公司对就学安排作出承诺。教育资源的名称、办学性质、办学规模、学位设置、开学(班)时间、招生条件、收费标准及招生区域存在调整的可能,应以政府教育主管部门及办学方颁布的政策规定为准;
4.本资料对项目或产品的介绍,旨在提供相关信息,不意味着本公司对此作出了承诺,买卖双方的权利义务以《商品房买卖合同》及附件等协议为准;
5.宣传方保留对宣传资料修改和解释的权利;
声明:本文由入驻焦点开放平台的作者撰写,除焦点官方账号外,观点仅代表作者本人,不代表焦点立场。
