南京《中天金宁文华》
🌈咨询服务热线:400—159—8559转接5158【售楼中心】
🌈温馨提示:拨打400电话,听到嘀声后,输入分机号5158即可!
🌈致电售楼处了解更多信息,安全通话隐藏真实号码,请放心使用
🌈网上售楼中心——欢迎来电咨询〢——匠心钜制恭迎品鉴!
承接中天金宁风华的热度,中天美好深耕江宁的全新力作—— 中天金宁文华,以更高的品质、更“卷”的产品力,为东山改善群体带来更好的选择。

项目过程稿
位置上,中天金宁文华与中天金宁风华 紧邻秦淮支流-外港河,两个小区是外港河畔难得的 约450米水岸静土,享受与水岸共生的悠然生活。

外港河实景图
相比中天金宁风华,中天金宁文华还有四大产品力进阶,各方面都很顶。
顶流团队
力邀顶豪设计天团匠心打磨
一个项目的产品力如何,看设计团队便能知晓一二。
中天金宁文华的设计团队非常震撼,堪称顶豪锻造专家:
建筑设计——上海天华,这是中国首批甲级民营建筑设计公司之一,代表作有 上海中海领邸玖序、 融创徐汇滨江壹号等。
会所公区——名谷设计,被业界誉为“建筑室内设计之东方精神推动者”,南京的 贤坤花园、 瞻月府等知名项目的会所设计都由名谷设计打造,品质有目共睹。
户内精装——DIA丹健国际,是专注高端地产室内设计的国际化设计团队, 金陵序、 长江之歌便是由其打造。
园林打造——木杉景观,这是一家诞生于杭州西子湖畔的景观设计团队,以“不辜负 创美好”为核心理念,有百余项目的设计实践,是国内较高知名度和美誉度的景观设计新锐机构之一。

示意图
在中天金宁文华的打造上,他们将融合千万级豪宅的营造思路,为项目赋能。
顶配生活
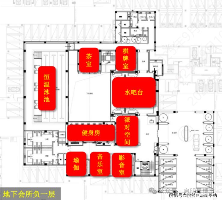
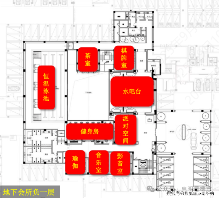
东山罕见约1700㎡超配下沉会所
在江宁东山,配备会所的项目已经不少,而中天金宁风华的会所是目前功能最为齐全的。
据悉,项目将打造约1700㎡超配感下沉会所,具备 12大功能,包含健身房、瑜伽室、音乐室、PARTY ROOM(有KTV、桌球)、茶室、影音室等多元互动场景,并且配置了泳池。

项目会所点位示意图
顶级审美
从外到内、由表及里的审美进阶
看惯了当下住宅千篇一律的审美之后,中天金宁风华从外到内、由表及里的审美进阶令人眼前一亮。
外立面:玉树金枝四代宅的建筑美学,像是升腾的树阵,蕴含“向上生长”的美好寓意。

项目过程稿
顶尖户型
创新式墅厅大宅捅破东山改善天花板
在户型方面,中金天宁文华打造为建面约106、119、143、198㎡全改善户型,并做了四大升级。
具体来说:室内最大化、居住平权化、露台放大化、晾晒兼容化,将给居者带来更舒适的居住体验。
最大的看点则是建面约198㎡的终改户型,将打造为创新式墅厅大宅,餐客厅将有270°的全面采光,尺度感直接拉满!
南京《中天金宁文华》
🌈咨询服务热线:400—159—8559转接5158【售楼中心】
🌈温馨提示:拨打400电话,听到嘀声后,输入分机号5158即可!
🌈致电售楼处了解更多信息,安全通话隐藏真实号码,请放心使用
🌈网上售楼中心——欢迎来电咨询〢——匠心钜制恭迎品鉴!
免责声明:本宣传资料所有文字、数据、图片及所标尺寸等仅为本项目建设区域设计效果的表达和示意,为要约邀请,不构成要约内容,相关内容不排除因政府相关规划、规定及其他原因而发生变化,一切有关房屋的具体信息以书面合同及政府最终审批文件为准。免责声明:本文章文字、数据和图片皆来源网络,如有侵权请告知立马删除,数据图片仅供参考,不作为邀约或承诺。