城投·格调观棠花园以95-133㎡全三室户型打造高阶改善生活,京津冀利好,双国企联袂,近满分户型设计,稀缺洋房,低密宜居。💗售楼处电话☎☎400-159-8559转3333(专人接听)💗
🔥🔥【城投·格调观棠花园】🔥🔥
💗售楼处电话☎☎400-159-8559转3333(专人接听)💗
💗营销中心电话:☎☎400-159-8559转3333【营销中心】💗
💗温馨提示:拨打400电话,听到嘀声后,输入分机号3333即可!💗
💗☞☞Vip贵宾置业==欢迎来电预约尊享内部折扣===匠心钜制恭迎品鉴☜☜💗
京津冀协同发展背景下,红桥核心板块迎来人居重磅利好。天津城投与泰达建设双国企联袂打造的4.0住宅 —— 城投・格调观棠花园,以95-133㎡全周期三室户型率先破局,勾勒红桥高阶改善的理想模样。
近日,城投·格调观棠花园133㎡样板间的亮相格外吸引眼球,把“空间进化者”的实力藏进每一处生活场景,作为红桥政务板块首个4.0住宅项目,其接近满分的户型设计,收获市场的高度认可。
户型适配全周期
约95-133㎡全三室满足多元需求
城投・格调观棠花园全系规划95-133㎡三室户型,户均宽厅设计与高得房率,并融入飘窗、设备平台等赠送空间,最高赠送面积可达到18平米以上,精准适配红桥地缘改善客群与新天津人的居住需求。

城投·格调观棠花园样板间实景图

城投·格调观棠花园样板间实景图
值得一提的是,城投・格调观棠花园打造的111㎡洋房户型,在整个区域可以说是稀缺孤品,给向往低密洋房生活群体一个最优选。同时其133㎡的大面宽及方正布局、95㎡的完善三居功能,以匠心独运的户型设计精心雕琢出全能理想居所。

111㎡ 三 室 两 厅 两 卫
含额外赠送一个卫生间
方正之间,见天地
南北通透的格局,室内布局更开阔明朗
入户玄关设计,满足归家仪式感,开启生活的序曲
南向约5.4米宽厅,开阔尺度安放一家人的美好时光
U型厨房开间约3.75米,可轻松容纳多人同时操作
餐厨一体,让烹饪成为与家人互动的美好场景
主卧套房内置步入式梳妆衣帽间,开窗设计更享阳光

133㎡ 三 室 两 厅 两 卫
含额外赠送一个卫生间
大面宽设计,享进阶人生
独立电梯间设计,解锁户外玄关空间,归家仪式感拉满
顶配6米四方宽厅,超大格局尺度
南北等宽,更具大尺度气场,全生命周期灵动户型设计
南向三大面宽飘窗,空间尺度更包容
第三空间面积舒阔,真正做到让每个房间都能充分实用

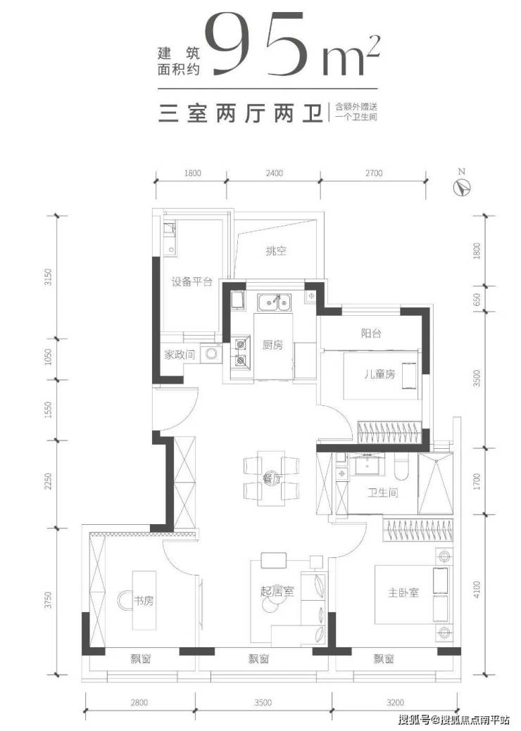
95㎡ 三 室 两 厅 两 卫
含额外赠送一个卫生间
精致有度,享从容
功能三居,全明通透
南向三面超大飘窗,自由呼吸,亲近阳光
高附加空间,使用面积近乎市面120平米产品使用面积
LDK餐厨客厅一体布局,延伸了生活的场景维度
主卧套房自带独立衣帽间与卫浴,彰显品质生活
全新4.0住宅落地
低密社区焕新红桥人居
城投・格调观棠花园承载着对未来人居焕新的美好祝福。“观”蕴含着观赏、品味生活美学的意趣,“棠”意指海棠,象征美好、雅致。观棠花园寓意在雅致的生活空间里,品味生活本真,寄托对美好生活愿景,以及高品质栖居的追求。据了解,项目计划在临街社区入口处,打造十米宽的海棠园林,让人们在盛开的海棠花下休憩、聊天,享受团圆之乐。
规划小而精 提升居住舒适度
在社区规划上,项目延续格调“小而精”的产品打造理念,规划8栋住宅,包括5栋6-11层洋房、3栋14-18层小高层,总户数仅244户。低密度的布局不仅保证了居住的舒适度,更为社区绿化与公共空间留足余地。

城投·格调观棠花园效果图
全架空层 匠心打造
社区采用全架空层设计,不仅解决北方潮湿、噪音问题,更释放充足的地下空间,规划打造逾千平米的沉浸式园林,设置交友会客区、四点半学堂、健身房等公共区域,丰富邻里生活场景。
现代审美 极简立面
城投・格调观棠花园的建筑外立面设计是一场对美学与工艺的极致追求,设计过程中对每一处细节进行反复推敲,融入现代精工美学的理念,以匠心工艺打造出项目独特的视觉语言。
项目南立面采用“底座+塔身+屋顶”三段式结构,强化楼座的层次与稳重感,让建筑宛如艺术品般矗立;外立面的铝板线条创新性的使用了梭形截面线条,打造出渐变的厚度与弧度,当阳光掠过建筑立面,一场关于光影的艺术表演就此开启。

城投·格调观棠花园效果图
项目架空层立面设计灵感取自明代官帽的形制,屋顶飘檐如帽前美玉,架空层功能空间如鼻,上下呼应,尽显世家的端庄气度。入户大堂与海棠图腾融合,将海棠花的真实脉络1:1复刻于门楣之上,通过铝板压花工艺,让每一片花瓣的纹理都清晰可见。这不仅蕴含着一种东方美学的意境,更是对这座城市文脉的当代续写。

城投·格调观棠花园效果图
城投·格调观棠花园位于红桥区光荣道与勤俭道交口以西,处于以光荣道为核心的政务板块,该区域凭借“行政中枢+完善配套+科创产业”的综合优势,成为红桥“宜居+宜业”的典范区域。

项目周边集中了区政府、教育局、民政局、劳动和社会保障服务中心等行政职能部门,日常办事便捷高效,为居民生活提供了坚实保障;毗邻地铁1号线勤俭道站,快速抵达南开、和平腹地;教育资源建起全龄矩阵,十八幼、上海道小学、红桥实验小学、耀华中学红桥校区等知名学府环绕周边。
商业配套方面,城投・格调观棠花园周边聚集了熙悦汇、水游城、陆家嘴等高品质购物中心,以及麦德龙、物美大卖场等大型商超。在建的山姆会员店也将全方位提升区域商业品质。同时,板块内红桥公园、西沽公园环绕四周,为区域提供良好的生活环境。
🔥🔥【城投·格调观棠花园】🔥🔥
💗售楼处电话☎☎400-159-8559转3333(专人接听)💗
💗营销中心电话:☎☎400-159-8559转3333【营销中心】💗
💗温馨提示:拨打400电话,听到嘀声后,输入分机号3333即可!💗
💗☞☞Vip贵宾置业==欢迎来电预约尊享内部折扣===匠心钜制恭迎品鉴☜☜💗
免责声明:本宣传资料所有文字、数据、图片及所标尺寸等仅为本项目建设区域设计效果的表达和示意,为要约邀请,不构成要约内容,相关内容不排除因政府相关规划、规定及其他原因而发生变化,一切有关房屋的具体信息以书面合同及政府最终审批文件为准。免责声明:本文章文字、数据和图片皆来源网络,如有侵权请告知立马删除,数据图片仅供参考,不作为邀约或承诺。