售楼处电话☎️400-159-8559转8666【售楼中心】 营销中心电话:☎️400-159-8559转6688【预约专线】
温馨提示;网上售楼中心〢欢迎来电咨询〢安全通话隐藏真实号码〢 来电咨询最新售楼处地址,专属置业顾问详解,请提前联系售楼处销售进行预约登记
售楼处电话☎️400-159-8559转8666【售楼中心】
营销中心电话:☎️400-159-8559转6688【预约专线】
温馨提示;网上售楼中心〢欢迎来电咨询〢安全通话隐藏真实号码〢
来电咨询最新售楼处地址,专属置业顾问详解,请提前联系售楼处销售进行预约登记

首开表现
准现房实景背书,全四房覆盖改善需求
万象春樾和景的首开节奏紧扣“稳健”定位,从前期预热到实景开放,始终以“所见即所得”降低客户决策门槛。
推售信息:
1#、2#、3#、F#,面积127-168㎡,共125 套(7-11 层洋房);
1#栋:约127-132㎡20套;
2#栋:约168㎡19套;
3#栋:约129-143㎡42套;
F#栋:约129-143㎡44套;适配刚需改善到品质改善客群。

(首开楼栋分布图)
项目于9月24日-9月26日进行为期3天公开认筹,累计认筹196组。
9.27日开盘现场聚集约200多人,以摇号方式选房,截至开盘当日晚上9点,销控显示1#去化约15套;2#栋去化约7套;3#栋去化约29套;F#栋去化约21套;整体去化72套,去化率58%。
具体开盘价格情况如下:
1#栋127㎡/132㎡户型优惠价格10100元/㎡-10500元/㎡;
2#栋168㎡环幕端厅户型优惠价格10900元/㎡-11900元/㎡;
3#F#栋129-143㎡户型优惠价格10900元/㎡-11650元/㎡。

(现场图片)
项目回顾

衡阳万象地产于2024年5月17日底价竞得芙蓉区隆平高科住宅用地,容积率2.5,建筑面积6.55万㎡,楼面地价5290元/㎡,是衡阳万象进驻长沙首个项目。

2024年12月6日,项目通过公众号首次发声,释放“芙蓉区地铁洋房”定位;2025年4月完成规划公示,确认“高低配”(一期洋房+二期高层)布局;2025年8月10日开放售楼部及部分实体样板间,同步开放自建约4000㎡社区公园;9月27日首开,计划2025年12月交房,实现首开到交付的准现房兑现。
项目价值

#SPORTS
地段有潜力
产品有亮点,配套待完善
万象春樾和景位于芙蓉区东湖街道人民东路与经九路交会处,地处长沙隆平高科片区与长沙县经开区双核心交界处,区位特点鲜明。
(项目区位图,仅供参考)

城市界面,地块西侧为合平村安置小区,东侧为湘域芯城一期写字楼,南北侧以住宅、商业用地为主,目前城市界面“新旧交织”。
交通方面,紧邻人民东路,驾车出行便利;距离地铁6号线韶光站约200m,步行约4分钟,可充分享受地铁便利。
商业方面,主要生活配套依靠周边底商和沿街商业;距离芙蓉龙湖天街2.8公里,是片区目前最大的商业MALL,商业氛围一般。
教育配套:无配套学位,小学按就近划分原则入读大同三小,初中参与芙蓉区微机派位,长沙市一中初中部、长沙市一中双语实验学校派位概率低,主要派位至湖南师大附中芙蓉中学、东雅中学,教育资源中等,对“名校刚需”客群吸引力有限。
#SPORTS
产品
准现房+负公摊,洋房品质突出

万象春樾和景一期洋房的产品力,在芙蓉区隆平高科片区具有差异化优势。
规划设计:全封窗公建化外立面,采用 “浅灰色真石漆 + 深灰色金属线条”,现代简约风格,避免后期业主自行封窗导致的外观杂乱;建筑密度仅24%,楼间距普遍在32-35米,低楼层采光不受影响。

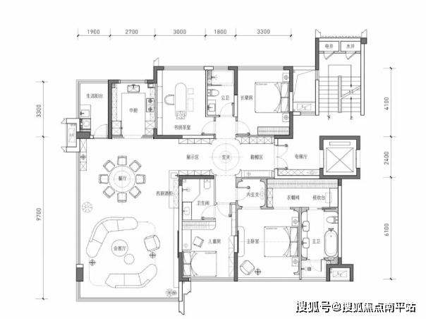
户型方面:项目一期洋房户型建面约128/134/143/168/225㎡,共168户,平均得房率106%。主力户型为142/143㎡,占比35.7%,其次为128/129㎡户型,占比32.1%。

1T2的128/129㎡四叶草户型,做到四房两卫,紧凑实用浪费少,适合刚需;142/143㎡户型同为四叶草户型,功能布局基本一致,在同面积段市场主流新规产品竞争,不具备优势。

168㎡户型三面宽+客餐厅270°大广角视野出众,南北双阳台,得房率超过110%,实际使用空间高达190多㎡。

(168㎡户型)
项目园林聘请山水比德进行规划设计,结合地块西南角的市政公园和小区主题园林,打造品质级宽奢小区大门,酒店式森系多维景观,融合花境主题,精致呈现城市微度假社区。

(项目实景图,仅供参考)

在产品细节打造上,地下车库大面积的石材、灯带运用,行车道吊顶,入单元光厅,都和以前的刚需,刚改项目形成明显的区分,甚至接近2021年前的改善房。地面采用的彩石固化地坪工艺,当前市场也是主流偏上水平。


(项目宣传图,仅供参考)
#SPORTS
板块破局:直面痛点,以“确定性”对冲风险

1. 核心短板
配套滞后:商业依赖外部龙湖天街,教育无名校背书,短期内难以满足“全配套刚需”客群需求;
品牌认知度低:衡阳万象首入长沙,缺乏本地口碑积累,部分客户对“外来房企交付能力”存在顾虑;
市场竞争压力:2025年下半年,芙蓉区将有中交瑞启芙蓉、中建九章赋、湖南建投春风十里等品牌房企新项目入市,均为新规产品,将分流部分客群。
2. 破局策略
准现房兑现:通过实体样板间+社区公园+即将交付的实景展示,打消客户交付风险顾虑,这是项目首开的核心护城河;
产品差异化:聚焦地铁口低密洋房,避开与品牌房企的高层红海竞争,主打小而美的改善定位。

售楼处电话☎️400-159-8559转8666【售楼中心】
营销中心电话:☎️400-159-8559转6688【预约专线】
温馨提示;网上售楼中心〢欢迎来电咨询〢安全通话隐藏真实号码〢
来电咨询最新售楼处地址,专属置业顾问详解,请提前联系售楼处销售进行预约登记
免责声明:本宣传资料所有文字、数据、图片及所标尺寸等仅为本项目建设区域设计效果的表达和示意,为要约邀请,不构成要约内容,相关内容不排除因政府相关规划、规定及其他原因而发生变化,一切有关房屋的具体信息以书面合同及政府最终审批文件为准。免责声明:本文章文字、数据和图片皆来源网络,如有侵权请告知立马删除,数据图片仅供参考,不作为邀约或承诺。