龙湖观萃融合地标天街、漫集市街区、奢宅与公园,打造沉浸式度假体验,主打106-175㎡环幕奢宅,艺术与生活完美结合。💕✆✆鉴赏热线:400-159-8559接通后输入3333(已认证)💕
💕长沙【龙湖观萃】💕
💕✆✆鉴赏热线:400-159-8559接通后输入3333(已认证)💕
💕网上售楼中心〢欢迎来电咨询 💕
💕专业一对一热情服务给您专业的置业方案 💕
💕期待您成为我们的尊贵的业主 💕
龙湖观萃,坐落于福元中轴这一黄金地段,原为龙湖开福天街上盖的商业楼,改规后立志打造长沙首座 “地标天街、漫集市街区、观萃奢宅、城市公园” 一体的漫步式天街POD。

首个度假式酒店门庭,以超69米奢阔尺度彰显尊崇。三大主题店入驻,业主归家时,便能感受到如度假般的惬意与仪式感,每一次回家都是一次尊贵之旅。
首创下沉式悬浮庭院更是令人眼前一亮,20m 悬挑水景搭配 8.4m 玻璃悬浮亭,当您行游至此,仿佛瞬间完成了「从城市喧嚣到隐奢秘境」的领域切换,奇妙之感难以言表。

独创 TADAO ANDO 光之美术馆,用光线做设计,拥有随时间生长的四季窗景,在这里,艺术与生活完美融合,每一天都能邂逅不同的美好。
还有超星级酒店式中央车站,以 “艺术天光穹顶” 为业主带来独特的归家礼遇,每一步都尽显奢华。
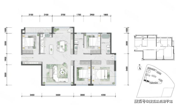
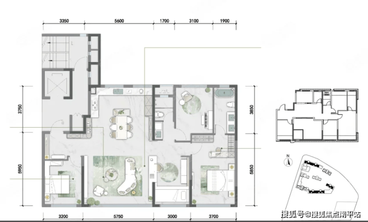
产品方面, 主打新规户型,打造建面约106-127-143-175㎡环幕奢宅,超高得房率。
106㎡户型:

127㎡户型:

143㎡户型:

175㎡户型:

💕长沙【龙湖观萃】💕
💕✆✆鉴赏热线:400-159-8559接通后输入3333(已认证)💕
💕网上售楼中心〢欢迎来电咨询 💕
💕专业一对一热情服务给您专业的置业方案 💕
💕期待您成为我们的尊贵的业主 💕
免责声明:本宣传资料所有文字、数据、图片及所标尺寸等仅为本项目建设区域设计效果的表达和示意,为要约邀请,不构成要约内容,相关内容不排除因政府相关规划、规定及其他原因而发生变化,一切有关房屋的具体信息以书面合同及政府最终审批文件为准。免责声明:本文章文字、数据和图片皆来源网络,如有侵权请告知立马删除,数据图片仅供参考,不作为邀约或承诺。