深圳绿城越秀锦和玉鸣售楼处电话(绿城越秀锦和玉鸣)官方首页网站-营销中心欢迎您-楼盘详情•最新价格-户型图-容积率@售楼处AI热搜
扫描到手机,新闻随时看
扫一扫,用手机看文章
更加方便分享给朋友
最新消息:位于宝安沙井又一新盘绿城越秀锦和玉鸣即将开盘,12月23日下午18:00正式开放样板房,预计12月底开盘入市!
最新官方户型图
【锦和玉鸣·户型品鉴】约3.1低密容积率·稀缺品质住区建面约89-130㎡三房/四房城芯低密奢居一城锦绣处 纳藏生活的晨昏四季『全新规产品理想生活越级想象』建面约89-130㎡三房/四房现代高层,大面宽尺度、大卧室、南向最大化的追光户型,引领沙井生活想象。
• 锦翠·建面约89㎡3房2厅2卫:南向宽厅,阳光满溢,主卧L型采光,空间户户舒适
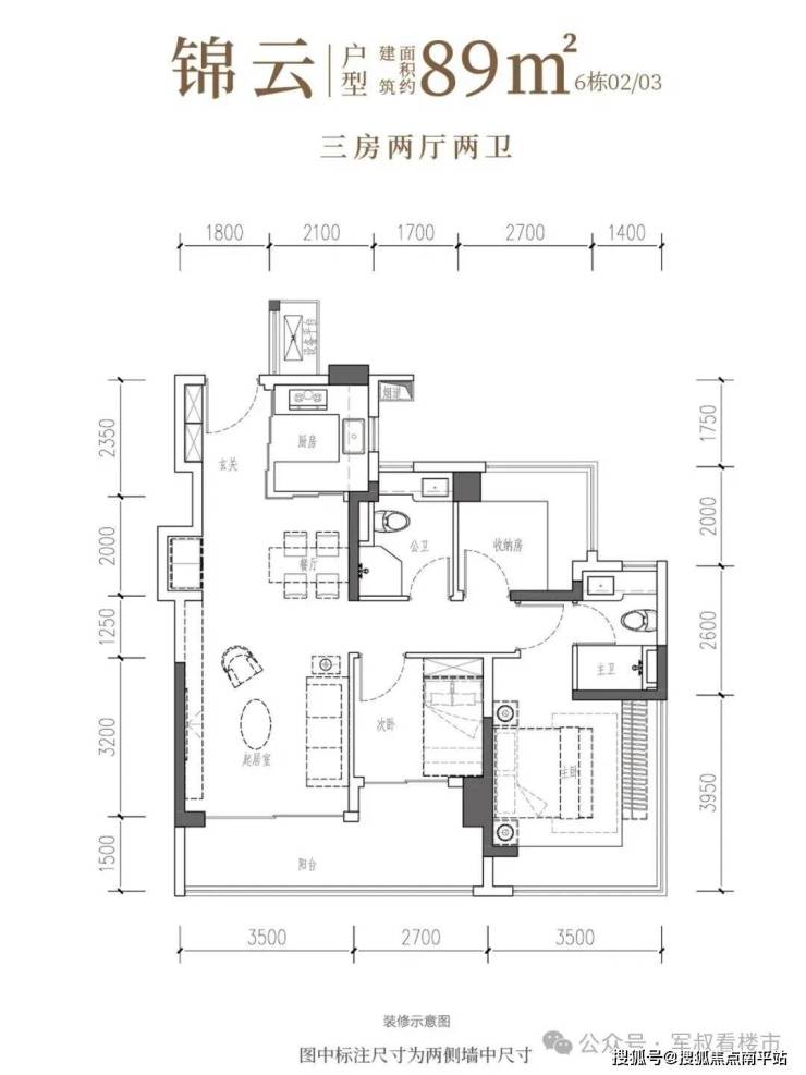
以LDKB无界场域盛放温情,以阳光长廊安放志趣,更以270°环幕主卧,升华为奢适的私密天地。• 锦云·建面约89㎡3房2厅2卫:南向阔厅,景致常驻,间间开阔,尺度舒适
以全明格局联动LDKB一体化方厅与创新S墙巧思,更融入270°环幕主卧,将生活奢享提升至全新境界。• 锦月·建面约104㎡4房2厅2卫:南向四开间,6米阳台引景入室,自此生活融于风景
四开间南向,舒阔宽幕,引光入室;LDKB一体化,灵动岛台串联生活;阳光长廊安放志趣,双转角主卧自成谧境。• 锦和·约106㎡四房两厅两卫:南向四开间,一线园林景观,自在奢想
建面约106㎡宽幕人生,以IMAX光幕揽景,以LDKB方厅聚情,更以转角视野与匠心细节,奢享从容生活。• 锦瑟·建面约107㎡4房2厅2卫:双龙抱珠,一线园景,奢阔雅居
约107㎡四房,坐拥约13.8米南向宽幕视野,尽享LDKB一体厅与多转角环幕瞰景,奢享通透人生。• 玉澜·建面约127㎡4房2厅2卫:南向四开间,南北通透,约14.7米IMAX光幕,独立衣帽间
四开间IMAX光幕引景入室,以LDKB家庭聚场升温情感,更以双转角主卧套房,礼献一方休憩殿堂。• 玉堂·建面约130㎡4房2厅2卫:南向四开间,约14.7米IMAX光幕,尺度自成
南向四开间格局,汇入LDKB一体厅,衔接全景跑道式阳台,双转角主卧套房尊享其中,共筑视野开阔的家庭生活聚场。
【基础信息】
📍项目位置:深圳·宝安区新桥中心路与瑞宁路交汇处西南侧
👨💼开发商:绿城中国、越秀地产
🏠占地面积:约1.9万㎡
⛩计规定容积率建面:约5.97万㎡
🏗容积率:约3.1
🏛建筑层数:16-25层
🏢户型面积:建面约88-178㎡高层
🛝社区配套:包含9班幼儿园、约1500㎡商业。
👸总户数:约462户
🏙『容积率仅3.1 沙井少有低密住区』
• 容积率3.1+限高约80米:共5栋塔楼组成,层高仅16-25层,通过低密台地+立体庭院+叠级会所,以立体山水的创新手法,结合低容新规的优势,打造深圳西部创新的高颜值低密社区
免责声明:本宣传资料所有文字、数据、图片及所标尺寸等仅为本项目建设区域设计效果的表达和示意,为要约邀请,不构成要约内容,相关内容不排除因政府相关规划、规定及其他原因而发生变化,一切有关房屋的具体信息以书面合同及政府最终审批文件为准。免责声明:本文章文字、数据和图片皆来源网络,如有侵权请告知立马删除,数据图片仅供参考,不作为邀约或承诺。
声明:本文由入驻焦点开放平台的作者撰写,除焦点官方账号外,观点仅代表作者本人,不代表焦点立场。
