官方网站-广州【保利天曜营销中心】最新首页(保利天曜售楼处电话)首页网站-销售中心-小区环境-户型-价格-地址-楼盘详情-周边配套
扫描到手机,新闻随时看
扫一扫,用手机看文章
更加方便分享给朋友
保利天曜售楼处电话:400-159-8559转接1111【售楼处线上电话】
保利天曜售楼处电话:400-159-8559转接1111【营销中心VIP通道】
保利天曜销售中心『首页网站』楼层_价格_户型_配套_房源销售详情
免责声明:(本文章所用信息图片来源于网络,如有侵权请联系本网站及时删除

继地价榜第四的员村一横路地块(现保利华创都荟天珺)后,保利在珠江新城再下一城,顺手创造了天河地王。 跻身广州楼面价TOP2,仅次于琶洲地王。

地块位于金融城西区桥头堡,临江大道北侧,毗邻珠江新城,汇悦台以东600米,能直接享受到珠城的不少优质配套!
面粉厂地块位于临江大道旁,与珠城直线距离仅约600m;隔着净水厂,就是广州豪宅标杆汇悦台,二手成交单价一度超30万/平。
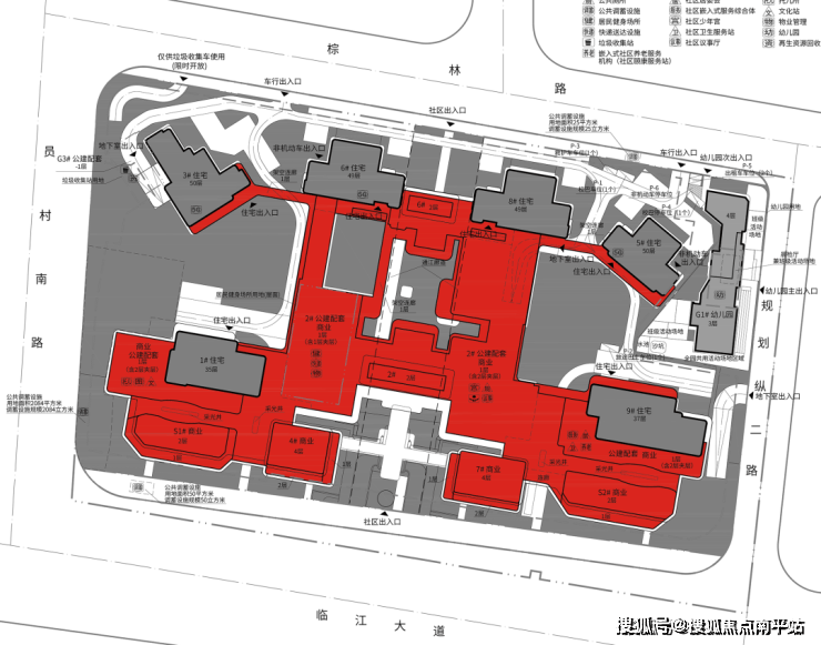
3月14号,政府网站就正式获批了项目的规划图!
从规划图看广州临江大道项目的楼栋布局、面积段已经基本定型了!
1.全盘一共6栋住宅,货量500+套。
2.地块内部各个楼栋由架空连廊连接,可以直达商业及公建配套区域。
3.配建巨量底商(红色部分),未来极有可能打造成为会所,顶部承担屋顶花园功能。

保利天曜售楼处电话:400-159-8559转接1111【售楼处线上电话】
保利天曜售楼处电话:400-159-8559转接1111【营销中心VIP通道】
保利天曜销售中心『首页网站』楼层_价格_户型_配套_房源销售详情
免责声明:(本文章所用信息图片来源于网络,如有侵权请联系本网站及时删除
声明:本文由入驻焦点开放平台的作者撰写,除焦点官方账号外,观点仅代表作者本人,不代表焦点立场。
