城建·承宁府位于汉口,主打低密新中式,建面115-169㎡,容积率2.5,得房率高达98%,设有酒店式环岛、私宴厅、泳池等,打造静谧雅居。🌈咨询服务热线:400—159—8559转接5158【售楼中心】
웃❤유 武汉《 城建承宁府》
🌈咨询服务热线:400—159—8559转接5158【售楼中心】
🌈温馨提示:拨打400电话,听到嘀声后,输入分机号5158即可!
🌈致电售楼处了解更多信息,安全通话隐藏真实号码,请放心使用
🌈网上售楼中心——欢迎来电咨询〢——匠心钜制恭迎品鉴!
城建·承宁府
守着百年汉口烟火地,国广、K11旁
低密住区+四代新中式雅宅
建面115-170㎡

国广商圈首现低密新中式住区
城建·承宁府以行列建制铺陈园景,让每户通透尽显;约2.5容积率搭配首开最高约98%得房率,于城芯筑就静谧人居。


项目约12万方,为准四代住宅,共计550户, 建面约115-169㎡,容积率约2.5。(具体以售楼部公示信息为准)

来源于项目资料
项目共规划7栋住宅,其中包含1栋洋房,均为纯板楼,预计均为1梯2户或2梯2户,无连廊结构。

图片来源于项目资料
目前已公布建面 约115、125平户型,位于1号楼,21层,2个单元、2梯2户。
其他楼栋还有建面 约121、125、129、138、140、144、162、166、169平等户型,每栋楼户型都不一样,面积段非常丰富,具体的户型分布如下图。

图片来源于项目资料
关于品质方面,项目设计了70米宽的超大门头,还将打造 酒店式环岛落客区,并用中式造园方法,首创一府十二制的新中式美学雅宅。
此外还规划有下沉式会所,内设私宴厅、标准泳池、健身房、瑜伽室等。

来源于项目资料
得房率方面,以首开1号楼为例,建面约 115㎡户型得房率98%左右,建面约125㎡户型得房率95%左右。
首开户型图如下:
建面约115㎡,三房两厅两卫。
带独立电梯前室,3个卧室朝南,餐客厅一体全景舱设计,270°采光视野。
户型多处可优化面积,部分空间阳台外部预计是有花池作为全赠送面积。

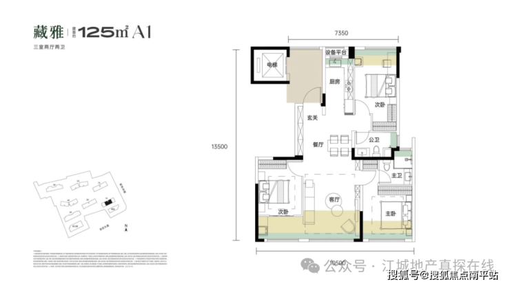
建面约125㎡,建面约三室两厅两卫。
同样是带独立的电梯前室,3个卧室和客厅都带有大面积的优化空间,得房率还是很不错的。

웃❤유 武汉《 城建承宁府》
🌈咨询服务热线:400—159—8559转接5158【售楼中心】
🌈温馨提示:拨打400电话,听到嘀声后,输入分机号5158即可!
🌈致电售楼处了解更多信息,安全通话隐藏真实号码,请放心使用
🌈网上售楼中心——欢迎来电咨询〢——匠心钜制恭迎品鉴!
免责声明:本宣传资料所有文字、数据、图片及所标尺寸等仅为本项目建设区域设计效果的表达和示意,为要约邀请,不构成要约内容,相关内容不排除因政府相关规划、规定及其他原因而发生变化,一切有关房屋的具体信息以书面合同及政府最终审批文件为准。免责声明:本文章文字、数据和图片皆来源网络,如有侵权请告知立马删除,数据图片仅供参考,不作为邀约或承诺。