深圳后海招商玺官方售楼处电话(后海招商玺)官方首页网站-后海招商玺营销中心欢迎您-楼盘详情•最新价格-户型图-容积率@售楼处AI热搜
扫描到手机,新闻随时看
扫一扫,用手机看文章
更加方便分享给朋友
项目占地14969.93㎡,是过去饼干厂旧改,住宅没有7090限制,面积段为188-246㎡精装大平层。由4栋住宅组成(3栋商品房+1栋回迁房),商品房总计261户,户均218㎡,主打188-247㎡ T2、T3高端改善户型。
后海玺家园,项目位于深圳市南山区招商街道近海路以东、后海大道以西、荔园东路以南、工业七路以北。
项目基础信息:
1、开发商:招商蛇口华湾地产开发有限公司
2、物业公司:招商积余
3、物业管理费:待定
4、总占地面积:1.49万㎡
5、总建筑面积:15.08万㎡
6、容积率:6.59
7、绿化率:30%
8、产权年限:住宅70年,2025年6月-2095年6月
9、总户数:548户,其中可售商品房约258户
10、总栋数及楼高:4栋,21-46层
11、层高:3.3米
12、梯户比:1栋1单元2梯2户,2/3单元3梯3户
13、车位数:700个
14、车位占比:1:1.28
15、交房时间:期房待定,预计在2028年底
16、交房标准:精装
后海招商玺家园,由招商集团打造,总占地面积约1.49万㎡,总建筑面积约15.08万㎡,计容建筑面积约11.13万㎡,容积率6.59,绿化率30%,共由4栋21-46层高住宅组成,其中1栋1单元住宅21F,1栋2/3单元住宅36F,1栋4单元回迁房46F,2栋是1所幼儿园。
总规划548户,1栋1单元2梯2户,1栋2/3单元3梯3户设计,地下室有4层,规划700个车位,车位配比约1:1.28。
以“浮岛甲板”设计手法回应珍贵的土地资源,构筑立体多层次、超尺度的地标形象甲板之上,以立体分层、生态融合、全龄交互的静谧庭院花园。创造沉浸式的自然游沐场所,甲板之下,突破传统社区边界,构建开放式的超级底盘,用新的丰盈与仪式感迎接归家。
今年首开1栋高层住宅,197-235㎡四房大平层,属于通透板楼设计,视野无遮挡。这次设计采用“浮岛甲板”设计策略,四栋住宅落于甲板之上,独享甲板庭院花园。进而形成超级社区底盘 + 浮岛绿化甲板的垂直共生人居标杆。
建筑风格:以“海风百褶”为设计理念,双反弧形的立面元素在各处形成丰富变化的海浪状立面肌理,呼应滨海风情。
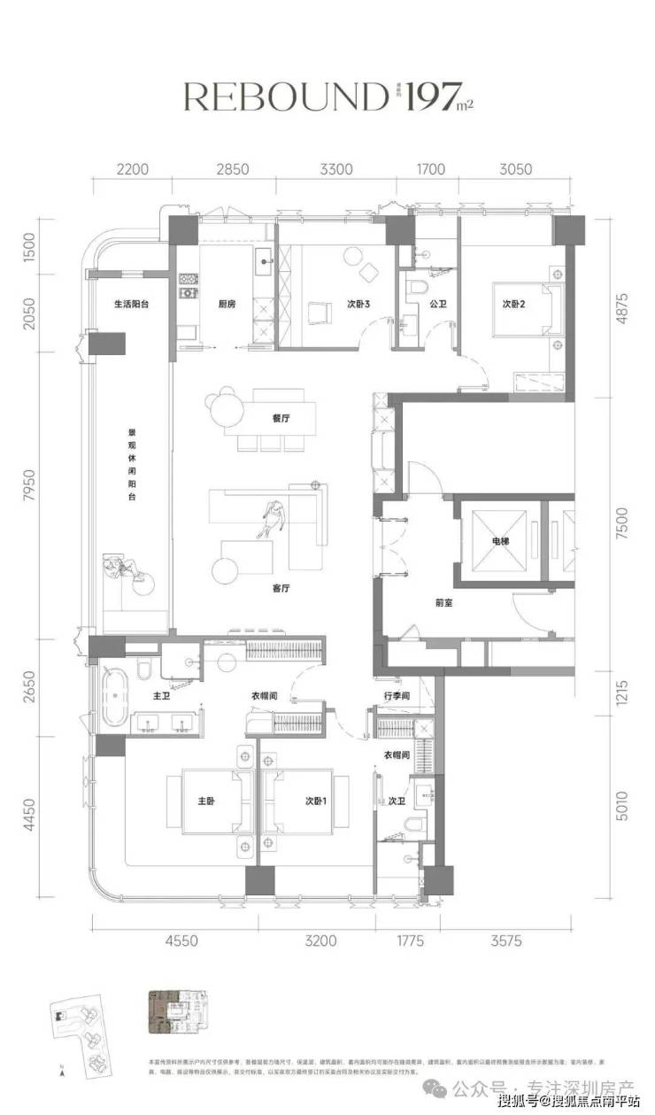
建面约197㎡户型,户型革新的亮点随处可见。
★ 户型做了框架结构设计,把承重体系放在梁板柱等基础构建,可根据全生命周期需求定制化户型
★ 采用专梯入户设计,私属感拉满,而且含电梯厅综合赠送后使用率达到了约93-95%,比已经亮相的两个顶豪新盘使用率更高
★ 户型方正且三面采光,双龙抱珠增强空间实用性,双套间朝南,超大进深和开间,让整个餐客厅达到了约48㎡
★ 景观阳台与生活阳台双区分,阳台总面积约22㎡,比沄玺209㎡户型阳台(约11㎡)要大得多
★ 不论是公卫还是套卫,3个卫生间均做到了全明设计,这一点是目前已经亮相的几大顶豪新盘都无法实现的,值得重点称赞(全明卫生间意味着有阳光和自然风)
★ 主卧采用豪华套房+步入式衣帽间设计,面积达约38㎡,而且还带270°全景转角大飘窗,既可观景又可延伸更多生活功能场景
建面约237㎡户型图,产品亮点:
采用专梯入户设计,私属感拉满;且高赠送,含电梯厅综合赠送后使用率可达93-95%,新规产品相较于上一代产品(中海深湾玖序)使用率为约80%
户型方正,三面采光,双套房朝南、双龙抱珠、动静分区
客厅面积高达60㎡,接近标准羽毛球场的大小(65㎡)
户型做了框架结构设计,把承重体系放在梁板柱等基础构建,可根据全生命周期根据需求定制化户型
双阳台,阳台面积约31㎡,长约18.9米,L型270度拐角瞰景阳台将景观一览无遗,同时景观阳台与生活阳台区分,景观阳台除兼顾观景外,还增加“X”百变空间(约10㎡,最宽进深2.4米)
主卧采用豪华套房设计,超长步入式衣帽间,主卧的开间约7.05m、进深约6.3m,主卧空间高达44平,237㎡户型极其罕见的做到与太子湾招商玺425平的主卧尺寸。
免责声明:本宣传资料所有文字、数据、图片及所标尺寸等仅为本项目建设区域设计效果的表达和示意,为要约邀请,不构成要约内容,相关内容不排除因政府相关规划、规定及其他原因而发生变化,一切有关房屋的具体信息以书面合同及政府最终审批文件为准。免责声明:本文章文字、数据和图片皆来源网络,如有侵权请告知立马删除,数据图片仅供参考,不作为邀约或承诺。
声明:本文由入驻焦点开放平台的作者撰写,除焦点官方账号外,观点仅代表作者本人,不代表焦点立场。
