【官网】厦门帝景苑售楼处电话_售楼处位置在哪-楼盘主页_在售楼层/户型面积/价格详情-营销中心24小时咨询热线!
扫描到手机,新闻随时看
扫一扫,用手机看文章
更加方便分享给朋友
4001598559,4567
厦门最顶级的资源,集商业、金融、居住、休闲中心于一体,北望狐尾山,南望彭浪屿,北临岛内景观中心筼筜湖,西临海湾公园
一进门就是豪宅的体验
下沉式中庭水景园林、引光影到空间、外挂罗马洞石、满目极尽奢华;
7.2米挑高首层大堂,精雕细磨弧形石材铺陈墙面,如同置身大师艺术馆;
专属阔绰车库入户大堂,书写有温度的归家场域。
天然石材作为立面,巨资打造豪宅的百年传承
图片均为实景拍摄,让您身临其境,体验豪宅的生活
空中生态绿洲:
阳台有下嵌式30-40cm,可以把土地、花园、园林、泳池搬至家中阳台,实现“一户一世界,一层一森林”的立体生态住宅。
16*5*1.5m无边际泳池,户户都有私家庭院
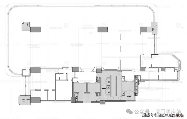
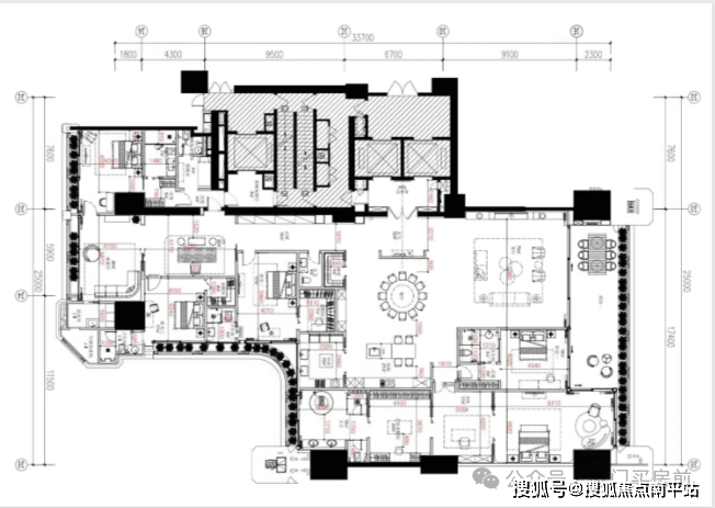
楼中楼户型:


713平户型:



声明:本文由入驻焦点开放平台的作者撰写,除焦点官方账号外,观点仅代表作者本人,不代表焦点立场。
