🦋🦋三亚【国寿嘉园·逸境】🦋🦋 售楼处电话☎️400-159-8559转接6666【已认证】来电尊享优惠活动
🦋🦋三亚【国寿嘉园·逸境】🦋🦋 营销中心电话☎️400-159-8559接通输入6666【售楼处指定网站】预约热线 ◆◆◆温馨提示——拨打400电话☎️☎
🦋🦋三亚 【国寿嘉园·逸境】🦋🦋
售楼处电话☎️400-159-8559转接6666【已认证】来电尊享优惠活动
🦋🦋三亚 【国寿嘉园·逸境】🦋🦋
营销中心电话☎️400-159-8559接通输入6666【售楼处指定网站】预约热线
◆◆◆温馨提示——拨打400电话☎️☎️听到嘀声后——输入【6666】即可通话
✨✨预约看房丨首付月供计算丨售楼处位置丨小区环境丨最新房价丨享超低购房优惠✨✨

【国寿嘉园·逸境】
海棠湾核心区大盘 臻藏国岸院墅

🏆开发投资商:国寿(三亚)健康投资有限公司
👉占地面积 :约178亩
✌建筑面积:约10.4万平方米
🌴容 积 率:约0.6
🎄绿 化 率:约46%
☀产权年限:40年
🚗车 位:共715(地上495 地下220)
🎀 总户数:别墅200户、洋房92户、酒店公寓174套
🚶物业公司:国寿物业管理有限公司三亚分公司
💰物业费:洋房/酒店式公寓12元/平米;别墅15元/平米

【周边配套—海棠湾康养核芯区】
🏥康养核芯——中国人民解放军总医院海南医院(301医院)、国寿康复医院、北京大学口腔医院(在建中)、广安门中医院、上工谷运动医学康复医疗中心、恒大妇产医院(规划中)

🌊国家海岸——中国唯一国字头命名的湾区
🌺稀缺资源——项目毗邻市政红树林湿地公园,周边生态资源优越,负氧离子环绕,典藏湾区林、河、岛、海、泉,5重自然资源;
🚄畅捷交通——项目周边交通便利,距海南环岛高速林旺高速口5公里,到达市区以及凤凰机场约30公里,海岸大道等路网环绕,项目距离海边约1000米,距离301医院约2公里,距离人大附中3.8公里,到达南田温泉大约12公里车程,到达三亚免税城约10公里车程,距海棠湾高铁站(在建中)10公里;
👜顶级生活——约35家五星级酒店、3座高尔夫球场、万达影城、南田温泉等

💎千亿配套——三亚国际免税城、超级万象城(在建中)、太古里商街、珠宝金街、铁炉港游艇码头、北京人大附中三亚分校、三亚亚特兰蒂斯、海昌梦幻不夜城、保利财富论坛

2、健康管理中心🏥
健康管理服务体系目标:"防大病、管慢病、抗衰老"。提供从个性化健康体检,到定制康复疗养,进行持续健康追踪,达到全生命周期的健康管理过程。

特色的康养度假基地,引进国内外优质健康管理资源,可为您提供全面的健康医疗保障,满足您居家、旅游健康管理需求,是名副其实的“家门口”健康管理服务康养度假社区。
约12000㎡的健康管理中心,是国寿嘉园·三亚逸境健康管理服务体系的核心枢纽,拥有先进医学检测设备、专业中西医专家团队,开展疾病风险评估、个性化健康体检、定制化康复疗养、慢病管理等健康服务项目,并协同项目内第三方医疗资源,为您提供一对一、私密化、个性化全过程健康管理服务。

国内外优质医疗资源:逆龄护氏提供皮肤管理服务,睿诺提供血液净化服务,免疫微生态提供肠道菌群移植+调理服务,苗医炁内脏、苗医苗浴、苗火疗服务等,除此之外,国寿嘉园·三亚逸境,也是解放军医院301海南分院的医联体成员单位。
3、健康步行街🏩
建面约8000㎡健康步行街,引进国内外医疗技术资源、中医和健康管理机构,包括功能检测、皮肤管理抗衰美容、中医御品膏方、心灵会等,为客户提供完整的、全身心的健康检测、美容护肤与调理调养服务,并提供贴身健康管家全程一对一服务。

【独特合作资源】
🏥与海南本地医疗机构强强联合:已与中国人民解放军总医院海南医院(301医院)、三亚市人民医院、三亚市中心医院等本地三甲医院加入医联体,健康管理中心能享受直通301医院服务。

【在售产品】
度假院墅🏠
产权面积:约 128㎡
实得面积:约425㎡
🏡毛坯现房现证
上下双庭院,私家车位
3层可做4-6个房间
可定制15米空中泳池🏊
预留电梯位置
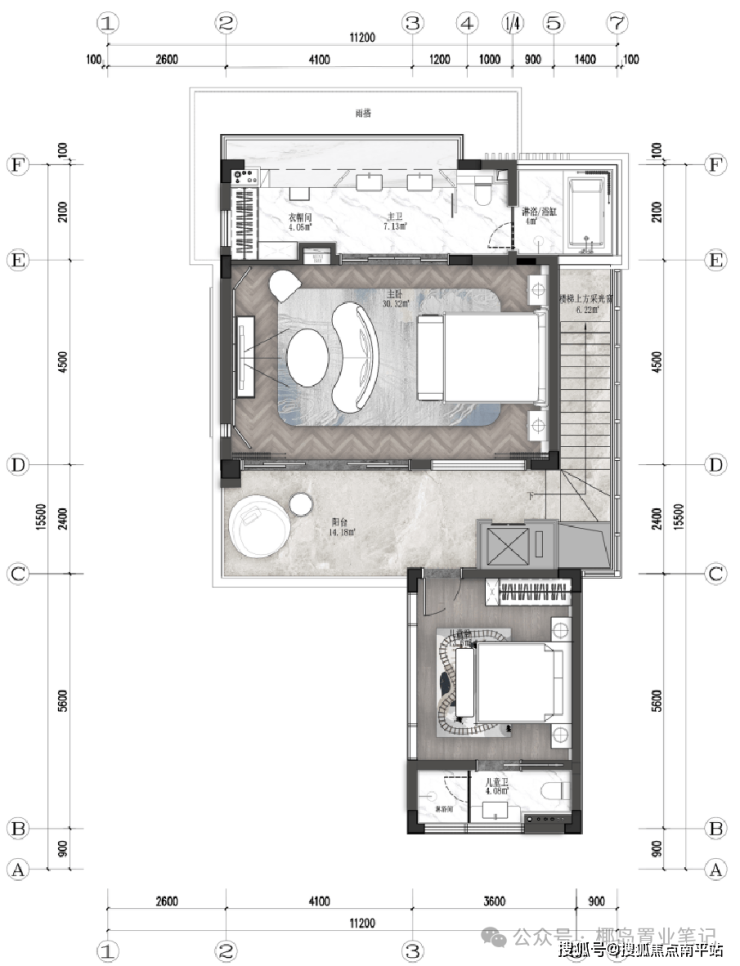
👇户型图👇

B1层平面布置图

1F层平面布置图

2F层平面布置图

👇样板间实景👇







🦋🦋三亚 【国寿嘉园·逸境】🦋🦋
售楼处电话☎️400-159-8559转接6666【已认证】来电尊享优惠活动
🦋🦋三亚 【国寿嘉园·逸境】🦋🦋
营销中心电话☎️400-159-8559接通输入6666【售楼处指定网站】预约热线
◆◆◆温馨提示——拨打400电话☎️☎️听到嘀声后——输入【6666】即可通话
免责声明:本宣传资料所有文字、数据、图片及所标尺寸等仅为本项目建设区域设计效果的表达和示意,为要约邀请,不构成要约内容,相关内容不排除因政府相关规划、规定及其他原因而发生变化,一切有关房屋的具体信息以书面合同及政府最终审批文件为准。
免责声明:本文章文字、数据和图片皆来源网络,如有侵权请告知立马删除,数据图片仅供参考,不作为邀约或承诺。