最新发布-招商·林屿湖畔-售楼处首页-招商·林屿湖畔-售楼处电话-开盘时间-招商·林屿湖畔房价-户型-楼盘详情-周边环境-户型-价格-地址-楼盘详情-售楼处电话
扫描到手机,新闻随时看
扫一扫,用手机看文章
更加方便分享给朋友
上海林屿湖畔售楼处电话☎️400-159-8559转接8888(专人接听)
🌈上海林屿湖畔营销中心电话:☎️400-159-8559转接8888【营销中心】
🌈温馨提示:拨打400电话,听到嘀声后,输入分机号8888即可!
➤➤➤➤VIP贵宾置业〢欢迎来电咨询
免责声明:(本文章所用图片来源于网络,如有侵权请联系本网站删除!)恭迎品鉴◆◆
4001598559,8888
嘉定新城经过十余年的发展成为整个嘉定综合实力很突出的板块,甚至放眼整个五大新城都是佼佼者。
项目是嘉定新城远香湖中央活动区最后一块拼图,就位于远香湖公园的南侧,与11号线嘉定新城站直线距离约1.7公里。不缺好环境,招商远香湖地块地理上位于整个新城核心区的中心位置,且紧邻远香湖和紫气东来公园。项目周边学校、商业、办公和绿地公园应有尽有,且大多配套都是现成的。
周边现有教育资源非常丰富,包括上海市实验学校嘉定新城分校(九年一贯制公办学校)、远香湖幼儿园、中福会新城幼儿园、嘉定新城实验第二小学、马陆小学、上海市育才中学等。
周边大体量商业体环伺,包括西云楼、宝龙广场、万达广场、大融城、理想之地配套商业(在建)等近40万方商业。
周边有三甲医院瑞金医院北院、嘉定区妇幼保健院、上海嘉定中医医院嘉定新院等优质医疗资源。
据悉,招商蛇口拿下嘉定新城远香湖住宅地块(嘉定新城F03A-4地块)招商林屿湖畔成交总价26.6亿,成交楼板价31850元/㎡,溢价率30%,成交承诺装修标准3000元/㎡,预计未来售价或达6万/㎡!
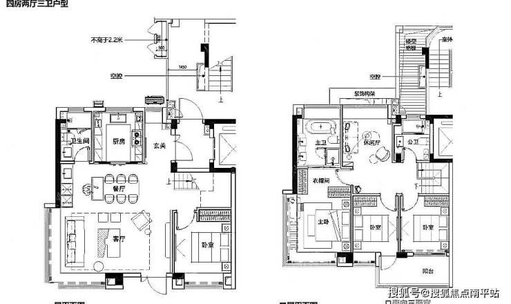
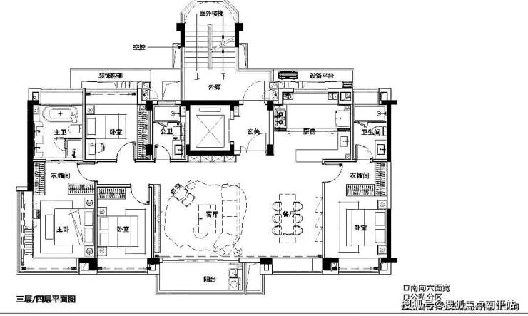
根据方案,项目拟建8栋16-17层高层住宅(含1栋17层保障房),以及5栋6层住宅,共计686户。小区人车分流;车位比约1:1.8,社区内部有水景、下沉式庭院。

项目配建地上架空层泛会所+地下会所,以及下沉式庭院会所,打破人与空间边界的架空场域。会所设计整体空间祛除浮华矫饰,始终让景观以人为核心展开,整体景观规划以悬挑水池将⽔引⼊下沉⾃然⽔院,利⽤⽔幕链接,打造多层次景观,宛如⼀幅变幻的⽴体流动画作。会所区域配置风⾬连廊,以⽔景、绿篱、休憩平台串联,移步异景。
开放式的社交场域空间以自然留白,带来完整的地上园林体系,处处皆客厅的家庭化场景让公区和家一样舒适。它所传递的,不是传统意义的“豪宅感”,而是一种兼具归属感与文化感的“隐奢生活哲学”。
项目外立面要求采用石材、铝板等材质,金属部分应采用铝板、紫铜等防锈防腐蚀金属材料。

上海林屿湖畔售楼处电话☎️400-159-8559转接8888(专人接听)
🌈上海林屿湖畔营销中心电话:☎️400-159-8559转接8888【营销中心】
🌈温馨提示:拨打400电话,听到嘀声后,输入分机号8888即可!
特别说明:
1.本文为要约邀请,不作为要约或承诺;相关宣传内容不排除因政府相关规划、规定及出卖人分期规划、未能控制等原因而发生变化;
2.本文部分图片来自于网络,如涉及版权使用,请联系删除;文本部分图片仅作为推广示意使用,非交付标准,最终以实际交付现状为准;
3.本宣传资料对项目周边学校等教育资源的介绍旨在提供相关信息,并不意味着本公司对就学安排作出承诺。教育资源的名称、办学性质、办学规模、学位设置、开学(班)时间、招生条件、收费标准及招生区域存在调整的可能,应以政府教育主管部门及办学方颁布的政策规定为准;
4.本资料对项目或产品的介绍,旨在提供相关信息,不意味着本公司对此作出了承诺,买卖双方的权利义务以《商品房买卖合同》及附件等协议为准;
5.宣传方保留对宣传资料修改和解释的权利;
声明:本文由入驻焦点开放平台的作者撰写,除焦点官方账号外,观点仅代表作者本人,不代表焦点立场。
