天津【时代之城·朗溪】
💗售楼处电话☎☎400-159-8559转3333(专人接听)💗
💗营销中心电话:☎☎400-159-8559转3333【营销中心】💗
💗温馨提示:拨打400电话,听到嘀声后,输入分机号3333即可!💗
💗☞☞Vip贵宾置业==欢迎来电预约尊享内部折扣===匠心钜制恭迎品鉴☜☜💗
今年新入市的 时代之城·朗溪而言,也是现成的 实景背书。
而且,天津城投在此还实现了 新一轮产品迭代。
它位于 赵沽里大街与岷江北路交口,正是金钟河大街南侧片区新建区 最核心地段。
西侧,主入口一街之隔,是规划的 天津市实验小学东丽学校;向北步行约150米,是已投入使用的 天津市第一中学东丽学校。
南侧,一个人行口直通 约5400㎡城市公园;再过一个路口,就是规划的 约1.2万㎡时代中心公园。
穿过公园,便是 地铁5/6号线换乘站金钟河大街站。未来,这里还将规划建设一座 约13万㎡的大型产业综合体。

▲片区鸟瞰效果图
这些配套均分布于社区西向,于是项目也将 约980㎡的商铺设置于此,结合街角广场及微型口袋节点,形成一条 「慢行引力轴」。

项目整体占地 约4.45万㎡,地上总建筑面积 约12.02万㎡,容积率 2.7,总计1090户。
社区采取「L」型围合,8栋27层高层沿西、北侧排列,10栋7-11层洋房被环抱其中。
这种布局既能让洋房区组团化布局,又能在南向争取到最大的公园景观视角。

▲时代之城·朗溪鸟瞰效果图
社区采取 立体架空设计,北区抬高数米,构建起 「垂直山水系统」。
平台顶耸立着 6栋高层、5栋洋房,平台内藏着 车库、归家大堂、业主会所及各种 配套用房。
这样,北区与南区便形成高低错落的感觉,呈现出富有韵律的 阶梯状「社区底盘」。
以 超扁平美学打造的住宅,构成「环山面水」的建筑群落,好像光影的动态画布。


▲时代之城·朗溪建筑立面效果图
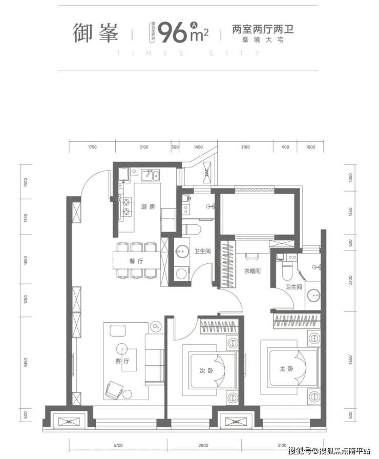
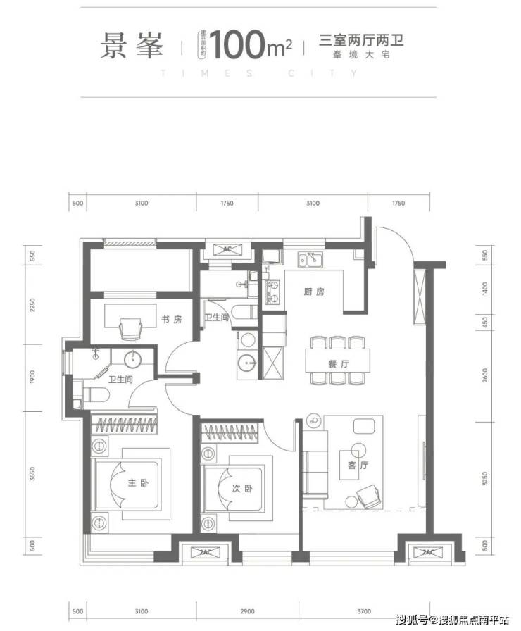
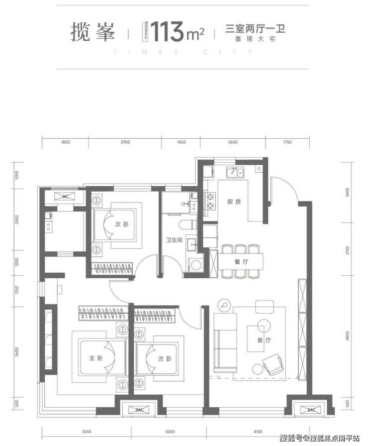
时代之城·朗溪的户型共有 七款。
首开推出的是两梯四户高层产品,包括五个面积段:
建筑面积 约89㎡、96㎡、100㎡、113㎡、123㎡。





◀滑动查看更多户型图▶
另外,后面项目还会推出两款洋房户型, 建筑面积约143、175㎡,舒适度、性价比都更高,尤其适合跨区改善。


◀滑动查看更多户型图▶
过去,城投项目常被看作中规中矩的「理工生」——盖房子重工重料、保质保量,产品设计却略显中规中矩。
但天津城投·时代之城完全突破了这种固有印象,尤其是新入市的时代之城·朗溪,产品设计中融入了大量 情景营造与 生活思考。
合院式归家的 礼序感、互不打扰的 会所矩阵、内外 双重大堂系统、架空化作社区里的 「大地艺术」……
在天津城投·时代之城身上,我们真切看到了城投系项目的 「底层进化」。
天津【时代之城·朗溪】
💗售楼处电话☎☎400-159-8559转3333(专人接听)💗
💗营销中心电话:☎☎400-159-8559转3333【营销中心】💗
💗温馨提示:拨打400电话,听到嘀声后,输入分机号3333即可!💗
💗☞☞Vip贵宾置业==欢迎来电预约尊享内部折扣===匠心钜制恭迎品鉴☜☜💗
免责声明:本宣传资料所有文字、数据、图片及所标尺寸等仅为本项目建设区域设计效果的表达和示意,为要约邀请,不构成要约内容,相关内容不排除因政府相关规划、规定及其他原因而发生变化,一切有关房屋的具体信息以书面合同及政府最终审批文件为准。免责声明:本文章文字、数据和图片皆来源网络,如有侵权请告知立马删除,数据图片仅供参考,不作为邀约或承诺。