厦门国贸天樾云颂售楼处电话|国贸天樾云颂售楼处地址|实时更新|楼盘动态详情|
扫描到手机,新闻随时看
扫一扫,用手机看文章
更加方便分享给朋友
国贸天樾云颂售楼处电话:400-159-8559转接5678【售楼处线上电话】
国贸天樾云颂售楼处电话:400-159-8559转接5678【营销中心VIP通道】
国贸天樾云颂销售中心『首页网站』楼层_价格_户型_配套_房源销售详情
免责声明:(本文章所用信息图片来源于网络,如有侵权请联系本网站及时删除

这个户型是1、2#楼的主力户型,户型最大的优点就是露台的设计,奇偶层的露台朝向不同,规避了一期露台私密性的问题。
客餐厅开间极尽舒适,大约有40㎡,如果加上南向的露台,这都赶得上个标准羽毛球场了,还是双打的。
卧室尺度都不错,就是进门的书房有点小,北面两个卧室打通可以做出个非常舒适的套件。
进门即观景,半座厦门城一览无余,有人觉得是优点,有人说是缺点,这个因人而异。
不过中间那个卫生间,建议还是改成储藏室或者和客厅合并做个茶室,中宫还是适合保持干净、开阔、空气通畅。
-240㎡-

这个户型是3、5#楼的主力户型,和211㎡户型的格局基本一致,尺度放大了,北次卧增加了生活阳台,弥补了一些211㎡户型的遗憾。
客餐厅一如既往的豪横,直接加大到50㎡,一句“加大你的客厅!”就让探长想到了新时代的我们,加大你的内存...偏题了DDDD
北次卧升级为套间,加上主卧和南次卧,总共有三个卧室套间的设计,舒适性MAX
遗憾也是一如既往,中宫的洗手间建议直接改为南向次卧的衣帽间,厨房切一小块来做洗手间就很完美了。
-430㎡-

这个430㎡的户型探长认为是最值的购买的户型,应该大约分布于3、5号楼的29-40F的区间,直接一层一户。
前面说的所有遗憾都没有了,而且客餐厅的直接做到双露台,成年人才不做什么奇偶层的选择题,而且两个都要!加上两个露台,差不多100个㎡。
客餐厅的部分应该是做了两层挑高,和宸启瑞湖二期的类似,逼格拉满,270°的景观视野×2,半座厦门城尽收眼底。


这个户型还有个特点就是房间特别多,加起来有9个房间,主卧更是打通三个房间做了总统套间的设计,独立的主卧玄关、过厅衣帽间、标准书房都是特色,最有亮点的应该是主卧的储藏间设置,探长更愿意称之为金库,门的开口直接改到衣柜里做暗门。
不过其他房间都做成了卧室,缺少点想象力,可能实际上业主并不需要这么多房间。不过好在都没有剪力墙,可以“任性”魔改。
硬说两个遗憾吧,一个是南向卧室长廊真的有点长,可能会有点深宫大院的感觉,另一个就是电梯边上的储藏间应该做个隐形的次出口,那用途可就多了,别的不说,至少消防逃生安全~~
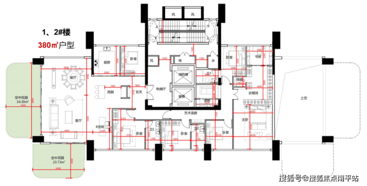
-380㎡-
据说1、2#楼顶楼也有个类似的户型,不过套数很少,屈指可数,面积380㎡,户型格局和430㎡一样,就是缩小版的,不过也足够豪横,就是下面这个宝贝~

国贸天樾云颂售楼处电话:400-159-8559转接5678【售楼处线上电话】
国贸天樾云颂售楼处电话:400-159-8559转接5678【营销中心VIP通道】
国贸天樾云颂销售中心『首页网站』楼层_价格_户型_配套_房源销售详情
免责声明:(本文章所用信息图片来源于网络,如有侵权请联系本网站及时删除
声明:本文由入驻焦点开放平台的作者撰写,除焦点官方账号外,观点仅代表作者本人,不代表焦点立场。
