深圳后海招商玺(售楼处) 首页 -后海招商玺 销售中心 - 环境 - 户型 - 价格 - 地址 - 楼盘详情 - 配套 - 电话 - 交房时间 - 配套 - 电话 - 交房时间
扫描到手机,新闻随时看
扫一扫,用手机看文章
更加方便分享给朋友
后海招商玺售楼处电话:400-159-8559转1111
看房方式:后海招商玺售楼处位置电话400-159-8559转1111(开发商认证)
2.预约方式:拨打后海招商玺售楼处电话400-159-8559转1111(售楼处认证)
3.预约信息:需提供姓名、联系方式、预计到访人数及到访时间。

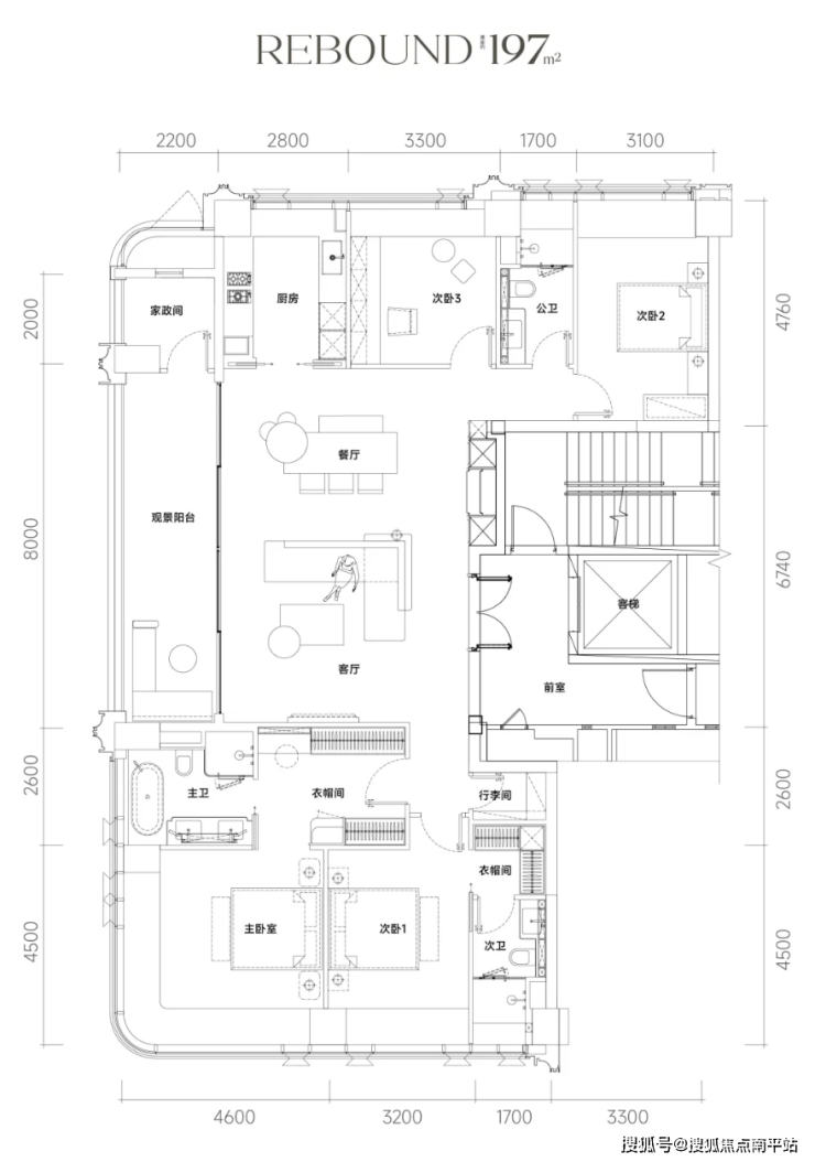
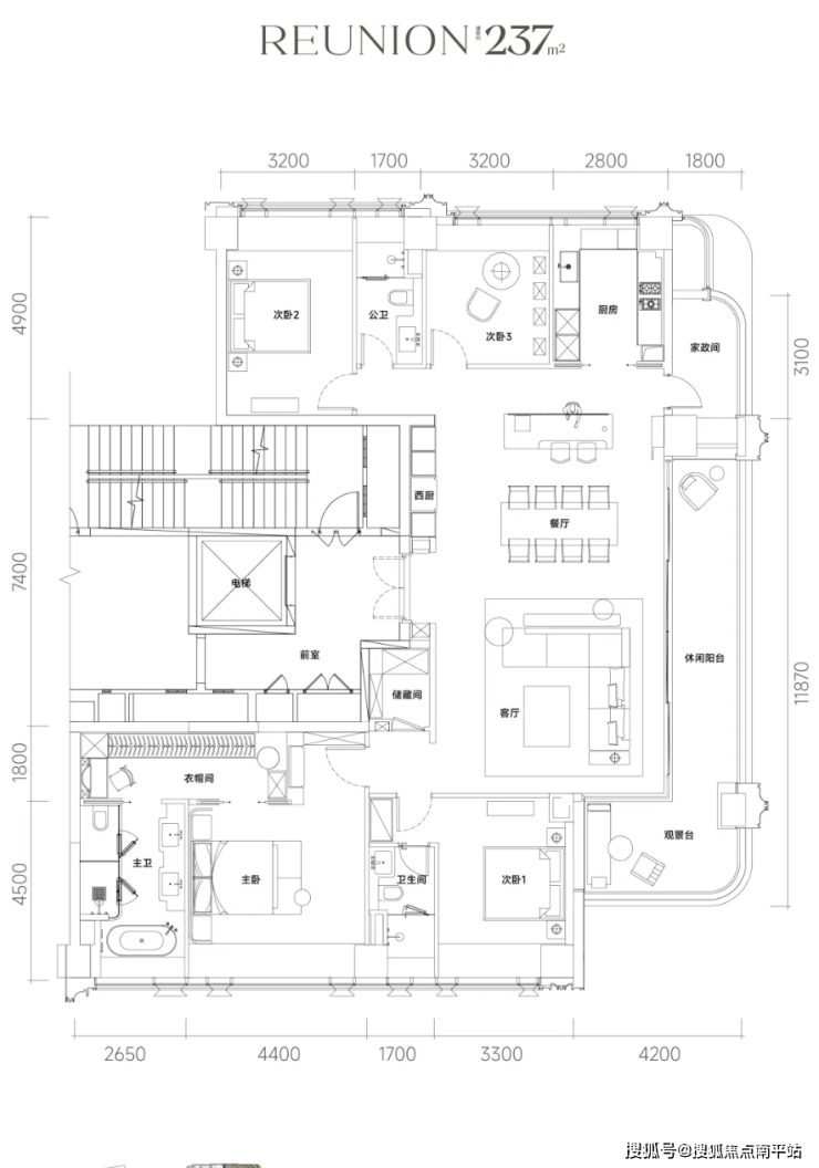
项目由4栋住宅和1栋幼儿园组成,共261套。首推1栋,42套,2梯2户,建面约197-235㎡四房大平层住宅。

02
户型选择
①平面图
首期推出的1栋产品主打建面约197-235㎡四房大平层,全部为精装交付,纯粹的大平层社区定位明确,没有7090政策限制,确保了客群圈层的纯粹性和社区的高端质感。

②户型图
项目主力户型为197-235㎡四房大平层。
据了解项目采用新规设计,采用通过“核心简+边柱技术”以确保每个户型都能获得最优的采光和通风条件。并且通过创新设计实现赠送率和阳台率最大化,加上专梯入户的布局,整体使用率预计可达100%左右。




后海招商玺售楼处电话:400-159-8559转1111
看房方式:后海招商玺售楼处位置电话400-159-8559转1111(开发商认证)
2.预约方式:拨打后海招商玺售楼处电话400-159-8559转1111(售楼处认证)
3.预约信息:需提供姓名、联系方式、预计到访人数及到访时间。
声明:本文由入驻焦点开放平台的作者撰写,除焦点官方账号外,观点仅代表作者本人,不代表焦点立场。
